感谢来自 重塑建筑 的商业空间项目案例分享:
献上果子是深圳首个新中式融合(Oriental Fusion)的糕点品牌,品牌名取自古典中“献给圣上的糕点”之义,秉承为传统的东方糕点注入新的生命力从而推进中点复兴的使命,坚持用优质的食材以及中西式结合的技法,重新设计传统的东方糕点,使之成为适合当代都市人享用的健康可口怡人的新中式融合美食。
King’s Guozi is the first new Oriental Fusion pastry brand in Shenzhen. The brand name derives from the classical “sweet cakes dedicated to the holy”, and it inherits the mission of injecting new vitality into traditional oriental pastries to promote rejuvenation. King’s Guozi continues to redesign Chinese traditional pastries with high-quality ingredients by integrating Chinese and Western styles, making a healthy and delicious new fusion cuisine for contemporary urbanites.
∇ 室内品牌墙

∇ 室内水吧与产品展示台

作为献上果子的与旗下新品牌献上茶铺的首个体验店,我们设想了品尝果子和茶的场景——在庭院里,在灯笼下。采用了东方庭院和灯笼的元素,希望客人在店里可以体验休闲的庭院平台座位和降低的灯笼吊顶的亲切,有些仪式感地放轻松,喝好茶和品果子。
As the first experience-based store of King’s Guozi and its new brand King’s Tea Shop, we envisioned a scene of tasting oriental pastry and tea – in the courtyard, under the lantern. Using the elements of the oriental courtyard and lanterns, we hope the guests will enjoy the informal seating platform in an intimate courtyard which created by the lowered lantern ceiling in the store. Relax, drink tea and taste Guozi in a casual enviromrnt with a bit sense of ritual.
∇ 室内榻榻米座位

∇ 室内青松景观位

∇ 榻榻米与橱窗小花园

∇ 橱窗小花园与室外自然景观呼应

∇ 白天室外北立面窗户开敞

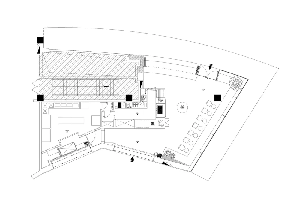
果子体验店位于欢乐海岸O’PALAZA的东北角,我们在南面商场入口处的设计了礼盒售卖区,除了展示果子以外,还设有手工台供客人观看制作果子的过程。进入店内有明亮的果子产品展示,还有果子外卖台可以领取在网上下单打包好的果子礼盒。店铺北面沿街的入口东边有一个风水小池塘,池塘中间有一棵名为“放青松”的迎客松,西北面是可完全敞开的双面卡座平台链接室内与外部树影婆娑的空间。店内正中间的售卖吧台是一个完整的方盒子,吧台前设计了用于展示果子文化,季节花艺和节日礼盒圆桌,举办应季活动时也可作为餐桌使用。东边的延窗卡座和临街玻璃间有一个空气凤梨小花园,同时也是节日礼品的展示橱窗。
King’s Guozi store is located at the northeast corner of O’PALAZA. We designed a gift sales area at the south entrance of the shopping mall. In addition to displaying the Guozi, there is also a window for guests to watch the process of hand-making it. By the entrance of the store,there is a take-out table where the guests will pick up their online order. There is a small fengshui pond at the east corner of the store entrance. A welcoming pine called “Chill” stands in the middle of the pond. Guests are welcome to sit under the pine tree. The northwest is a fully open double-sided deck that connects the indoor and outdoor environment. The bar in the middle of the store is a complete square box. The mobile round table front of the bar is designed to display brand culture materials, seasonal floral and holiday gift boxes. Occasionally it can also be used as a table to support events. There is an small garden between the east window and platform seats. The garden is also a showcase for holiday gifts and more.
∇ 夜晚室内榻榻米座位

∇ 夜晚室内榻榻米座位与展示台

∇ 夜晚室商场内部门面

∇ 夜晚室内水吧2

∇ 夜晚室外东面立面

∇ 夜晚室外东北面立面

∇ 深圳献上果子与献上茶铺平面

完整项目信息
项目名称:深圳献上果子与献上茶铺欢乐海岸店
项目地址:中国广东省深圳市南山区欢乐海岸购物中心E101店铺
设计公司:REFORM重塑建筑
公司网站:www.re-form.cn
联系邮箱:[email protected]
项目设计 & 完成年份:2019年
主创及设计团队:钟爱红,舒赛
建筑面积:110平方米
客户:深圳献上果子与献上茶铺
主要材料:富美架木纹防火板,立邦内墙腻子,家丽安环保水泥漆
摄影版权:舒赛

