 
 
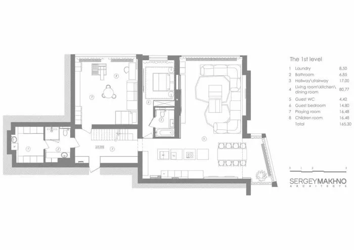
212㎡复式|Sergey Makhno
这间复式公寓由Sergey Makhno操刀设计,面积为212㎡。公寓秉承现代简约的设计风格,通过对不同材质与色调的把控,塑造干净简约、和谐舒适的现代化住宅。
 
 
 
 
客厅中尽管有极简主义的氛围,但色彩依旧十分丰富,不同的色彩融合于空间中保持着统一的色调,客厅依据屋主的个性与背景进行量身定制,沙发背后的书架用于陈列书籍,原始混凝土被作为主要的背景,为空间增添了一丝工业气息。
 
 
 
 
 
 
厨房以纯白色作为主要色调,电器融入原木色的橱柜之中,灰色岛台与墙壁相呼应。地面使用实木地板增添空间的温暖氛围,整体设计实用性与美观性相结合,展现出别样的高级质感。
 
 
 
 
 
 
 
 
 
 
餐厅位于厨房的旁边,白色的极简餐桌显得十分轻盈,搭配上原木座椅,简约而精致,墙面上挂着艺术装饰画,点缀了整个空间。一旁大扇的落地窗为餐厅提供了充足的光线,也便于用餐时欣赏风景。
 
 
 
 
 
 
 
 
主卧的设计独具特色,选用玻璃作为墙面,极大程度的利用了室外的光线,让室外的风景成为屋内的有机装饰,深灰色床品在灯光的映衬下更显高级质感,床头的装饰点缀空间。
 
 
 
 
 
 
 
 
卫生间与主卧同样是使用玻璃进行分隔,营造开阔的视觉感受。卫生间以白色作为主色调,白色大理石与黑色线条拼接,呈现出现代简约的轻奢气息。
 
 
 
 
 
 
 
 
 
 
 
 
 
 
 
 
 
 
 
 
 
 
 
 
 
 
Sergey Makhno Architects
Sergey Makhno是一家现代乌克兰的建筑及室内设计工作室,创立于2003年,工作室的作品主要呈现乌克兰当代风格,根据客户的需要为客户量身定制。SergeyMakhno毕业于基辅国立建筑与建筑大学和莫斯科设计学院。2003年,他直观地了解未来的设计,他创立了Sergey Makhno Architects,同时他也是极简主义和日本侘寂哲学的信徒。
 
 
Mazanka Apartment
 
 
 
 
 
 
 
 
 
 
 
 
Bila Wabi Sabi Apartment
 
 
 
 
 
 
 
 
 
 


