提到现代主义模块化先驱,有一个绕不开的名字,那就是 Fritz Haller。他可谓是 20 世纪下半叶在工业建筑领域最有影响力的瑞士建筑师之一。
△Fritz Haller
Fritz Haller 在当时针对不同的建筑形式构思了三种模块化建筑模式:Mini(私人住宅和办公室)、Midi(大型建筑)和 Maxi(工业建筑)。这三个模式都是基于同样的钢框架建造原则,只是尺度有差异。
本文要介绍的这座建成于 1969 年的房屋「Buchli」正是他使用 MINI 钢结构系统建造的第一座私人住宅,这栋住宅曾经的主人 Paul Schärer 更是与 Haller 有着千丝万缕的关系。
△Buchli 的老照片
Paul Schärer 是瑞士家具制造商 USM(Ulrich Schärer Münsingen)的领导者,这家家族企业成立于 1885 年,企业也是在他手中迎来了现代化阶段。Schärer 本人对设计和建筑充满热情,十分欣赏密斯·凡·德·罗(Mies van der Rohe)和勒·柯布西耶(Le Corbusier)的设计。
△Paul Schärer
Fritz Haller 的模块化理念非常符合 Paul Schärer 的诉求,于是在 1961 年委托 Fritz Haller 设计一栋可容纳行政办公室和生产线的新型建筑,并且在 1963 年,这两人合作开发了至今还世界闻名的 USM Haller 模块化家具系统。
USM Haller 系统由金属板和钢管组成,并通过独特的连接球进行连接,十分耐用。作为上世纪的经典家具设计之一,如今除了在律师事务所、医疗机构、办公室中广泛使用,更是成为了许多家居博主的“宠儿”。
回到 Haller 对他建筑理念的实践,除了已经火了 50 多年的 USM Haller 家具系统,不得不提的还有他为 USM 创始家族设计的私宅「Buchli」。
△Buchli 的老照片
「Buchli」坐落于倾斜的山坡上,由金属和玻璃构筑而成,俯瞰着阿雷河与阿尔卑斯山旁边的平原。
这栋建筑仿佛是 Fritz Haller 构想的模块化家具的衍生之作,不仅施工时间短,还易于转换和扩展。
直到 2000 年代初,「Buchli」一直被用作私人住宅,后来又被用作办公场所,只进行了一些小规模的维护工作。然而近年来,建筑物的围护结构和内部都遭受了明显的破坏。
△Buchli 的老照片
所以委托 vuoto Volume Architekten 在 2015 到 2019 年间进行了全面的翻新。不仅保留了建筑原有的结构与外观,同时遵循文物保护的严格标准修缮它。
翻新团队将模块化钢结构拆卸下来,将每个零件带到车间进行加工和修复,最后得以在此重建 Mini 钢结构。
结构的四处顶角保留了开放性的节点,可以满足建筑在水平方向上向外扩展。
简洁的钢架保留了开放性的构件,外墙的所有构建可以在钢框架内便捷的拆卸与更换。
柱和梁的支撑结构可以在所有方向上水平延伸,外立面原件也是可移动的。
起居室和卧室之间没有常规的分隔,也没有带门的房间和可打开的窗户,内部可以通过可移动的模块随时修改空间分布。
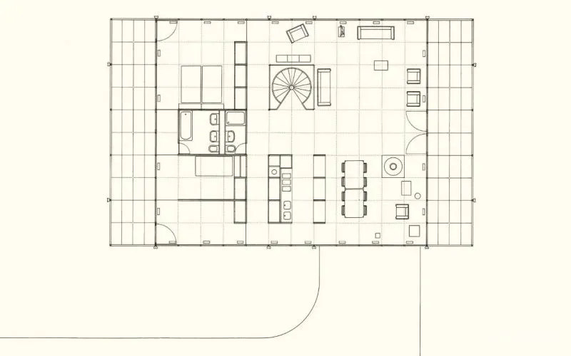
房屋按照 2:5:2:5:2 的比例建在支撑网络上。
位于建筑轴线区域有一个金属螺旋楼梯,下去是一间办公室,以及一间带有浴室的客房。
楼梯以一抹绿色为中心环绕向上,展现出精准严谨的比例关系。
二楼有起居室、厨房和三间卧室,宽敞的开放式起居空间延伸到整个建筑物的西南方向,且设有可欣赏山谷景色的阳台。
餐厅区域设有一个悬挂式壁炉,强烈的几何造型让它好似一个雕塑。
房屋内四处可以见到模块化家具的踪影,纯白色的墙面和天花的衬托下,既简约干练又十分引人注目。
卧室也拥有良好的视线,门是可以拆卸的。
主体建筑的斜坡下方还设有泳池以及凉亭。
由于四周都是玻璃,在夜晚尤其好看、通透。
这栋住宅在当下看似乎不具有什么特殊性,但在那个年代确实可以称得上一次质的飞跃,同时也诠释了战后社会和建筑理念的根本变化。
「Buchli」别墅如今已向 USM 的用户开放,既陈列文献和经典产品,也会定期举办展览等活动,这也得益于建筑内部灵巧的模块化规划,才有如今的呈现。

