这座被命名为“Āi Love 暖爱”的家位于台湾台北,室内面积约为116平米,夫妇两人十分眷恋于阳光洒进屋内的场景,仿佛伸手便可将那份温暖握在手中,尤其是有了两个可爱的孩子,这一份温暖显得更为重要,Nest Space(巢空间室内设计)将整个空间比喻成一幅拼图,不同的功能区都摆放在属于自己的位置,而结合了爱的光,则是完整拼图的最后一片。
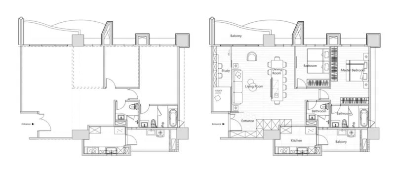
▲从平面图可以看出设计师并未对格局做过多的改动,被拆除的空间原先是次卧,改造初期打算将这里作为书房使用,后期考虑到客厅区域的狭窄,设计师们决定拆除这个空间,而书房也作为全新的功能区定制在空间最西侧。
▲入口处以湖水绿的六角砖铺设地面,白色的射线就仿佛是光一般,这也恰好符合了空间关于光与爱的主题。
▲玄关处定制了丰富的柜体,增加空间内的储物量。
▲玄关处特意选择定制了合适的长虹玻璃,让入口与生活区之间有一定的缓冲,避免有些人介意的穿堂煞。
▲不规则的入户区,让功能区的连接变得十分自然,加上木料色彩的一致性,入户仿佛也成为了客厅的一部分。
▲沙发旁还安装了一面洞洞板,一家四口的一些小物件,可以通过这里进行收纳。
▲烟灰色的沙发边角柔和,底部为四根黄铜杆进行支撑,仿佛是漂浮在空中的云朵一般轻盈柔软。
▲设计师定制的木柜内,都有着非凡丰富的收纳量,这也是有孩子的家庭必要的元素。
▲屋主夫妇迫切的希望新家可以拥有一间书房,可原先的布局未免让公共区域过于局促,最终设计师决定拆除原先的一间次卧,首先扩大整体的活动区域,并利用玻璃门划分出最西侧的一片空间。
▲整面的玻璃墙让客厅与书房可以互相享有视野与光线,虽然多了一个功能区,宽敞的视觉效果却一点也不受影响。
▲书房利用原木板定制了书桌以及卧榻,同时兼具功能性和储物性,不论是父母或是孩子,在这里玩耍或休息都十分合适。
▲屋主对新家的另一个要求是拥有一张宽敞的餐桌,最好可以容纳8-10人,方便招待朋友亲戚的来访,最终设计师以电视墙作为客厅与餐厅的中心,半高的墙体不仅承载了电视机的摆放,更是与三米长的餐桌合为一体,不仅满足了功能需求,也丝毫不影响旁边动线的延伸。
▲餐桌的后方同样铺设了湖水绿的六角砖,与洒入室内的温暖光线、与入口的材质都得到了呼应。
▲湖水绿成为了引导功能区的线索,与纯白色的墙面搭配,清爽又梦幻,设计师选择的餐边柜为全木材质,温馨且淡雅。
▲重新调整功能区后,室内共有两间卧室,儿童房内摆放了两张单人床供孩子们使用,主卧非常宽敞,并配备了专门的洗浴室,湖水绿的色彩让整个家都充满了活力与灵动。

