▲credit©Leonas Garbaciauskas
历史是设计灵感的来源。在19世纪中期,一系列最为严格自律的犹太宗教活动在Vilnius发源和发展。在1941~1944年的纳粹占领时期,位于Uzupis的犹太教会被摧毁。之后,在苏联的统治下,这座荒凉的祈祷室被改造成了住宅公寓。立陶宛再次独立将近20年后,人们才再次注意到这座犹太建筑遗址,并且考虑对其采取某些修复措施。
该项目中,Trimonis Architects的设计目标是保留建筑的历史尺度及其和周边环境的关系。为此,需要在平面布局和室内空间上维持原有建筑简洁而基本的形式。
区位分析 location
位于Vilnius老城区的项目从筹备开始就面临到了最大的问题。在完成所有书面文件并获得当地政府的改造许可上,就耗费了大量的时间。面对项目长久以来的材料和色彩与周围建筑相协调的同时,并且要保留设计的主要理念,也是设计师需要解决的挑战之一。
credit©Leonas Garbaciauskas
建筑与周边环境相和谐 building being consistent with the surroundings
设计师在该项目中,使用了当地典型、简单而真实的黏土砖、锡板屋面、庭院石材铺地等等材料。材料中的所有的砖材都是在立陶宛手工制造,遵循建筑师设计的尺寸。砖块的颜色通过煤灰和水调和。
▲建筑与周边环境相和谐©Leonas Garbaciauskas
室内空间概览 overall view of the interior space
设计师融合了Vilnius现在家庭的生活方式,重新设计和规划了项目的构造,同时保留了建筑的历史精神。且公寓中的每个空间都部分保存了过去犹太教会时期的壁画和砖石墙面等。
credit©Leonas Garbaciauskas
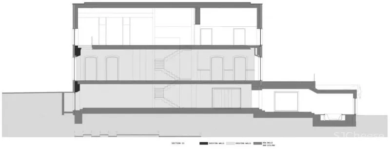
该项目分为三层,入口是通向门厅和带水池的楼梯,楼梯作为公寓的中心元素连接所有楼层,楼梯旁的水池则是自然的空气加湿系统,增加整栋建筑的湿度。
▲门厅和楼梯 ©Leonas Garbaciauskas
▲带水池的楼梯间©Leonas Garbaciauskas
▲从上层俯瞰楼梯间和水池©Leonas Garbaciauskas
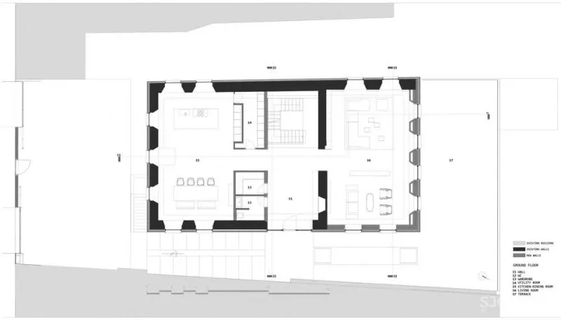
一层的规划有着与厨房相连的餐厅、舒适宽敞的起居室和带楼梯的入口门厅和室外露台,从窗外可以轻松俯瞰Vilnius老城的惊人景色。
▲餐厅 ©Leonas Garbaciauskas
▲墙面上保留部分历史壁画©Leonas Garbaciauskas
▲客厅 ©Leonas Garbaciauskas
▲从露台可以欣赏老城景观©Leonas Garbaciauskas
二层的构造共设计了五间卧室,可以让大家庭的成员们能够舒适地生活在一起。
▲可以眺望老城景色的浴室©Leonas Garbaciauskas
▲天窗©Leonas Garbaciauskas
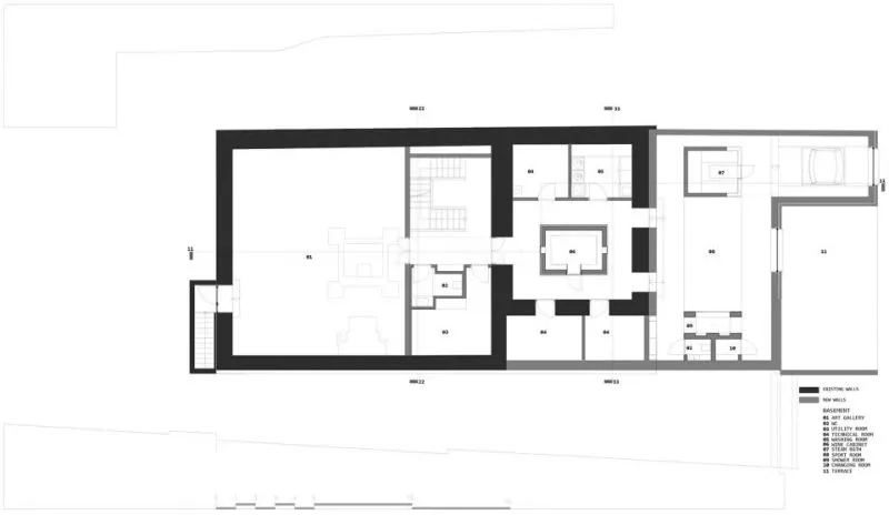
地下室拥有着充满艺术的画廊、葡萄酒窖以及日常方便锻炼的私人健身房和放松身体的SPA区三个部分组成。SPA区中包含了桑拿房和小泳池。
▲地下画廊©Leonas Garbaciauskas
▲SPA©Leonas Garbaciauskas
▲葡萄酒窖©Leonas Garbaciauskas
设计师的多样想法,赋予了建筑施工过程更多的意义。清水混凝土的建筑元素被留在空间中,贯穿整栋房屋,成为营造室内氛围最重要的形式元素。非结构墙体上涂以老式石灰抹面,希望可以保留老建筑的精神特征。在原有的老部件上,设计师还植入了新的构造和建筑细节。设计的关键目标是保留每个空间简单而基本的形式。
▲材料细部©Leonas Garbaciauskas
地下一层平面图 ©Trimonis Architects
一层平面图 ©Trimonis Architects
二层平面图 ©Trimonis Architects
立面图 ©Trimonis Architects
剖面图 ©Trimonis Architects
关于TRIMONIS Architects
光线,自然光和人造光,是我所有项目中不可分割的一部分。光线、空间和材料之间的完美平衡是我所有工作的主要方面之一。对话建筑是客户与建筑师、美学与功能、过去与现在、外部与内部、愿景与实现之间的持续对话。平衡与和谐是通过所有这些对话在每个项目中创建的。
材料和技术、创新材料和现代工程都是对新建筑理念的赞美。在做一个新项目的时候,我总是寻找和选择这样的材料和技术,它们不仅能够实现一个特定的功能,而且能够为特定的项目提供独特的功能和能力。统一所有这些要素考虑帮助我完成我所有的项目,注重细节,质量和工艺水平。

