陪你素时凭阑,云谈天青描墨画;
陪你万家灯火,静夜听雨慢煮茶
这个案子设计之初是特别快的就跟业主一家三口一起明确了设计方向,简单明亮,浅色系,收纳一定要多!男业主喜欢喝茶。孩子喜欢蜘蛛侠…。整个案例所有的材质都选择了大地色系及白色,去掉了很多本身需要作为传统照明的装饰灯,用大量的散射光,线性灯满足整体空间的照明是设计。更多的是通过亲切的材质,温暖的质感,让整个空间呈现家的本身的味道。
原始平面图
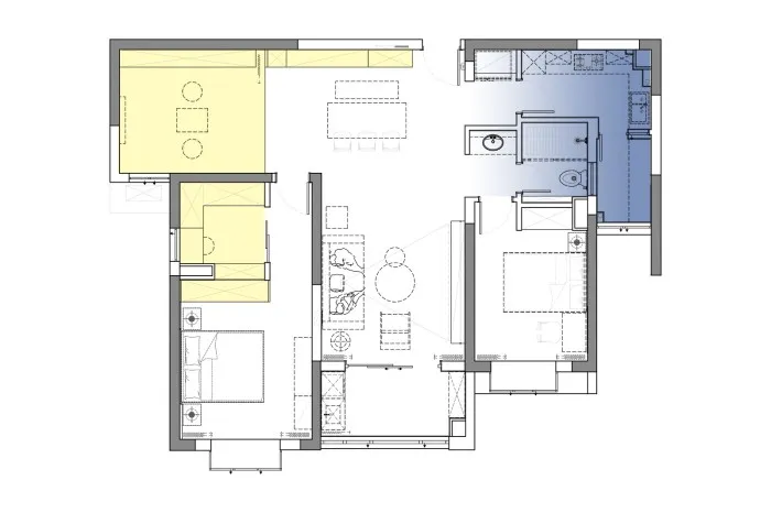
平面布置图
平面布局做了比较大的改动,原始户型有三个阳台,阳台面积都比较大但是采光相对又比较局限,设计师将所有的阳台都打通,扩围房间的一部分,是空间更加宽敞通透,整体布局动静分区明确,动线清晰,利用扩大后的部分空间尽可能大的增加了收纳空间,又一个步入式的衣帽间,以及一个小储物间,客厅阳台也利用一部分区域设计了家政间。
收纳区域示意图
收纳设计是这个案例比较重点考虑的部分,也是业主本身在设计之初特别强调的部分。以本身原始框架的尺度,结合立面设计,功能利用,以及结构特点,最大限度的吧可利用的位置都做为了收纳部分。进门处的鞋柜结合餐边柜延伸至茶室的储物柜,利用茶室地台抬高做的超大收纳空间,还有利用下沉式的卫生间改造的地面收纳柜。
客厅没有做传统的电视背景墙,用了一个收纳柜的形式,作为客厅的一个视觉点。投影幕布在吊顶前做了预埋,完美的融合在吊顶里。柜子用了三种不同的材质来增加设计的层次感。
沙发后面用钢板做了壁龛,摆件为生活增添一份艺术气息。家具选用了一些更具质感的材质。
客厅 餐厅 茶室融合成一个整体通透的空间,相互串联。
餐厅没有用吊灯,而是用了顶面的平板灯,跟吊顶融为一体,让整个空间更通透。顶面的木饰面也作为空间功能上的一种视觉分区。
茶室地台与餐厅之间用窗帘做了隔断,能够偶尔满足来客人居住的要求。
男主人喜欢喝茶,在这样一个简洁的空间里融入一个禅意的茶室。
地台不仅成为茶室的一个区分,更大大的满足了收纳的需要。
餐厅角度看客厅与茶室及卧室入口之间的关系。
主卧整体也沿用了客厅的原木色系,在这个基础上增加了灰色系的床头背景,让卧室空间多一分静谧。床头背景用线性灯作为装饰面的一部分,既起到了分割比例的作用,也能作为间接照明来使用。
衣帽间原本是下沉式的主卫,我们在改造成卫生间的同时利用了下沉空间做成了收纳地柜。打开后的储物空间十分可观。
儿童房用了蓝色的波浪板,给孩子的空间增加它独特的一份气质。床头用了灰色的软包。
厨房的色调跟整体空间很好的保持了一致性。
阳台增加了台面,扩展了厨房的可操作性。
卫生间也是选用了浅色系的砖。
在每一个设计开始思考的过程中,我们不仅是要给业主呈现一个漂亮舒心的家,更要在功能布局,及常年的生活中体会到我们设计带来的便利性,这样设计的作用才能让家的每一个角落成为生活在其中的人感觉不到设计的存在,因为生活的习惯忽略了设计本身,这应该才是最能满足业主的设计,家不仅能让让他在拍照的时候整齐漂亮,也希望在每时每刻,家都像生活之初那样干净整洁,并无时无刻的满足着主人的美满惬意!
项目地址:雅居乐滨江国际
项目面积:135平方米
项目设计:吾索设计
摄影机构:INGALLRY 丛林
主要材料:克诺泰斯进口地板 包豪斯家具 长虹玻璃
木饰面 萨米特瓷砖


谢谢分享