YODEZEEN新作,莫斯科天际线338m²顶层复式住宅,业主是一位风险投资家。由设计师 Artur Sharf、Artem Zverev、Gleb Brizhanov、Natalia Guseva、Angela Gabruskaya共同设计,每次出乎意料又新颖时,这一次YODEZEEN的灯饰室内装潢就变得特别,阴冷色调,难以逾越的几何学,还有女人的魅力。
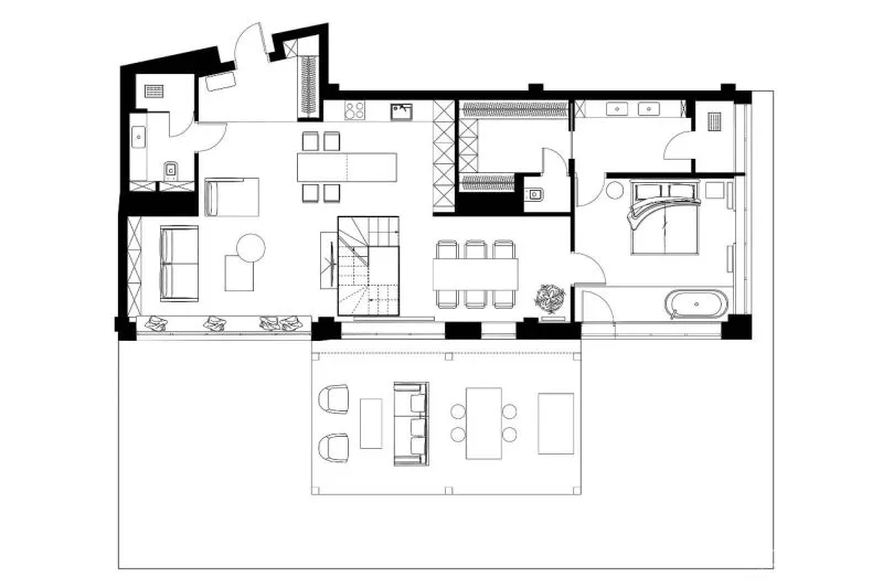
每个区域都用建筑和配色方案讲述着自己的故事: 乳白色的灰色起居室和用餐区与厨房区域形成了柔和的对比,完全融入了楼梯的黑暗角落。主卧拾起生活的情调,也轻轻地流入浴室温暖的灯光。低层重复了一般概念的基调,但宾客区由卧室,衣柜,浴室,橱柜,洗衣房和女佣区组成。
在这个项目中,yodezeen的建筑师和设计师依赖于艺术: 从物理作品到实际上在任何地方的体现。某些元素,尽管起居室架子上的配件,餐桌上的枝形吊灯,当然还有大厅和橱柜中女性轮廓的形状和曲线,作为《天使帝国》的布局和象征。每个区域都面向外部,一个120m²的露台和构成整个空间的第一级阳台。
“这个项目最薄,最深,最受人喜爱的部分是大厅和楼梯区域。
一件真正的艺术作品,为了这件作品,
不仅结合了几种复杂的自然材料,而且还结合了那些必须像真正的艺术家一样行事的大师们。
玻璃,木头,金属,楼梯的框架,我们创造了一个真正的雕塑,”
项目的建筑师 artur sharf 说。
公寓的设计理念集中在简洁的形式,逻辑清晰、和谐、简单: 钢材料定制的厨房,带后照明墙,经典色调的贴面板,瓷器和一个最不寻常的元素(客房床后面的皮面板)。
这套公寓最吸引人的地方之一,就是主卧和浴室的不同寻常的组合,室外的天空感觉伸手就可以触及
视觉上,这种解决方案使窗户更加“开放”,阳台的入口和谐地展现出来。
尽管公寓是一个真正的“天体美学”的画廊,但仍接受了这样的洗浴安排以使公寓沿露台的线条延续。
陶瓷石器盒子、台阶和照明已经成为一种功能性装饰。
天使帝国项目将所有喜爱的品牌联合在一起:
起居区以Minotti沙发为主,而Galotti&Radice茶几则为这一场景增色不少。
Bonaldo的吧台凳,Poliform的吧台凳
当然还有Juniper用餐区的灯光
B&B Italia。
Artem Zverev、Artur Sharf

