项目起因于业主购买了一栋拥有100多年历史的房子。传统的住宅带有三角形山墙,石材地下室状况良好,因此建筑师决定将地下室保留下来供新房子使用,其余部分则全部拆除。这一大胆而冒险的方案得以实现,如今,业主居住在这个美丽而现代的住宅中,过往的历史灵魂与带有工业风格的北欧美学相融合。这说明了:通向成功的道路并不总是那么容易,付出一些额外的努力都是值得的。
场地毗邻一条繁华的道路,是游客通往Jizera山脉的起点。因此,建筑师用一面新的混凝土墙取代原来旧房子的外墙,如此不仅降低了邻近道路传来的噪音,同时也限定出住宅的外部入口。墙后是一个小院子,能够看到入口、客房和通向下方庭院楼梯的路标Ještěd。
新结构是木制的。沥青屋顶与涂刷焦油的黑色立面让人们想起这里曾经有过的棚屋。混凝土墙面后伫立在旧石材基础上的实际上是两栋住宅:一栋家庭住宅和一栋为年轻水手准备的小客房,业主的儿子大部分时间都在掌舵横渡大西洋的船只。
父母居住的家庭住宅相对复杂,建筑设计需要满足三个人不同的需求——一对友好的夫妇和他们的女儿。地下室上新建的一层包括几间卧室、一间办公室、一间浴室洗手间和带有户外桑拿房的庭院。桑拿理疗在北方严寒冬天是一种令人愉悦的体验,这就是为什么业主几乎都不会让桑拿房冷却下来的原因。庭院虽然简单却很美。几棵大树形成一种山林的感觉。菜园的周围增加了一些花盆,业主妻子在这里种植了新鲜的香料。
住宅内的起居空间两侧具有大面积的窗户。西南侧的窗户可以看到Harcov河谷和Ještěd,北部的窗户可以看到有桑拿房的庭院。走下几级台阶就是一间带有壁炉的起居室,宽敞的楼梯通向连接小天井的厨房和餐厅。地下室的其余部分被用作杂物间和储藏室。
建筑师非常享受设计室内的过程。内部采用了许多定制元素。浴室中一部分水龙头换成了铜管和花园水龙头。卧室内有悬挂在天花板上的衣柜,这样它们不会占用太多的空间,保持卧室、步入式衣帽间和浴室相互连接。厨房柜台设计保留了建造房屋地下室部分的花岗岩块。










▼西立面图
▼东立面图
▼A-A′剖面
▼北立面图
▼B-B′剖面
▼南立面图
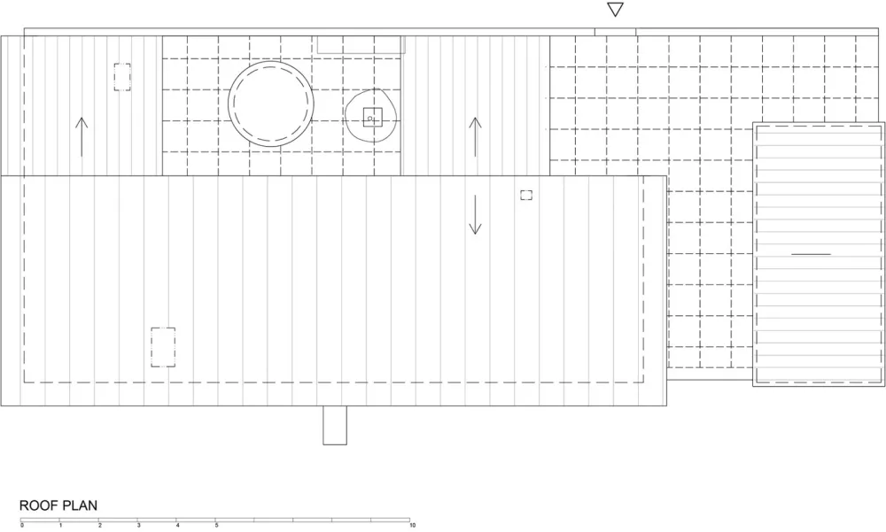
▼屋顶平面
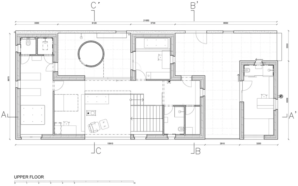
▼上层平面
▼首层平面
▼场地平面图
项目名称:墙后屋
架构师:Mjolk
网站:www.mjolk.cz
联系电子邮件:info@mjolk.cz
项目地点:捷克Liberec
项目:2014
完成:2018
项目规模:271.5平方米
场地面积:1147平方米

