建筑师依靠专业与匠心为年轻的设计师业主营造出微型公寓里小而美的极简生活.
The architect rely on professionalism and craftsmanship to create a tiny but beautiful minimalist life in a miniature apartment for young designer owners.
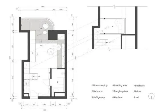
微型公寓最好的资源是窗景与充分的自然光. 建筑师摒弃传统沙发-电视型客厅,通过桦木板制作的地台-书架墙-阅读区域与悬空书桌-伏案区域搭配,使空间整体气质类似一个微型图书馆或工作室. 让特别的空间语言去迎合业主独有的生活习惯.
The best resource of a micro apartment is window view and abundant natural light. The architect abandoned the traditional sofa-TV-type living room, and made the floor, bookshelf wall, reading area and suspended desks and desk areas made of birch planks to make the overall temperament of the space similar. A mini library or studio. Let the special space language cater to the owners unique living habits.
建筑师保留原始的钢结构阁楼床,并通过金属现场焊接及喷漆打磨,做出极细格栅、扶手线条去呼应金属定制元素.
The architect retained the original steel structure loft bed, and made very thin metal grilles and metal line handrails to echo the metal custom elements through metal welding and spray painting on site.
想让31平米的咫尺空间充分容纳生活起居及学习工作各类业主需求,需要利用好每一处空间做好收纳,例如踏步做烤漆板抽屉,地台下箱体做可开启装置等.
All the needs of daily life, study and work are completed in a space of 31 square meters.The architect use every space for storage, such as the step board as a drawer for baking paint, and the box under the platform as an opening device.
人造石一体式台盆、壁地一体式漆面覆盖、开放式书架以及悬空书桌,设计中处处体现着逻辑与理性的极简美学.
Artificial stone integrated basin, wall and floor integrated lacquer cover, opentype bookshelves and suspended desks, the design of this apartment embodies the minimalist aesthetics of logic and rationality
Muka Architects
做温暖|极简|诗意的设计.
Muka Architects木卡工作室成立于2017 年,创始人张英琦为建筑师出身,并坚持将建筑学与园林的理念带入室内空间设计,提倡“温暖的极简主义”与“东西方结合的人居设计”理念。
关于工作室名字的解释:“木”代表自然、质朴;创造感知与诗性;“卡“代表建造、精准;注重逻辑与克制,此为木卡的核心设计哲学。
工作室的业务范围涵盖家居、酒店、民宿室内设计与人居环境提升;艺术、商业空间设计与品牌形象升级;小型建筑立面改造与室内外一体化设计;设计咨询服务等。作品曾获多个国内外设计奖项与媒体发布。


现在这个浮躁的世界,能细心整理一些东西发上来的越来越少了。要么就是敷衍的图片,要么就是枯燥的文字。之后就是AI生成的预制菜类的打包便捷快餐了。感谢楼主的分享,让我能在大智能无人化来临之前,看到同类发出的项目。有幸与您互动,缘分。