这是位于斯洛伐克Bratislava的一座公寓,随着城市的发展需要,大部分的老旧住宅楼都已拆除重新,而公寓所在的“500 Flats”居民区却未被划入改造之列,从一方面说它很好的展现了城市的过去历史,但是对于居住者来说,需要面对的则是破败的楼栋、不合理的格局,所以当业主买下了这座70平米的老宅时,聘请Alan Prekop进行改造,他表示卧室可以减少,因为自己需要更为通透明亮的生活区。
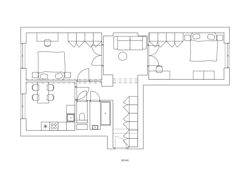
▲70平米的空间原先划分非常不恰当,两间卧室位于东西两侧,中间夹着非常狭小的客厅,厨餐厅也为封闭区域,导致过道非常黑暗。
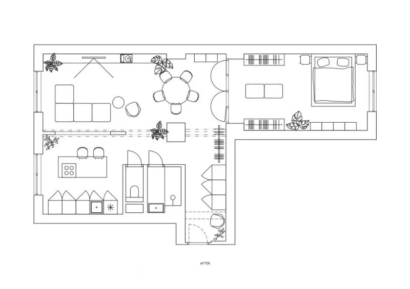
▲Alan Prekop此次改造拆除了所有可拆除的墙面,并重新调整了功能区,如今仅保留建筑东侧的一间卧室,其余空间都改为公共区域,光线明亮,视线穿透。
▲原先的过道定制了一整面的柜体,导致入口区狭小拥挤,如今设计师预留了小块的换鞋区,摆放的座椅提升舒适度,并将原先厚重的柜体拆除,只用置物架与白色的拉帘进行收纳,布艺的飘逸感减少厚重气息,甚至可以将屋主的单车也摆放在此。
▲纯白的墙面与水泥地面拼凑出清爽利落的室内气息,厨房区使用了大量的不锈钢板,阳光下独有的光泽感增添室内的丰富度,而鹅黄色的一字型橱柜瞬间温暖了这里,达到一个平衡的空间氛围。
▲原先厨餐厅与卧室被隔墙划分,如今设计师调整了布局,原先卧室的位置改为了客厅,而相连的墙面设计师选择在中央开设圆形的门洞,让区域之间的连接变得十分有趣。
▲门洞内设计师也镶嵌了不锈钢的金属板,这样的搭配看起来非常的新颖,这个门洞也多了份艺术的魅力。
▲从客厅望向厨房也像一幅油画般宁静美好,沙发旁的落地灯有心的选择了鹅黄色,与厨房柜体互相呼应,功能区的过渡也变得十分自然。
▲在拆除隔墙时,设计师保留了必要的横梁和立柱,而铲除表层裸露出的混凝土则彰显了粗犷原始的工业魅力,搭配的水泥、白墙,让工业风也有了清爽与利落感。
▲不论是出于改造成本控制的目的还是对老物件的不舍,设计师都认为废物利用是值得认真对待的事情,在此次改造中设计师回收了废弃的瓷砖,铺贴在客厅的墙面上,蓝色的玻璃也搭配上混凝土柱成为了全新的置物架,长达六米的蓝色玻璃可以摆放屋主的诸多物品,光线的照射下更是彰显出色彩的魅力。
▲洗手间的位置并未改变,依旧遵循了原先马桶区独立的设计,只是将开门方式进行调整,并在外墙铺贴不锈钢板,做到同元素的延续。
▲如今餐厅被划出厨房区,安排在宽敞的公共区域,十分具有艺术感的家具与粗犷的混凝土形成了鲜明的对比,而黄色的餐椅也成为转变功能区的线索。
▲如今设计师仅保留了一间卧室,传统的隔墙开门被替换为玻璃双开门,当门打开时,视线可以直通空间的另一端,看起来非常明亮通透,黄色调的窗帘不仅遮挡隐私,也将功能区和谐的切换。
▲两侧都舍弃了传统的厚重衣柜,而是选择了购买自IKEA的组装式置物架,根据自己需求进行调整,十分的实用。
▲不锈钢的材质甚至延续到了卧室的床头板,这样的搭配足够特别!
设计/Alan Prekop
摄影/ nora-jakub


谢谢分享