【名称】 HBA丨南京景枫万豪酒店方案丨效果图+CAD施工图+物料表丨1.85G
【格式】 JPG,PDF,DWG格式
【大小】 1.85G
目录
『HBA丨南京景枫万豪酒店方案丨效果图+CAD施工图+物料表丨1.85G』
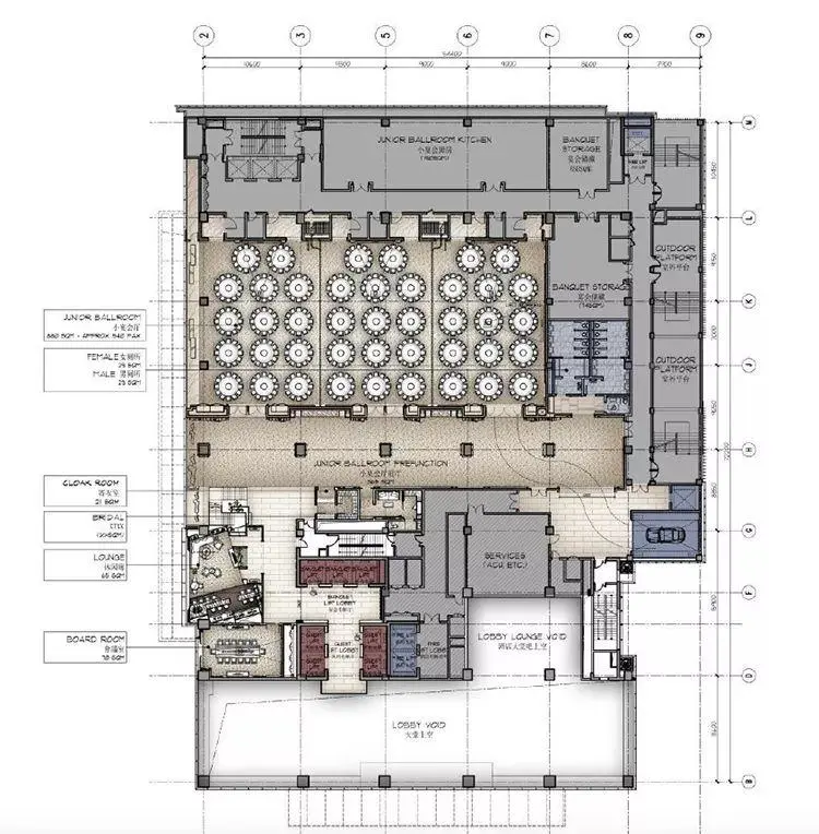
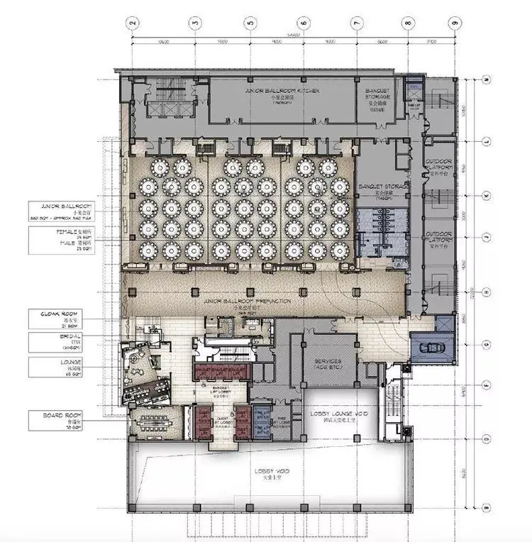
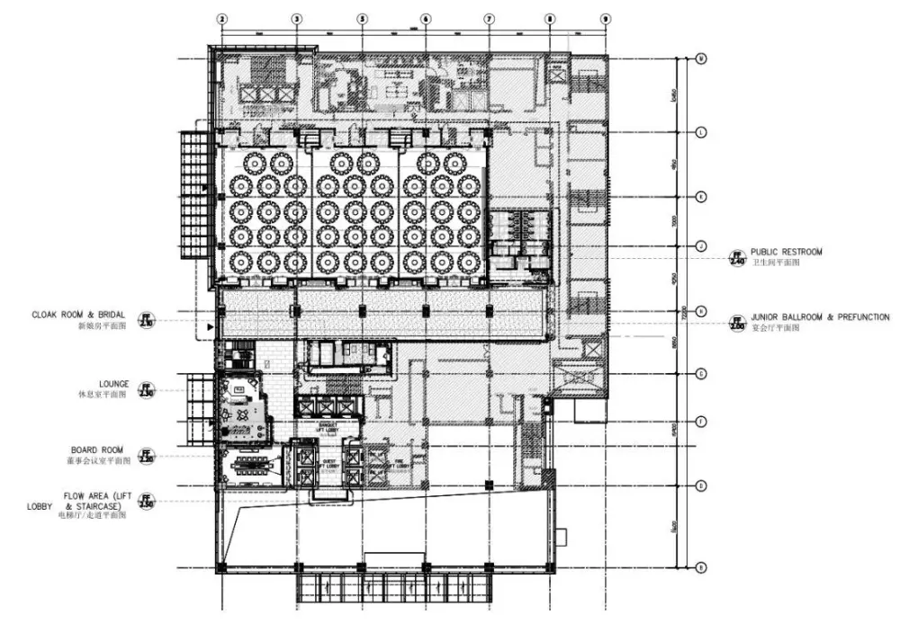
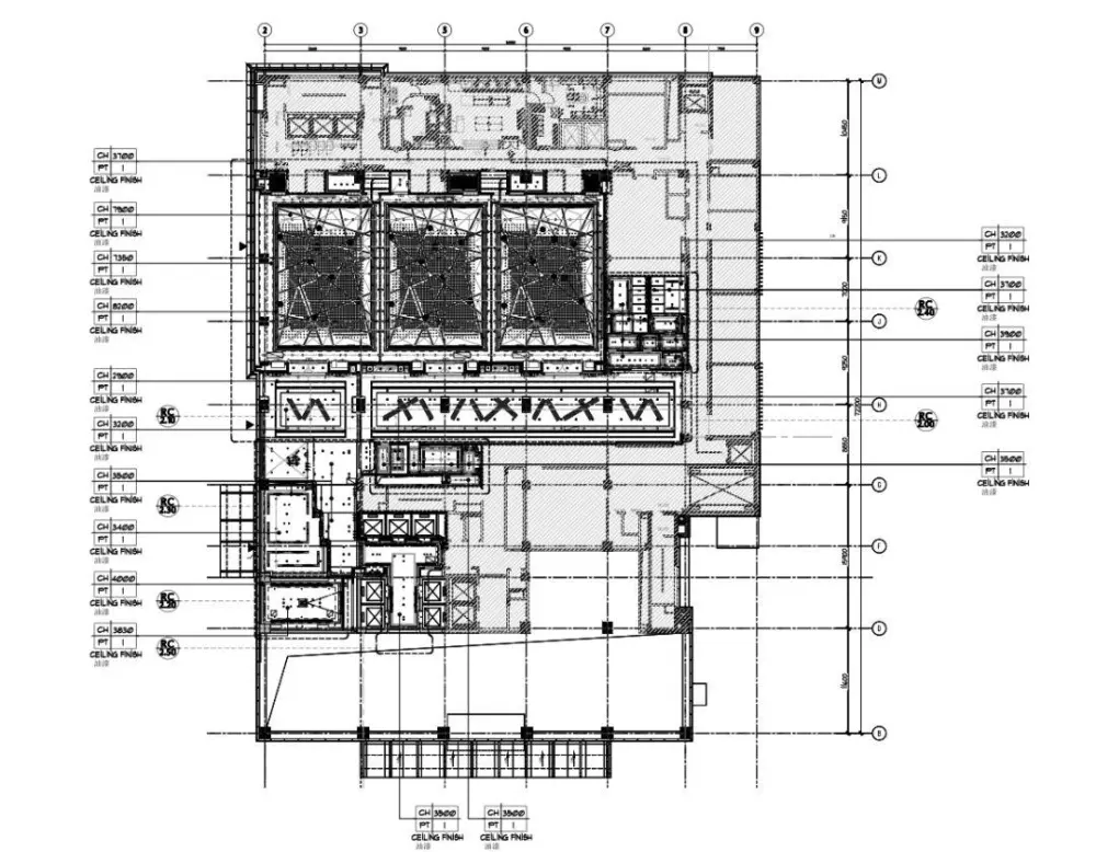
– 下面是部分案例截图 –





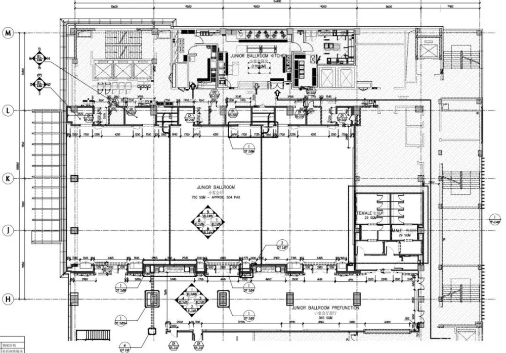
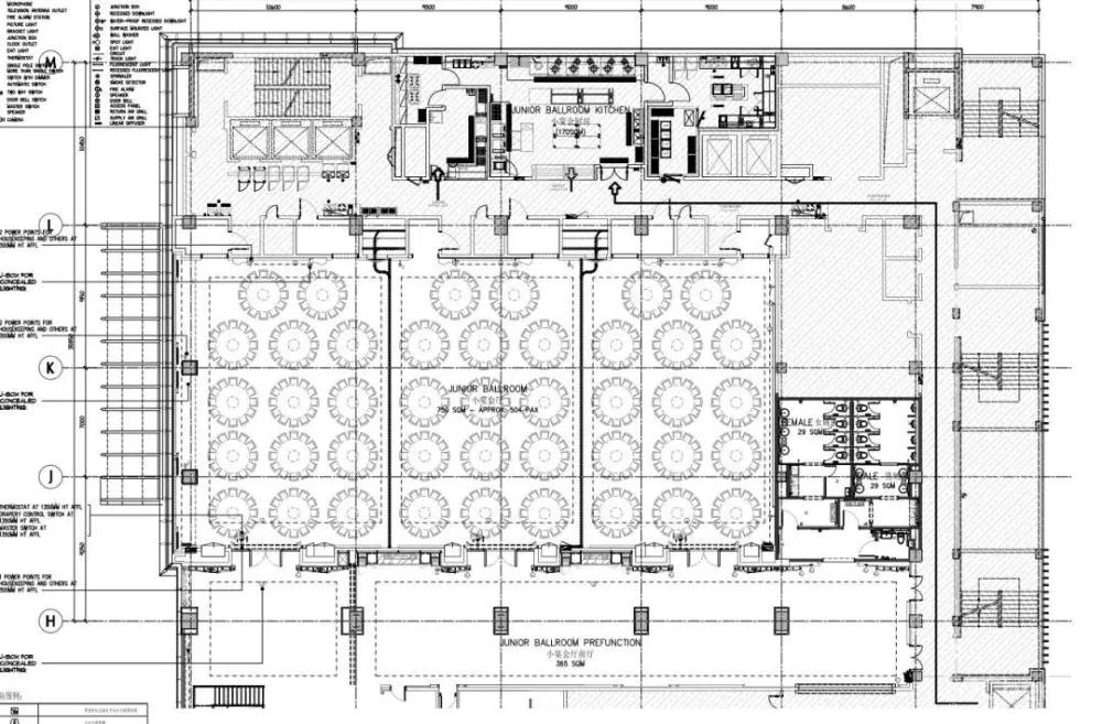
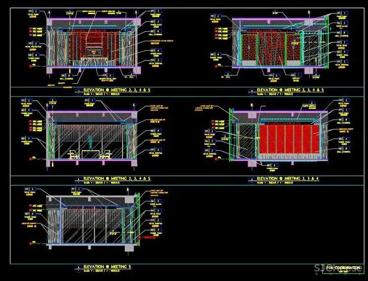
– 01.概念方案 9.21M –

– 02.效果图 56.3M –
– 03.施工图 1.78G –


– 04.硬装物料表 3.64M –
详细图文
『HBA丨南京景枫万豪酒店方案丨效果图+CAD施工图+物料表丨1.85G』
– 下面是部分案例截图 –
『HBA丨南京景枫万豪酒店』











































不错,谢谢分享