海南摘得自贸区、自贸港的机遇,吹响深化改革开放的号角,仅50天后海南就宣布设立海口江东新区,将其作为海南自贸区港建设的集中展示区。
仁恒置地躬逢其盛,将“滨江园”的“国际社区IP”带到江东新区,抢得
的身份,为海南、为中国自贸港,再建一座滨江园!
深谙空间美学需注入生活中的每个情节,仁恒再次联袂亚洲豪宅缔造者李玮珉大师,将线条、材质恰如其分地勾芡稠度、浓度相宜的室内空间,平铺直叙时敞开心境的坦然,妙笔生花处酝酿天性和鸣的杰作,用艺术的思维方式来抒写生活的脉脉温情。
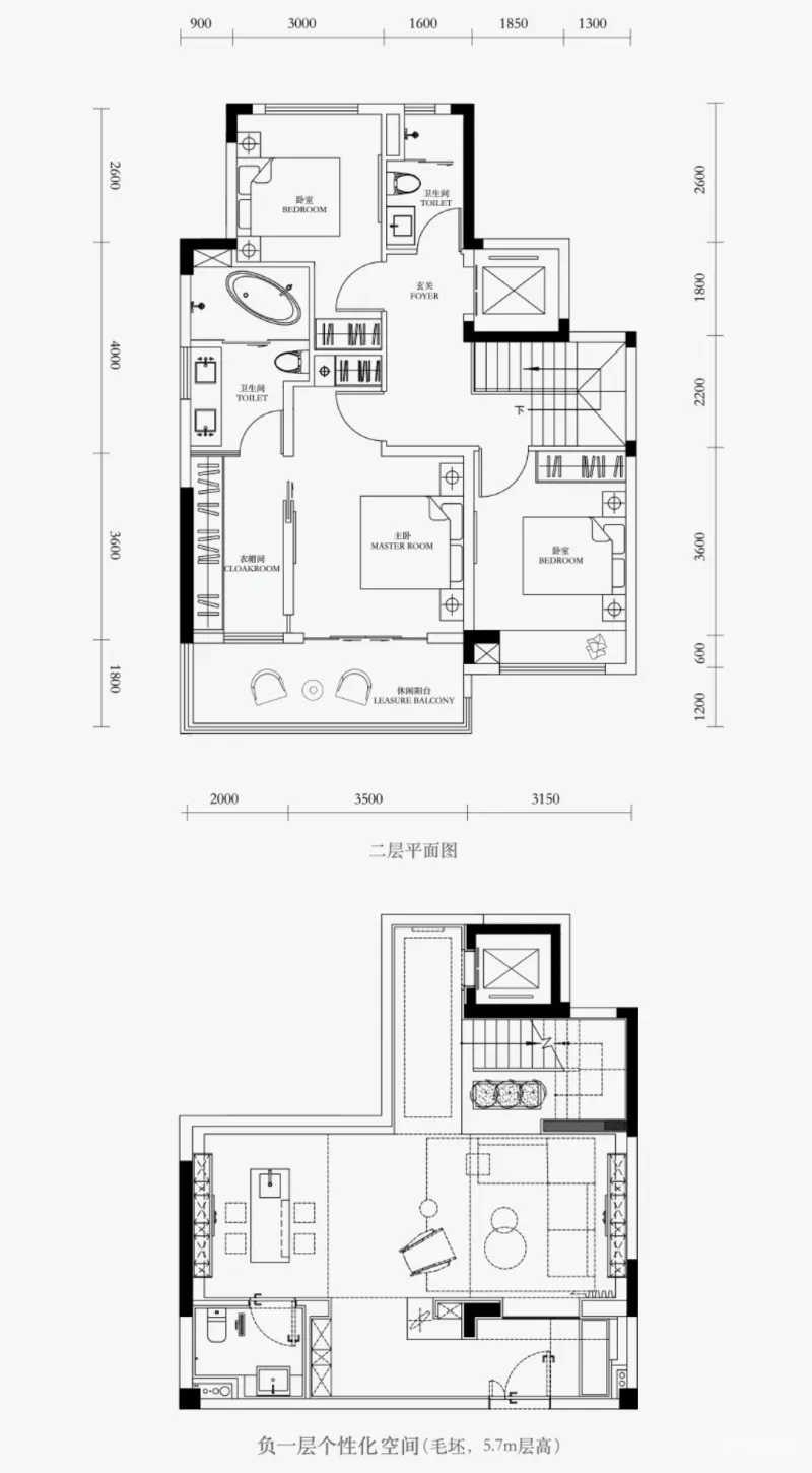
项目名称 | 海口「仁恒滨江园」叠墅
业主单位 | 海口仁恒房地产有限公司 室内设计 | LWMA 李玮珉建筑师事务所 软装深化及落地 | DAS大森设计 室内设计专案经理 | 刘翔 室内设计参与 | 杨林、姜雨潇、赵垚淳、丰劭垸、胡月、郑博宇 软装方案设计 | 谈永琴、李楠楠、冯文君 软装深化及落地 | 崔端、符智恒、邱丽敏、甘思婷、陈丽文、高嘉琳 效果图 | 郑人博、陈凡、谷怡君、侯凯、黄永昊、王红伟 项目面积 | 182~201㎡ 项目摄影 | 麒文摄影、赵迪旻
在家具和装饰品的选择中,单品是否与空间气质相融成为考量的重点,所以每件单品都是“量身打造”。
木质贯穿整个空间,自然且温馨的特点成为设计师常用的材质之一。
抛弃各种奢华材质的堆砌,
仁恒深知,舒适才是生活的唯一主张,
携手李玮珉建筑事务所打造
空间的每个角落,皆是想象兑现主场….
一座真正的国际化社区,具有一定的规模,体现其时代性、开放性和包容性,需要具备四个条件:
国际化规划理念、独具特色的建筑风貌、国际化生活配套、与绿色健康的生活方式。
DAS大森设计2012年成立于深圳,20年一线地产公司的设计管理经验,善于透过客户视角洞悉市场需求的关键所在,以更包容的“大设计”视野在艺术与商业之间找到平衡,在沟通中达到价值的共识。


不错的方案