△杭州江河鸣翠生活美学馆
Background /背景
江河汇–河流的交汇处。交融、汇聚、新生,这也是MDO此次展开空间故事的伊始。杭州江河鸣翠生活美学馆也有类似的理念关系,这是访客进入一个新开发项目的纽带,在传承地块历史记忆的同时,衍生出全新的风貌。
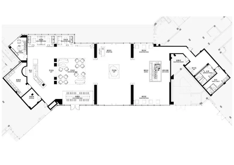
此次生活美学馆主要展现两种功能,首先是承载了销售功能,其次在褪去商业功能之后, 它将成为通往整个生活社区的主入口。这也在一定程度上给予了空间定性,准确地划分空间,以传达在具有真实性的未来生活场景。因此空间整体以中轴为界限被划分成了三个体块,并由东西轴线串联在一起。在合理分配主体功能空间的同时,MDO试图以最环保的设计方式将未来再改造的可能性降到最低。
Reception /接待空间
位于三个功能体块汇聚中心的主入口区域,承载着接待功能的同时,也是将来的归家之路。在这里,将地块原有的记忆作为空间理念的出发点,MDO试图用材料与雕塑的微妙关系来营造一段有记忆感的画面。地面抛光如水镜般的大理石如同泛着光影的江面,体现着水的力量与美感。而位于空间中心的巨石体现着曾经打造河道遗留下的痕迹,沉着地矗立在汇聚的焦点,并被四周的石墙守护着。
作为世界上最长的人工运河,京杭大运河的挖掘,并不是一朝一夕,一蹴而就,运河也是历代人民汗水和智慧的结晶,设计师以土地为载体,它是运河的根基,三堡作为京杭大运河的最南端,承载记录着运河的历史变迁,红色寓意着生命力的不断绽放,设计师希望结合凿石的工艺提供源源不断的繁荣的运河生命景象。这个命题,也是此次设计赋予空间的主要情绪与基调。
Discussion /洽谈空间
洽谈空间与其背后的水吧台是空间中的故事的高潮。根据原有建筑条件,设计师将中心洽谈区正上方的天花向上拓展,将原有建筑梁体作为装饰结构,象征着船体中脊的结构,匠人将银箔一片一片的贴在天花表面,新形成的边界将原本单一的天花体块进行重新划分,与红色渐变地毯划分的地面相呼应。在整个环境里用不同材质创造一个没有立面边界的独立空间,从而在不同的层面赋予了空间一种恰如其分的表现张力。
空间中的顶部造型灵感来源于在京杭大运河上船只倒置的底部结构形态。
由丝绒制成的红色渐变地毯在不同光线和角度下呈现出不同的颜色,可以说是时空
的化学反应所带来的视觉体验。
水吧区位于洽谈空间的最末端,是整个空间最具戏剧焦点的地方之一。将原有不规则的建筑承重柱进行包裹,合理的将其化解到整个空间中,使之成为整个空间横向中轴线上的一部分,也更像一幅画框将中心的弧线端点进行了聚焦。红色的丝织壁布有节奏的夹藏在空间材料中,彰显着十足的戏剧性,同样象征着当地内在的热情与活力。
整体的水吧台采用了解构的造型语言,在顺应建筑原有体态的前提下分成了若干个体快,避免过于笨拙的同时,并巧妙地与一旁的柱子形成对话感。
在减少不必要的装饰语言的同时,使得空间结构自身也成为功能体块的一部分。
Tea Area/ 茶水区
透过百叶帘的缝隙,阳光抚摸着枝条的倒影映照在桌面上,别有一番生机。
Model Area / 沙盘区
从洽谈区回望过去,能看到远端的地域规划,同时这条轴线也串联着水吧台后方的红色景墙。 巨石雕塑位于轴线的中心处,而在其背后的是整个地块的前景与方向。
前往卫生间需经过一段窄长的通道,为了破解漫长的过道给人们所带来沉闷无聊的体验,将展廊元素嵌入其中,卫生间一侧的深色木饰面墙壁如同艺廊的展墙,容纳着富有个性的设计与创作。
其中包括挂在墙面上的一幅象征河流的艺术作品,巧妙呼应着摆放在周围的艺术品和家具,花艺师Jing创造的作品简洁又充满着艺术张力在整个空间氛围营造中起到了点睛的作用。
Materials / 项目材料
项目名称|杭州江河鸣翠生活美学馆
项目业主|滨江地产 绿城中国
设计公司|MDO木君设计
设计总监|徐伩君、Justin Bridgland
参与设计|常笛、高达、宋万洋、黄硕、肖雯、贺斌
软装设计|董萌萌、胡霞
空间格局|接待区、艺术品展示区、洽谈区、吧台区、VIP、品牌展示区、卫生间、设备间
主要材料|木饰面、木质格栅、拉丝金属、真丝壁布、大理石、银箔
完成日期|2020.12
Justin Bridgland / 徐伩君
MDO木君设计联合创始人
MDO木君设计,由徐伩君女士和
Justin Bridgland
年,在上海共同创办的建筑与室内设计事务所,曾获多项设计大奖。MDO非常注重空间的感受,探索空间尺度与比例,通过细节,材料与光影的交错关系来营造出一段特别的旅程。
MDO主要为客户提供高端住宅、样板房、展览中心、酒店以及办公空间等设计服务。其中包括中国顶级的开发商。MDO的项目遍布世界多个地区,并获得国际认可。MDO的工作范围广泛及设计种类繁多,其中包括室内,建筑,灯光,家具以及平面设计。这种多角度和多学科的方法对于把控项目的整体性至关重要,是项目成功的关键。
由于生活在两个不同的文化背景下,徐伩君女士和桥义先生的设计作品中融入了不同的文化底蕴。他们对设计中的“转换”概念十分重视,如何将空间与情感结合创造不同的体验。

