背景,老村待新颜 王家疃村位于山东省威海市环翠区张村镇,距离市中心约30分钟车程;村庄属于里口山风景区,是入山的山口之一,地理位置便利且重要。村庄位于一个东西向的沟谷中,南北高,中间有溪流穿村而过;村庄形态狭长,周边自然生态完好,农业景观资源丰富,村东侧有一座近年来复建的庙宇,且香火颇旺。村庄聚落原始结构完整,保留有大量的毛石砌筑的传统民居,以及拴马石、门头、石墩等携带历史信息的物品,是典型的胶东地区浅山区传统村落。村庄现状已具备一定的旅游基础,在周末或者开花季节,威海本地居民会来此处踏青观光;村中也已经有一些旅游配套设施,但规模小,不系统,且空间条件相对较差,业态也以农家乐为主,缺乏层次和影响力。基于这种情况,王家疃村希望对现有资源进行梳理,完善业态,提升空间质量,升级服务;更为重要的是:要通过空间和建筑的塑造,形成村庄个性和识别度。
前世,个性决定命运 白石酒吧由王家疃村中的一座普通民房改造而成。建筑本体并没有过多特征,吸引设计师的是它所在的位置和与环境的关系:建筑位于村口附近,周边建筑多为老民居,毛石墙体,厚重朴拙,且建筑与建筑之间彼此连接,密度很高。与老建筑不同,原建筑并不是传统形式,体量不大,一层,最初为平顶,后因为风貌原因加建了坡屋顶;墙面为白色涂料,这与周边厚重的气氛显得“格格不入”。建筑和其他建筑不连接,保持一定的距离,具有很好的视距。更为独特的是,建筑依溪流而建,挑出的外挂廊更是跨在水面上,轻松、飘逸,具有很强的识别度。这些特点都给建筑改造提供了灵感,此外,闲置的状态也保证了改造的可实现性。于是,设计师选中了它,并准备将它来个大变身。

态度,一种质的蜕变 新建筑的风格不希望复古,相反,设计师说:“要是新的!”新建筑应该为老村庄提供不同以往的新气象,新血液,正如它未来将服务的人群一样——年轻、浪漫,甚至在某些时刻有少许的躁动和性感,白石酒吧要成为了村口的一道靓丽风景线;同时,它又应是属于王家疃村的,对原建筑重要信息的保留,体量的控制和外观的“平静”,都确保新建筑在另类之余,和老建筑们可以顺畅的对话、共存。中国古人云:“天地氤氲,万物化淳。”意思是说“天地由混沌之气演化而成;然后天气下降,地气上升,二气相交,则有万物的化生”。设计师认为乡村振兴也是如此,白石酒吧就像是一滴落入净池的墨水,在洁净的池子中慢慢扩散,悄悄渗透。这个扩散的过程是相互的,是水与墨的分子互相运动的结果。白石酒吧代表着城市和互联网时代的年轻人,周围的老建筑则代表了乡村和传统文化,两者的结合可以使年轻人回到村落,助力古村发展,也使古村增添了活力、丰富了生活。
方法,回到未来 原建筑的自建性和原真性是设计团队考虑的第一要素,存在即是合理。如何在保持原建筑特征基础上对其进行改造,使其符合当下的功能和形式风貌,是本案设计的关键点。首先是做减法,清理、拆除原建筑加建部分,包含临时搭建的厨房部分及上一轮乡村美化所加建的屋顶,当这些“粉饰品”被彻底清除,显露出来的即是真实的“建筑本质”。
然后,是做加法。在乡村的设计实践中,关键的是平衡多方的利益关系,包含居民、政府、及运营方。乡村设计需要尊重既有现实,及居民的利益,在改造的过程中不能产生使用面积的减少,从而损害居民的利益。遵循此原则,设计团队在房屋的东西两侧各增加一跨新建筑,从而弥补了拆除厨房损失的面积,同时为建筑的入口创造出一个可供缓冲的灰空间。通过“补齐”的手段,强化原建筑因自建所偶然形成的“现代性”的建筑体块。
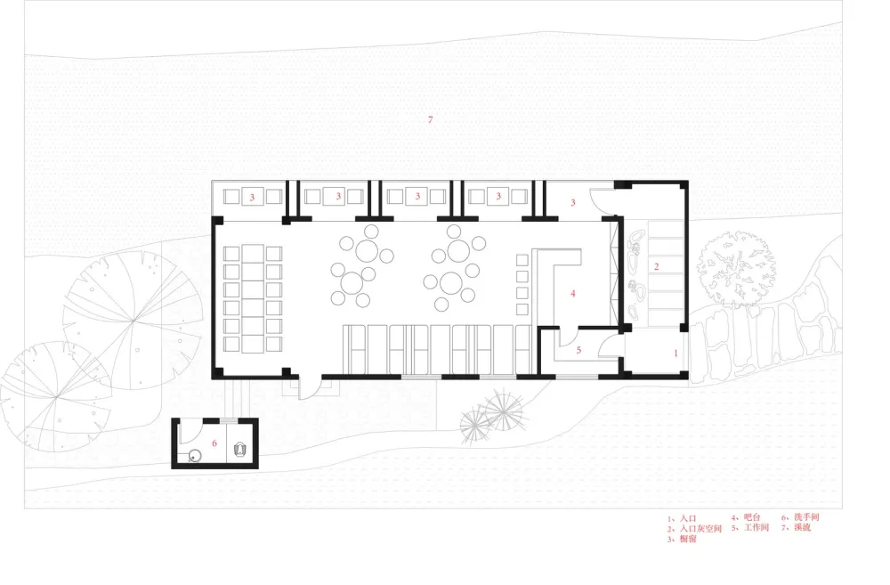
在此基础上,设计团队对不同建筑立面进行了深入的讨论:朝向河道的一侧,挑出的阳台成为设计团队关注的重点,5个独立的、橱窗式的“盒子”被插入到阳台和挑檐之间的灰空间中,原建筑的牛腿梁被小心的保留、暴露,与新加入的盒子形成咬合。设计有意的将改造后的建筑立面与现代主义经典建筑相呼应,其实原建筑就很“现代主义”。新形成的5个景片式的展示窗口,与隔河相望的传统民居形成戏剧性的“看与被看”关系。通过建筑对古村的“框景”,及古村对建筑内部的“窥视”,创造出一个新旧交流的“非典型”关系。东侧和西侧立面则采用了半通透的花砖,在特定时间会形成有趣的光影效果;同时,花砖的手法,也是民居与新建筑之间的介质,拉近了彼此的距离。

建筑室内设计延续了“白”的设计元素,采用水磨石、镂空砖、白色钢网、原木为主要空间材质,创造质朴又略显粗粝的空间气氛。白色成为空间的基底,如同留白,为未来创造了多种可能性。“橱窗”地面采用不同色彩油漆,在光线的照射下出现鲜艳的色彩,并反映到白色空间,巧妙的体现出酒吧的活跃气氛。
夜景照明主要以建筑内透光为主,在古村暗环境的笼罩下,内透的方式使建筑内部的活动在主街上很容易被看到,建筑内外活动的看与被看关系得以翻转。这样的处理加强了酒吧这一新业态在古村中的戏剧性和影响,也使白石酒吧成为古村“夜间生活”的第一聚焦点。
改造后的白石酒吧依旧保留甚至强化了自己的“个性”,它与周边植被覆盖、小溪穿行的自然环境,厚重朴实的古村人文环境均产生了强烈的反差及对话。如此强烈的视觉冲击力和标志性使得白石酒吧成为了王家疃村对外传播的一道难忘印记,成为助力王家疃乡村旅游的重要节点。同时,设计过程中对于新与旧、看与被看、真实性与装饰性的关系讨论,也针对当下乡村建设中广泛存在的类似建筑的改造和再利用提供了一个小小的参考。
延续,倾听你我心声 夜幕降临,王家疃村依旧按照往常的生活节奏,慢慢平息了一天的忙碌。与往日不同的是白石酒吧的出现,让原本寂静的乡村有了一点活跃。人们终于可以不用纷纷赶回城里寻找食物,终于可以端着一杯啤酒,欣赏里口山的晚霞,也可以在山风中回忆童年的星空。白石酒吧就像是一个稍显躁动的年轻人,白天里,它与老建筑一起争锋;夜晚,当老人家们都已隐于夜幕,它还不舍睡去,悄悄的向周边发出邀请,希望和大家分享自己的故事。












建筑师 : 三文建筑 / 何崴工作室 地址 : 王家疃村, 威海, 山东省, 中国 主持建筑师 : 何崴 设计团队 : 陈龙、张皎洁、桑婉晨、李强、吴礼均 建筑面积 : 120.0 平方米 项目年份 : 2018 摄影师 : 金伟琦
版权声明:本文内容由用户自行发布上传或投稿由设计芝士代为发布,版权归原作者所有,设计芝士不拥有其著作权,亦不承担相应法律责任。如果您发现本站中有涉嫌抄袭或侵权的内容,请点此提交工单进行举报,一经查实,本站将立刻删除涉嫌侵权内容。

