郑州被誉为“火车拉来的城市”,除了发达的城市交通脉络外,发展速度也突飞猛进。矩阵以“传承列车 记忆艺术馆”为灵感核心来打造郑州绿都项目的营销中心软装设计。在古都建筑群围绕下,依托着自然的亲和在缝隙中寻求突破,延续着城市不灭的文明轨迹奔涌向现代的幕下。这样的城市气质启迪着软装设计在室内空间中用设计的语汇谱写城市中的自然与人文这部最值得吟唱的诗。
Zhengzhou is known as the train to the city, in addition to the developed urban traffic context, the speed of development also by leaps and bounds. The matrix is designed as the soft decoration design of the marketing center of Zhengzhou Lvdu Project with the inspiration of Heritage Train Memory Art Museum as the core. Surrounded by ancient capital buildings, relying on the natural affinity to seek breakthrough in the gap, continuing the citys eternal civilization track rushing to the modern curtain. Such urban temperament inspires soft decoration design to compose the most worthy poem of nature and humanity in the city with the language of design in the interior space.
Henan zhengzhou
Green Kyushu Yashu marketing Center
当代人对空间的诉求已经不止是美观和舒适了,城市的迅猛发展,人居生活也随之迭代更新,更为崇尚当代艺术与人文美学风尚的融合,更讲究人文情怀与美学气韵。设计在位于郑州的项目空间的陈设中嫁接起雅叙的美学、人文和艺术的紧密连接,倡导人文设计将对生活空间的思考转变为对艺术的态度。
Contemporary peoples demands for space are not only beautiful and comfortable. With the rapid development of cities, peoples living life is also updated iteratively. They advocate the integration of contemporary art and humanistic aesthetics, and pay more attention to humanistic feelings and aesthetic charm. The design grafts the close connection between Aesthetics, humanity and art in the layout of the project space in Zhengzhou, advocating the humanistic design to transform the thinking of living space into an attitude towards art.
入口的接待区主要为调和参观者的情绪,接待台软装延续空间简明属性,用灯饰《甘露》调节空间氛围——滋润的黄河之水滴泛起的涟漪,预示着这片土地经历着时间的考验,从平凡蜕变至今。
The reception area at the entrance is mainly for the purpose of harmonizing the emotions of visitors. The soft decoration of the reception desk continues the conciseness of the space and USES the lamp decoration Mandew to adjust the space atmosphere — the ripples caused by the water droplets of the Yellow River indicate that this land has gone through the test of time and changed from ordinary to psent.
自由组合的洽谈区,没有固定的围合形式,整体色调上采用少许轻薄的大地灰白,强调空间的建筑体块感与纯粹力量。
Free combination of the negotiation area, there is no fixed form of enclosure, the overall tone of the use of a small amount of light gray earth, emphasizing the space of the building mass sense and pure power.
设计收集了郑州历史长河中的老物件,用木头和陶瓷以及铁器嫁接起空间从过去到现在、从现在到未来的历史之韵和美好憧憬,在无言中讲诉郑州人的故事。
The design collects the old objects in the long history of Zhengzhou, and USES wood, ceramics and iron to connect the space with the historical charm and beautiful vision from the past to the psent and from the psent to the future, telling the story of Zhengzhou people in silence.
多元的艺术品放置在空间中,细节之处的含蓄美,让所有的物件和故事在细腻的材质感受中,产生微妙的互动。木质与皮质之间的异质构建使石材的物理沉重感显得轻盈,室外光的介入同时也让空间变成一个天然的艺术馆。
Multiple artworks are placed in the space, and the subtle beauty of the details makes all objects and stories interact subtly in the exquisite material feeling. The heterogeneous construction between wood and cortex makes the physical heaviness of stone appear light, and the intervention of outdoor light also turns the space into a natural art gallery.
图纸呈现 /Drawings show
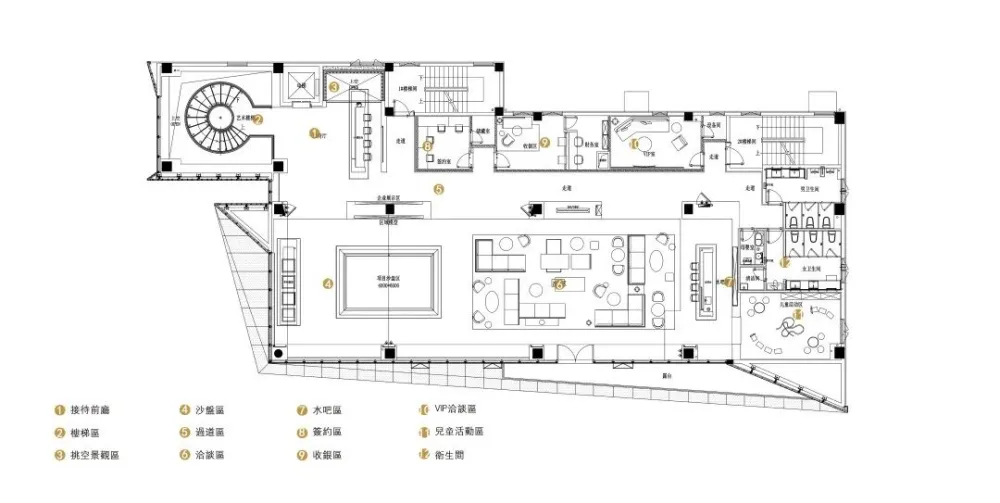
△ 平面图/Delta plan
项目名称:绿都九州雅叙营销中心 Project name: Yashu Marketing Center in Kyushu, Lvdu 项目面积:720㎡ Project area: 720㎡ 业主单位:郑州绿都地产集团股份有限公司 Owner: Zhengzhou Lvdu Real Estate Group Co., LTD 项目团队:胡序坤、付超、廖娟、孙焘、时光、柴超盈 Project team: Hu Xunkun, Fu Chao, Liao Juan, Sun Tao, Time, Chai Chao-ying 硬装设计:上海飞视装饰设计工程有限公司 Hard decoration design: Shanghai Feilv Decoration Design Engineering Co., LTD 软装设计:矩阵鸣翠 Soft decoration design: Matrix Ming Cui 空间摄影:郑焰 Space photography is by Zheng Yan 主要材料:白沙大理石、爱马仕灰大理石、古铜拉丝不锈钢、木饰面等 Main materials: white sand marble, Hermes grey marble, copper brushed stainless steel, wood veneer, etc 设计时间:2020年2月 Design time: February 2020 完成时间:2020年5月 Completion Date: May 2020

