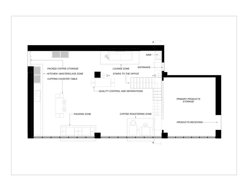
Kitchen Coffee Roasters公司在白俄罗斯明斯克从事咖啡烘焙工艺。我们通过修建二楼增加了将近200平方米的空间。厨房咖啡烘焙团队在这里举办培训工作坊。有必要在有限的预算内修复将近200平方米的天花板,高度为7米。
 
 
在此基础上,我们建议将房间分为两层。主空间的装修被调整到离地面3米的高度,节省了墙面和天花板的装修预算。通过这种方式,我们在生产大厅的老墙和新产品光滑的白墙之间创造了一个对比。
 
 
我们使用了自动找平的地板。这些画强调了在三米的高度上“打断”设计的想法。杜宾犬被画在三幅画上——一幅画布放在地板上,狗被画到它的全身像。在另外两幅画中,狗的头比地面三米高。分别,头像没有出现在作文中。

 
 

 
 

 
 

 
 

 
 

 
 

 
 

 
 

 
 

 
 

 
 
 
 
 
 
 
 
 
 
 
 
 
 
 
 
 
 
位置:白俄罗斯
年份:2018
摄影师:Tatiana Sibas


