新加坡 Meyer House
△ MeyerHouse 来源于jessicasiow.com
三大顶尖事务所联手打造
Meyer House的设计阵容极其强大。建筑设计由新加坡WOHA公司负责,其联合创始人为著名建筑师Wong Mun Summ;室内设计由纽约和多伦多公司Yabu Pushelberg担纲;景观设计则由德国跨国设计和工程公司Ramboll Studio Dreiseitl(RSD)承揽,打造的是“热带风情英伦景观花园”。
立基于新加坡的WOHA建筑师以其完美融合于自然环境与社群的设计,深受全世界的认可。2018年他们推出了许多极具高影响力的创新力作,最新的代表作品为获奖年世界建筑大奖年度最佳建筑奖的“海军部村庄”。
德国Ramboll Studio Dreiseitl(RSD)
该工作室是Ramboll旗下的多方位创意设计公司,景观建筑、艺术与都市设计、环境工程、城市水利规划以及总体计划方面,拥有令人望其项背的优异成绩。尤其在相关领域的工程、设计与顾问方面,引领世界潮流超过37年。
Yabu Pushelberg
Yabu Pushellberg位于多伦多与纽约的共工作室,是众多奢侈品牌与顶尖饭店业的最爱,也是新一代艺术家合作的首选对象,他们的作品打破了各种艺术设计形式的藩篱,是时尚潮流的领航者。值得一提的是,Meyer House是Yabu Pushelberg在新加坡承接的首个私人住宅项目。
设计理念:生生不息的大自然
WOHA建筑师们巧妙地让郁郁葱葱的花园景观,与周边公园连绵成无垠美景:精心设计的潺潺流水蜿蜒在园区之中,为居民们带来清新舒畅的环境。而Ramboll Studio Dreiseit景观设计团队,则把英国乡村的迷人花圃设计,与高低起伏的小山丘完美融入其中。室内设计团队Yabu Pushelberg结合了当代设计与传统的工艺精神,将人们对大自然的礼赞,嵌于舒适的居家生活中。
△ MeyerHouse 来源于woha.net
△ 模型鸟瞰 来源于jessicasiow.com
MeyerHouse位于新加坡,沿迈耶路的东部住宅飞地上。Meyer House总占地面积约17,709 ㎡,毗邻1公顷的森林公园。由1栋5层高的建筑组成,共有56个住宅单位。户型包括三居室、四居室以及顶层阁楼,建筑面积介于183平方米至528平方米。
△ 建筑立面 来源于jessicasiow.com
△ 立面效果图 来源于jessicasiow.com
△ 透视效果图 来源于jessicasiow.com
△ 透视效果图 来源于jessicasiow.com
打造“热带风情英伦景观花园”
5层含阁楼的住宅项目以连续的C型排列在50米乘70米的内部森林花园周围,梯田状的花园和水体层层叠叠一直从上至下到达地面层,这样的开放式设计将地下到大厅的空间得到了良好的自然采光,通风和丰富的绿化,并向四周渗透至外围森林公园。
△ 花园 来源于jessicasiow.com
△ 英式花园 来源于woha.net
△ 梯田花园 来源于jessicasiow.com
从Meyer House样板客厅与餐厅前的阳台上观看花园(图片来源:Samuel Isaac Chua/the Edge Singapore)
住宅建筑的内部,森林花园被木质的百叶格栅隔开,令住宅内部映衬着内花园的宁静和温暖的特别空间感。Meyer House的所有单位呈C形排列,围绕着一个中央景观庭院,内设有一个游泳池和水景。因此,每个单位都能欣赏到绿色植物。面向的单位之间的间隔至少为45米。“要营造‘别野住宅’的感觉,必须有一个宽大的花园和良好的间距。”
△ 会所 来源于jessicasiow.com
在花园之中,沿着森林公园的主要景观轴向中心设置了一个长条形的水景区,既映射出了繁茂翠绿的树木和植物,又倒影了建筑物温暖的外墙。娱乐设施区、餐厅、休息室以及室外活动平台的景观视线都可以触及中心的水景区。
△ 水景区 来源于jessicasiow.com
△ 水景区 来源于jessicasiow.com
YABU完美诠释温暖奢华
率先完工的售楼处由设计大师Yabu Pushelberg亲自操刀,延续YABU一贯标志的高尚优雅,设计师精湛地以浑然天成的璞质为发想,完美诠释了Meyer House的当代奢华。亲手严选的品味家饰与装潢,以和谐的色彩与相得益彰的纹理,交织出高度美感的居住空间,展现家的温暖与美好。
在EdgeProp 2020年卓越奖上,Meyer House不仅获得了“顶级豪宅开发奖”,还获得了“样板房卓越奖”。
Yabu Pushelberg打造了售楼处和样板房的内部设计,还包括家具设计。SuMisura公司的Lim说:“样板间既温馨又豪华。”
所有单位的客厅都配有90%的遮蔽式阳台。阳台外层有一层百叶窗,可以遮光和防雨,内层则可以保持95%的空调温度,让住户尽享四季如春的室内空间,也能美化自室内向外看的风景。
新加坡首创,私人独立门厅与直达电梯
在Woha的建筑方案中,Meyer House将是新加坡第一个为每一户居民设计私人专属直达电梯的建筑方案,极大得保障了居民的私人属性,体验感极为加分。所有住宅都可以通过地下的私人车道、停车场和大厅单独进入。
Meyer House共设有三卧、四卧、Penhouse共三种户型,其中四卧被设定为畅销户型,其与Penhouse都拥有专属停车位。
新加坡(EDGEPROP)——在2019年年中,由庆隆有限公司(Kheng Leong Co)和华业集团(UOL Group)合作发展开发的56套单位的豪宅项目Meyer House被推出时,发展商将其誉为“东部的那森”。那森(Nassim)这个地点无疑是黄金第十区中最负盛名的。十多年前,庆隆和华业联合Orix Capital共同发展了拥有100套单位的Nassim Park Residences。
Meyer House是由前Nanak Mansions重建而成,位于第15区,面积约109,630平方英尺。该地块于2017年9月由庆隆(Kheng Leong)和华业(UOL)以$2.011亿整体收购。如果以小型公寓为基础,该地块有可能被重新发展成一个203套单位的私宅项目。
△ 总平面图 来源于jessicasiow.com
△ 楼层平面图 来源于jessicasiow.com
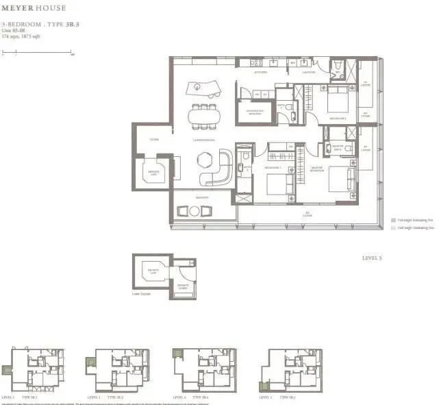
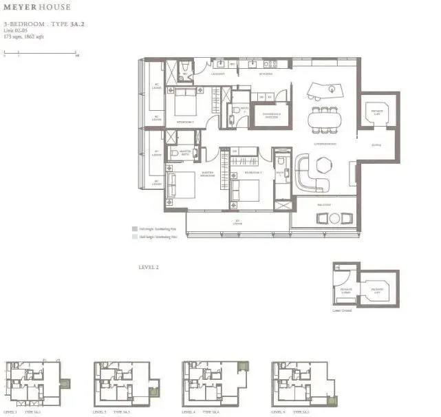
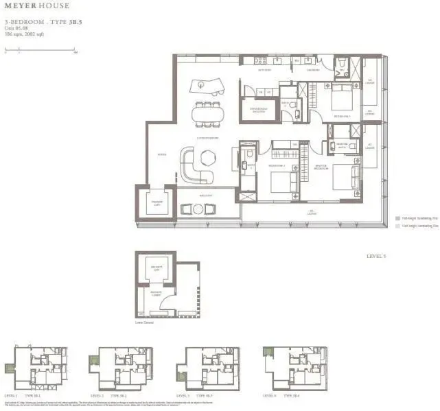
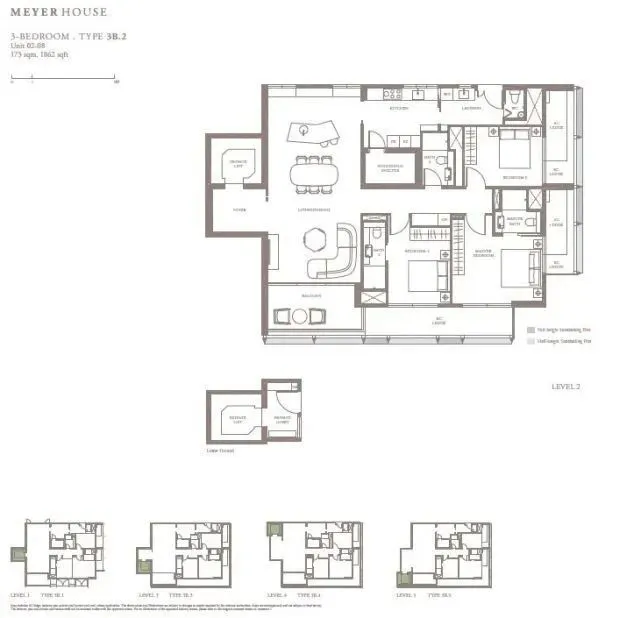
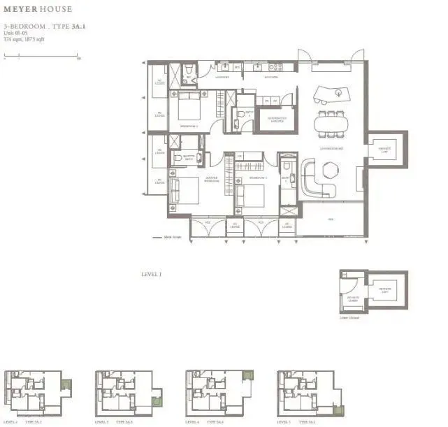
△ 3居室户型平面图 来源于jessicasiow.com
△ 3居室户型平面图 来源于jessicasiow.com
△ 3居室户型平面图 来源于jessicasiow.com
△ 3居室户型平面图 来源于jessicasiow.com
△ 3居室户型平面图 来源于jessicasiow.com
△ 3居室户型平面图 来源于jessicasiow.com
△ 3居室户型平面图 来源于jessicasiow.com
△ 3居室户型平面图 来源于jessicasiow.com
△ 3居室户型平面图 来源于jessicasiow.com
△ 3居室户型平面图 来源于jessicasiow.com
△ 3居室户型平面图 来源于jessicasiow.com
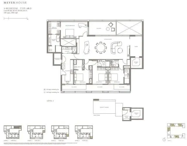
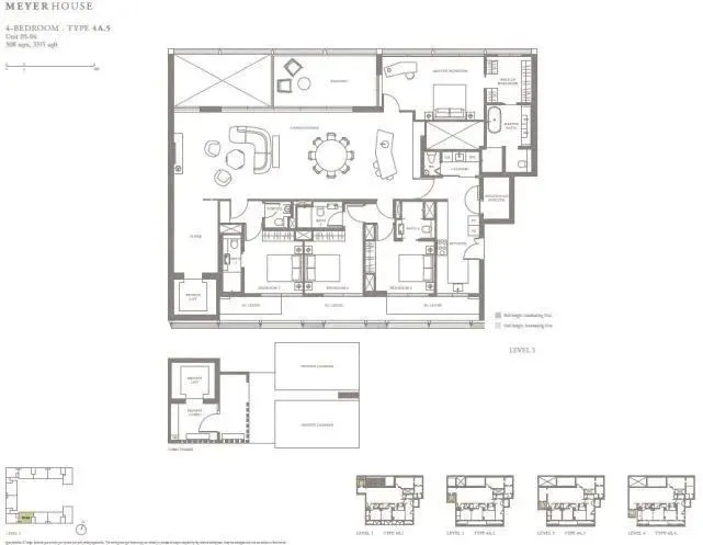
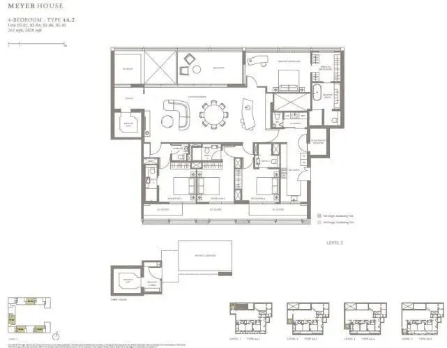
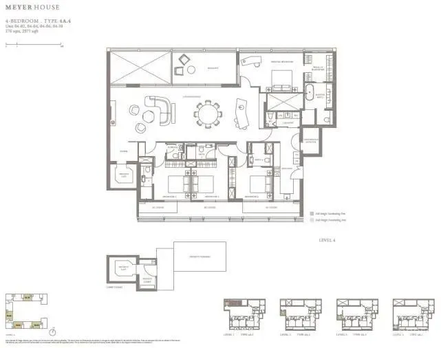
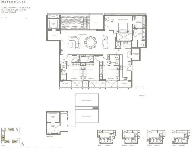
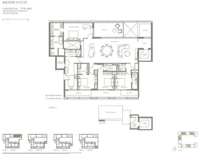
△ 4居室户型平面图 来源于jessicasiow.com
△ 4居室户型平面图 来源于jessicasiow.com
△ 4居室户型平面图 来源于jessicasiow.com
△ 4居室户型平面图 来源于jessicasiow.com
△ 4居室户型平面图 来源于jessicasiow.com
△ 4居室户型平面图 来源于jessicasiow.com
△ 4居室户型平面图 来源于jessicasiow.com
△ 4居室户型平面图 来源于jessicasiow.com
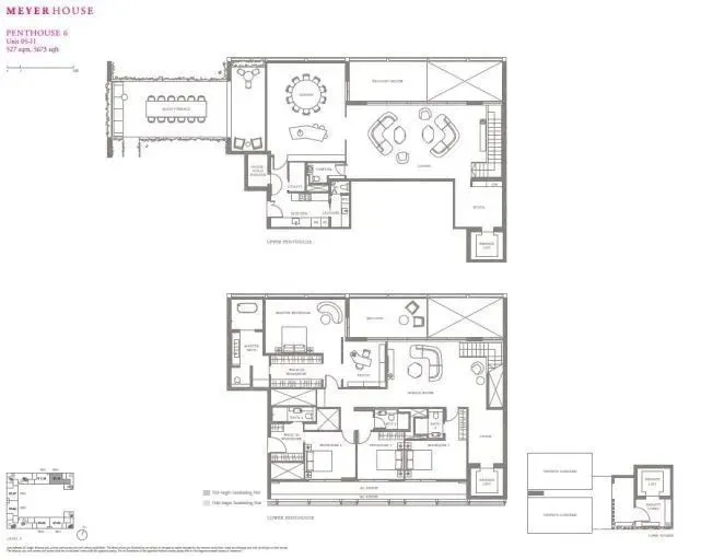
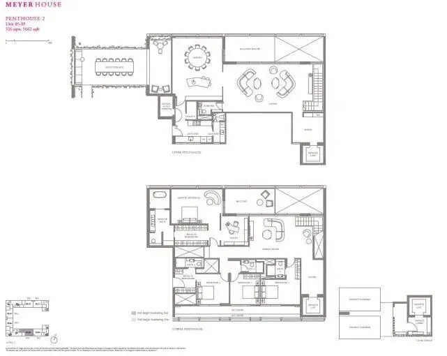
△ 顶复户型平面图 来源于jessicasiow.com
△ 顶复户型平面图 来源于jessicasiow.com
△ 顶复户型平面图 来源于jessicasiow.com
△ 顶复户型平面图 来源于jessicasiow.com
△ 顶复户型平面图 来源于jessicasiow.com
△ 顶复户型平面图 来源于jessicasiow.com
项目名称:新加Meyer House
室内设计:Yabu Pushelberg
景观设计:Ramboll studio Dreiseitl
建筑面积:15,684.74平方米
预计竣工时间:2021年11月

