MATRIX DESIGN
设计是以创造和交流,来认识我们生活的世界,创造力的获得并不是,一定要站在时代的前端,当我们转身,一样会看见悠久的文化,为我们积累了雄厚的资源。
本案项目面积800㎡,是由矩阵纵横领衔主持,设计以东方情怀的精神境界,兼顾传统表现手法的基础,打造了符合现代审美的居住地。
色彩与尺度,在所有艺术表现形态中,是最易感染人的,作为本案尤为考虑的部分,设计通过两者之间的界定,营造全新的情境。
直接而干练的线条,自由放松的尺度,是对应空间最贴切的诠释,将原木色作为色彩基调,使其让整个空间形成一个,和谐统一的视觉环境。
设计要有故事,让故事诉说设计,把每个空间联系起来,让它们成为故事里的角色,并以此产生互动。
以空间为轴场,既保证了整体装饰的和谐,又突出了设计主题,互动式的布局,拉近使用者与经典的距离,增强体验印象和真实触感。
客餐厅是最能表达整体设计风格调性的,水墨版的黑白灰与暖木质感的交织,黑色木质与水墨大理石臺面的碰撞,在光影恍惚中,仿佛置身中古的水墨画里。
在这里,多是营造温馨的氛围,留白和实木家具,衬托中式韵味,结构简单的灯,营造了返璞的感觉。
人是自然界中的群居性动物,因为社交文化、饮食文化的兴起与流变,才使得后来的人类成为了更高级的社会性动物。
如果说空间是一种对生命的礼赞,那么艺术则当之无愧的注解。
设计本就该多花点心思,为避免出现生硬环境,作为聚会的公共区域,舒适、敞亮便成了家宴厅设计考虑的重中之重。
整体为暗色系,线条简洁,奠定了中式朴素的质感,镂空的槅门,传统的水墨,赋予空间生动轻灵的魅力。
宴会厅追求在宁静中吸收能量,简明的线条,朴素色调,装点整个空间,传递了新中式花艺的美学内涵,古典之美兼具现代之明丽。
枝叶果实触及之处,满是长长的遐想与回味,各种原材纹路在中和著空间内冷静的气氛,仿佛器物与器物之间的春华秋实。
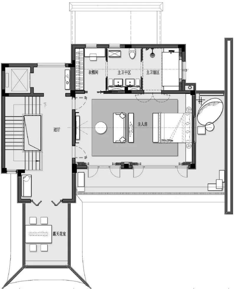
抛弃都市生活的浮华,是回归寻求自我的沉静和情感的归属,主卧的设计充分表达了都市人关乎现代时尚和东方精神追求的思考,在设计中着力于打造安宁与舒适的家居体验。
整面落地窗,使空间视野得到延伸,赋予了业主高雅而舒适的生活状态,劳累一天后,可以在这里尽情放松,享受完全属于自己的完美时刻。
设计摒弃多余装饰,强化空间艺术,于是,摆脱束缚,超越困境。
通过紧密精巧布局升华空间艺术美感,多处以现代设计手法介入其中,提升了主卧的气质,一旁的床头灯,线条简洁,比例协调,造型流畅。
设计把业主对生活的高追求融入其中,随处可见的细节,都能感受到质感生活带来的舒心与温暖。
卫浴空间色彩与线条利落,洁净石材与镜框,简洁的干湿分离,划明了不同的功能区,整体各自独立又连贯统一。
陈列到规划,色调到材质,宁静与繁华间,亲切而舒适。
一贯的古色古香,纹路深刻的原木地板,与竹影墙纸相映衬,中式山水的情致弥漫其中。
真正的品质生活,并非追求浮夸的虚荣,而是不因周遭环境闹心,是不被繁华干扰,而迷失自我的生活态度。
书房是对纯净的生活态度,于这里,可品茶,可与好友共话,很惬意。
选用一件悬浮的霓裳羽衣,为起居室增添出别致的流光溢彩,打破空间单一的公共属性,是尊重场域的绝佳点缀。
女儿房跳出了风格之外,采用经典的粉色,作为渲染空间的主题色。
怎样的家,才是你心中的样子?是空间,是美观,是色彩,还是功能,泼墨写意的伏笔,令这里自成天地,在不经意中,产生虚实相生的视效,给小主带来无尽的想象。
真正的设计,让人舒适安静,我们对家的向往,或抽象,或具体,但设计不是为了取悦,而是为了居住。
淡化设计生硬的技巧,去追随生活的本质,去创造能够满足业主向往、自由的感性世界,借助建筑去承载业主更多的梦与理想。
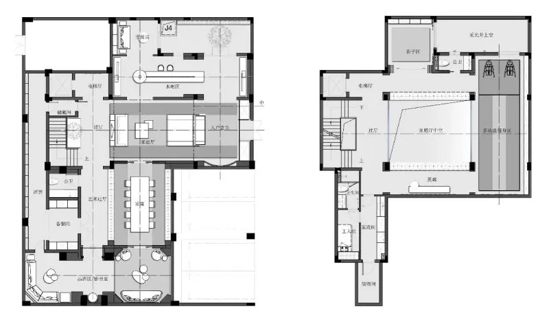
△ 一层 △ 三层、二层
项目名称| 绍兴中铁建花语堂合院
项目类型| 合院样板间
设计时间| 2019年05月
完工时间| 2020年10月

