普普艺术家Andy Warhol曾说:“在未来,每个人都有成名15分钟的机会。”当今盛行的网红文化下,饮食不再只满足口腹之欲,人们更喜欢于特别的环境中,享受空间与视觉带来的美的享受。
而位于深圳南山区海岸城的「客从何处来」便是极具代表性的网红甜品店,水相设计从15分钟理论出发,把饮食过程定义为展演行为。
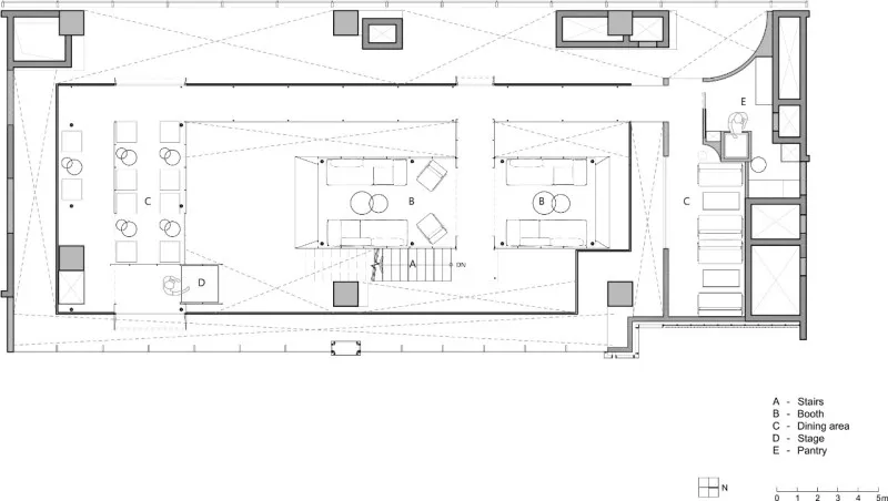
入门接待入座、制作甜品、上菜以致于品尝皆是环环相扣的戏剧章节,店内所有人物皆是舞台的一份子,空间是铺陈食境的实验剧场。
360°沉浸式剧场体验,观看与被看的互动。
在社群媒体的使用习性中,人们欲在现实撷取素材化为虚拟平台上引起朋友的关注,获取真实生活的自信与自豪感,「展演」行为模糊了网路活动的边界,真实和虚拟互为倒影。
用餐仪式化的剧场走位,开幕与谢幕
社群媒体的表象,真实与虚拟
入口廊道袅袅烟雾如梦似幻,与上万条尼龙线聚合成半透明的朦胧屏障,或固定或游离,象征着人际网路的错综复杂,呼应数位时代媒体所呈现的自我与人际面貌:既透明又隐晦,既贴近也疏离。
建立连结的同时也形塑一面墙,矛盾却又相互依存,诉说当代社群关系真实与虚拟版图难以界定的文化情境,一静一动,在任一时间点皆共构独树一帜的画面。
食境创作的表述视角,或静与或动
除了演绎网路时代真实与虚构的关係,设计师也期望这座食境剧场在不同时间轴能传递情绪变化:白昼单纯感受天光下的纯净清丽,尤以入门中心轴线末端的汉白玉石蒋家班佛像,和周遭上演的餐饮仪式形成微妙的相伴平衡,一种不变应万变的淡然,入夜后随着Buddha bar的音乐响起,佛像依旧淡定,其中或静或动,或真实或虚拟,随个人心底酝酿。
在此空间内,老榆木墙的沉、尼龙线屏幕的透,枣红的艳、水泥的雅,框景画面的静与廊道人影婆娑的动,种种对比创造冲突,也成就平衡,使展演行为让整座剧场机制运作不歇,食境秀场,每个人都有机会找到出色的创作视角。
精致甜品上桌时绝美一瞬是真实,生活饮食川流不息的剧也真实,身在剧场的人们正透过自我饮食演绎,将剧场推向虚拟朦胧的世界。

