生活方式不同也可以共处一室吗?
两种截然不同的生活空间
可以保持相对独立,成为一个和谐的「平行世界」
男主是美食博主,女主人
喜欢画画,考虑到夫妇二人对空间的不同需求
独立规划,安置了匹配各自习惯的功能区
对称的垂直布局,让空间在视觉上建立联系
一层采用通透的开放式布局
木色加白墙瓷砖的组合,让空间洁净透亮
家具组合有效切分,阶梯状天花
让人眼前一亮,打破了空间的单调
男主喜欢制作烘培并拍美食照片
就在厨房,因此这张超大的中岛
就是为他而设的,台面选用干净耐磨的材质
白色饰面与中岛形成呼应,平时可以
关上推拉门,就成了一面适合拍照的背景墙
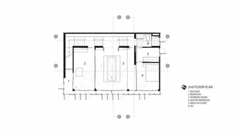
二层设有两间卧室、阳台
楼梯过道被设计成三段相连的狭长空间
头顶开设天窗,加上温润的木饰面
整体给人明亮自然的舒适感受
装上玻璃,给人一种楼板是悬空的错觉
其实是二层的天窗,位置正好与厨房垂直
设计师用大块玻璃板作为
画画的工作台,空间在视觉上似乎连成了一体
二人可以安静工作,同时也能感受到彼此
简洁的布局实用而温馨,双层木质
推拉门的设计让空间显得更为连贯
外立面以木屏风和玻璃幕墙组成
轻盈的几何体富于变化,令人印象深刻
IDIN Architects
Ketsiree Wongwan
143㎡ 两室一厅,起居室这样设计更灵活

