现在一些网红设计
比如隐藏式的踢脚线、隐藏门等等
很多设计师只知道好看,却不知道做法
想要了解构造
画好节点图,丰富的经验不可少
但经验积累需要一个过程
那我们可以直接吸收优秀案例经验

今天
小编给大家收集了一份
《深化CAD节点大样立面剖图施工图》
希望对大家的工作有所帮助
文末查看如何获取

《深化CAD节点大样立面剖图施工图》
【01】综合节点【02】墙面及其相接节点解析
【03】装饰饰面节点【04】门窗、隔断节点
【05】石材大样图【06】卫生间相关节点
【07】踢脚线 柱子【08】定制家具节点图
【09】暗藏消防箱大样图
【10】石材、钢结构、铝板、玻璃幕墙及雨棚
【11】楼梯大样图【12】深化项目参考
格式:DWG 文件大小:1.36G
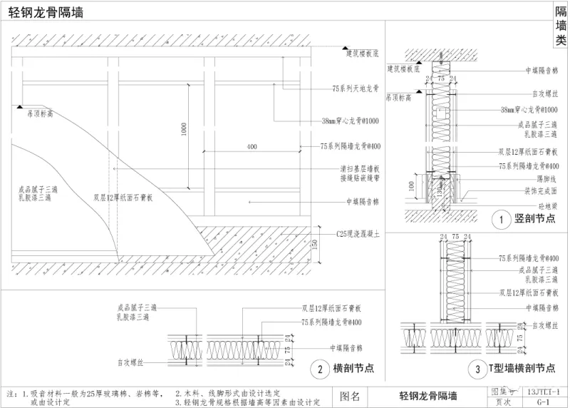
展示一:综合节点





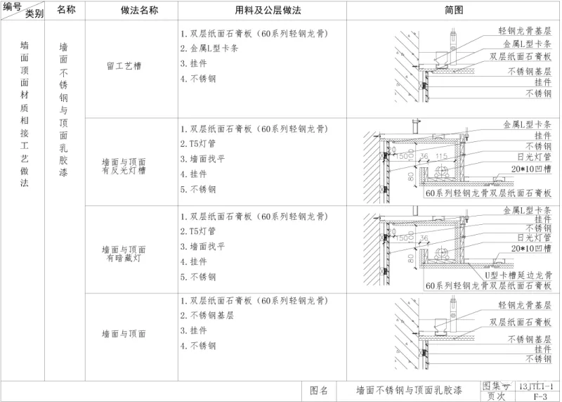
展示二:墙面及其相接节点解析




展示三:装饰饰面节点



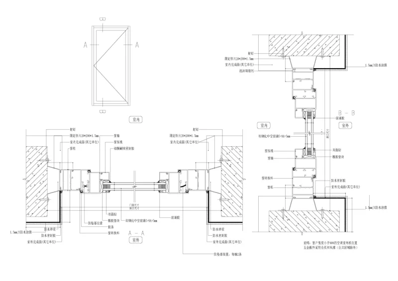
展示四:门窗、隔断节点


展示五:石材大样图

展示六:卫生间相关节点

展示七:踢脚线 柱子


展示八:定制家具节点图

展示九:暗藏消防箱大样

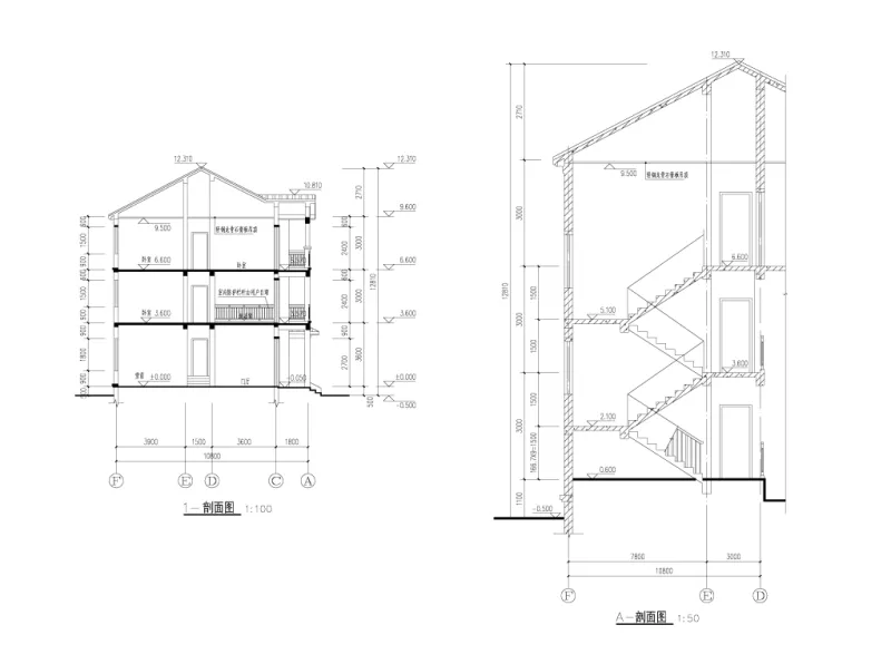
展示十一:楼梯大样图

展示十二:深化项目参考







谢谢分享