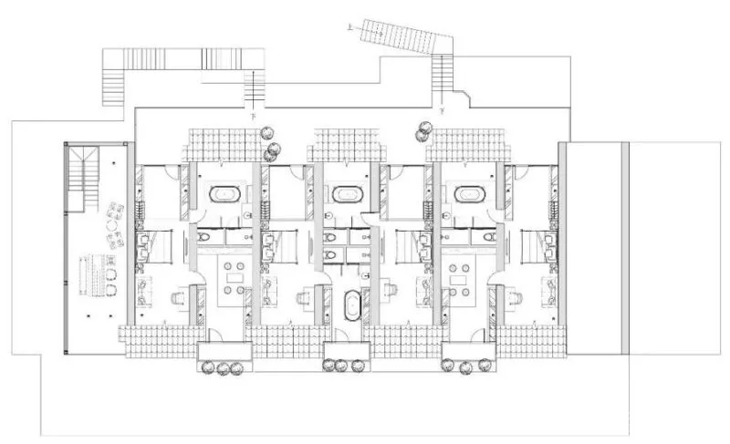
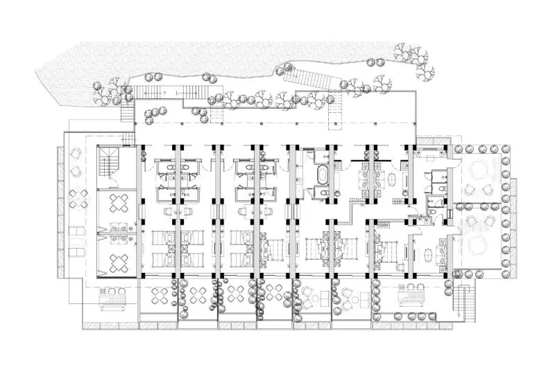
杉语民宿位于南川区山王坪镇境,是一个建筑面积近1402.4平方米的改造项目,由海力设计团队从建筑到室内软装一体化设计。项目场地的前身是一间极具年代的旧楼,场地原始的村落风貌和建筑形式,保留得相对完整。
项目周围拥有丰富的杉木资源,夏季平均19.6度的凉爽气候,这种稀缺自然状态,赋予场地自然栖居的氛围,为当代人释放都市所带来的压力,提供了安放心灵的栖息空间。
海力设计团队,立足于场地保留的年代建筑,希望改造的介入,能够在自然中,创造传统与现代并存的全新居住空间体验。
设计将传统建筑与现代艺术进行内化赋形,使其变为可观、可感的形体与符号,渗透到空间中去。呈现出一个和谐而自然,寻觅归属感的心灵原乡。
项目定位是城市近郊的山村民宿,而项目场地这座极具年代性的建筑,需要为久居城市的客户,提供一种完全不同的生活型态和空间体验,在接近自然的同时,又需要满足当代生活的功能诉求。
项目内涵,是对乡村文化的保留与尊重,然后植入新度假模式之中,塑造一种独属于乡村的自然生活状态。
室内空间的设计灵感,源自于“侘寂(wabi-sabi)”以接受短暂和不完美为核心的日式美学艺术。海力设计团队希望保留建筑古旧时代感的同时,去融入现代艺术的技艺,打造一种“虽由人造,却宛若天成。”的人与自然、建筑与室内、融为一体的美学空间。使得建筑与室内空间,更有向传统回归的价值取向,更让人在自然中,想起小时候故乡的情怀。
于是,海力设计团队在对原有建筑进行改造更新时,充分尊重了乡村文化与自然环境赋予的场地底蕴。设计完整的保留了建筑原有院落的空间及建筑的外观肌理。
项目周围的杉木林,被悉心保留,围树而建的场景唤醒了人们对自然、对故土的归属感。这处院落亦以之为名唤作“杉语”。
设计呼应传统木质结构建筑顶层,在空间中利用软装陈设的旋变、叠加、交错的体块带来视觉上的多维立体感,丰富着空间的表达,彰显自然主题的柔和性与舒适度。
卧室空间极具乡野韵味的床具旁,搭配着空间内棉麻质感陈设,当自然的风透过景观台吹拂而过时,空间更为空灵纯粹,涌动着欣然舒惬的情感。
设计将空间中的硬软装上无过多杂色与线条组合,整体呈现出和谐的温润色系,以简雅的视像打造一处放松心灵的安逸空间。
挑高的空间架构中,通过天花与墙面连续的设计,塑造出空间整体风格的延伸性,各个区域直接的转换自然而流畅,从而打破了常规民宿空间的形制特点与界分感,于简单中加以微妙的转折,呈现出空间简净大方的当代气息。
空间色彩的搭配沉稳,在材质上亦呈现出简约而质感丰富的调性。设计以温和的大地色系统筹,软包皮质沙发上融入雅棕色与糅合于其中,兼有阳光的调和,空间气质纯粹而平和。
空间内的线条元素呼应着空间脉络,家具的形制延续硬装体块的线性语言,营造出游走在自然之间的美感。充满禅意趣致摆件装点在其中,自然的艺术让空间活力倍增。
露台区域以大面积留白的体块构造,辅之以棕竹编制天花,令空间视效在简单中有层序感。薄暮下的林野般温暖、闲适与恬静,同时亦极具昂昂生机与灵动美。
空间的天空颇有艺术感,将整块玻璃悬挂在天花之上,让自然光线透过其上营构的形影与色彩,像湖镜上倒映的月夜般清凉。与外景融为一体,由渐变而温暖的画面,丰盈空间情调。
纯净的形式,生长的线条,原木色的碰撞,空间有着静宁而富有节奏张力的气质。通过建筑室内的设计,进而展演出空间丰富的层次感、转折自然的秩序性,围合出空间端雅大气之感。

