每一段故事诞生的地方,
我们与其邂逅,被其触动,
心生涟漪,新的故事便随之诞生。
4月19日是我们发这个案子效果图的日子,在经历过7个月,210多个日夜之后,我所期待的实景照片终于出现在了我的屏幕里。
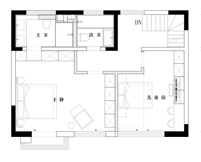
这个案子为两层叠拼户型,附带一小庭院。庭院简简单单,一组桌椅即是全部,平时可作为业主休闲场所,同时它的存在也衬托了主体建筑。叠拼户型自带的优点就是可以对屋内很好的进行了动静分区,我们将客厅、餐厅、厨房等活动频繁的区域和卧室、卫生间等活动不频繁的区域进行分割,相互不影响,这样可以很好的保持静区的私密性。
公共区域使用了黑白灰的经典配色,整体显得单纯而简练,节奏明确。电视背景墙和吊顶使用了水泥漆,这种涂料最美的地方就是它能够形成天然的不规则纹理显得非常漂亮。家具的色彩则是整个空间的点睛之笔,鲜明的色彩彰显了空间的活力,也能吸引视线聚焦。
厨房使用了中西厨分离的设计,我们合理的利用了楼梯下方的空间,西厨和洗衣、烘干机都在这里汇集。餐桌嵌入墙壁固定,和楼梯一样使用白色大理石材质装饰,通过对材质和色彩的运用让元素在空间中彼此碰撞和呼应。
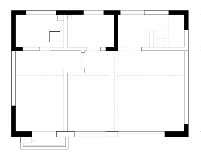
我们重新规划了二楼的空间,将原有的墙体进行改动来增加主卧使用面积。室内分别做了两排储物柜来满足业主的储物需求,靠近门一侧的柜子使用了玻璃柜门,来缓解“顶天立地”式衣柜带来的压迫感。另一侧衣柜使用黑色隐形门,将卫生间入口“藏”了起来,增强了空间整体性。
儿童房面积不算大,好在有一个阁楼的存在。我们利用阁楼本身的空间比较低矮,且有不规则的特点,打造了一个个性化的房间。下层空间是孩子学习休息的空间,睡觉在上面,下面的区域可以作为孩子的娱乐休闲区域。就像一个独立的小木屋一样。


现在这个浮躁的世界,能细心整理一些东西发上来的越来越少了。要么就是敷衍的图片,要么就是枯燥的文字。之后就是AI生成的预制菜类的打包便捷快餐了。感谢楼主的分享,让我能在大智能无人化来临之前,看到同类发出的项目。有幸与您互动,缘分。