© Xia Xuwei
(三)夏学伟
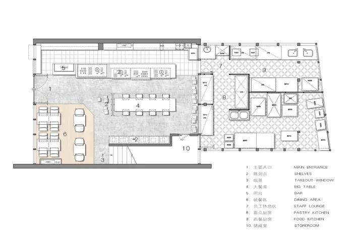
架构师提供的文本描述。项目场地位于武汉汉街武昌区近万达广场,占地面积205平方米,建筑分为上下两层空间,业主希望给客户满意的服务和就餐环境。
Text description provided by the architects. Project site is located in wuchang district of wuhan han street near wanda square, covers an area of 205 square meters, the building is divided into upper and lower two layers of space, the owner want to give customer satisfactory service and dining environment.
案例以风格为基础的阁楼,广泛使用木与钢来营造空间,整体色调以灰白水泥墙为背景,引发漆木纹理。
Case based on the style LOFT, extensive use of wood and steel to construct the space, the overall tone of gray and white cement wall as a background to set off paint wood texture.
© Xia Xuwei
(三)夏学伟
餐厅一方面采用简单的工业风金属材料,通过地面延伸到顶部的松木框架,另一方面,明亮的白色方砖和玻璃用于主厨工作台和销售窗口,两者在材料上形成了鲜明的对比。
Restaurant on the one hand, using the simple industrial wind metal materials, and by ground extends to the top surface pine frame, on the other hand, bright white square brick and glass used in the chef workbench and sales window, the two formed a contrast on the material.
Axonometric
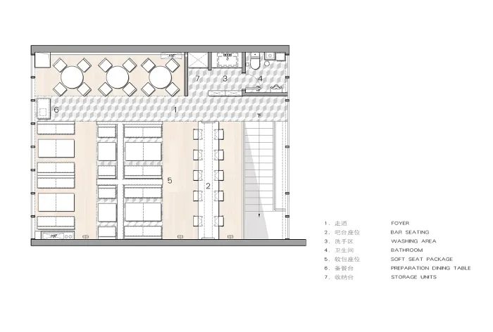
二楼是用餐区,设计师们使用深蓝色的座位和窗帘来营造一个安静的内部空间,这样顾客就可以在这里轻松享用美味的食物。
The second floor is the dining area, designers use dark blue seats and curtains to bring a little bit quiet interior space, so that customers can enjoy a delicious meal at ease here.
© Xia Xuwei
(三)夏学伟
纵横交错的木质和黑色钢在空间的封闭和分割中起到了一定的作用。
Criss-crossing wooden and black steel played a certain role in blocking and segmentation of space in space.
© Xia Xuwei
(三)夏学伟
空间配件广泛使用工业元素和烘焙软装饰,用黑色钢和木结构搭,不仅勾勒出每个空间的形状,而且还创造出独特的餐厅流线型。
Space accessories extensive use of industrial elements and baking soft decoration, black steel and wood structure with the lap not only sketched out the shape of each space, but also create a unique flow of the restaurant line.
© Xia Xuwei
(三)夏学伟
Architects ZONES DESIGN
Location Wu Han Da Dao, Wuhan Shi, Hubei Sheng, China
Category Restaurant
Area 205.0 m2
Project Year 2016
Photographs Xia Xuwei

