项目名称:品粹1788
设计公司:深圳有山设计顾问有限公司
设计团队:蔡鸣、麦志浩、曾帅
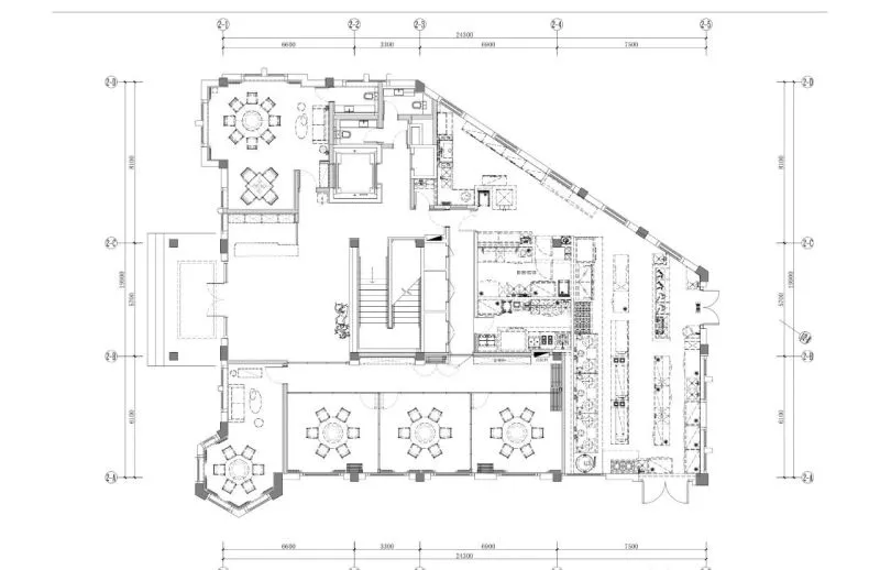
项目面积:888平方米
设计时间:2020年4月
完工时间:2020年11月
主要材料:金砖、木纹铝板、金属网、热熔玻璃砖、花纹铜板、定制玻璃
美国建筑大师沙里宁说:“城市是一本打开的书,从中可以看到它的抱负。”上海作为一座足够“骄傲”的城市,最具魅力的莫过于那份中西合璧的精致。对文化充分尊重,亦不缺气度与底蕴,是属于这个城市的摩登腔调。品粹1788坐落于寸土寸金的上海陆家嘴金控广场1788号,定位高端徽菜融合餐厅。中西菜肴在想象力雕琢下推陈出新,在餐桌上得以呈现。
徽州有“千金门楼四两屋”的说法,足见门楼对身份与地位的重要象征意义,徽派门楼雕艺精湛,风格独特,堪称砖雕之代表。
品粹1788前厅,晶莹剔透的徽派门罩造型装嵌于黑色蘑菇石墙上——通过树脂玻璃钢倒膜工艺制作,跳脱传统徽派风格内饰惯用元素,打破前厅低调庄重的深沉基调。水晶般剔透的门罩材质肌理在灯光下应运变幻,捕捉观者进入前厅的第一视觉落点,成为空间的精神象征。
大厅木雕撑拱为徽州古建中特色的构建之一
图案多为祥云瑞兽,中国人常将狮子作为镇宅驱邪之瑞兽其造型往往既有威严、庄重的王者之气概,又有敦厚、善良的活泼之状。狮子身上飘逸的绶带,不仅增添了作品的动感,同时寓意着“好事不断、美意延年”。表达了人们祈求吉祥如意,得利获福的美好愿望。有山设计撷取徽派传统艺术精髓——砖雕、木雕、石雕手工艺元素,将其置入现代设计中,古韵十足又耐人寻味。空间中所陈列之徽雕精品皆搜集于安徽黟县,由设计师与品牌创始人数次亲历黟县、歙县等徽州古村,遍访知名古玩市场与民间私人藏家,搜罗而得代表徽雕工艺最高水准之藏品。品粹1788是高端徽菜餐厅,亦是艺术品珍藏馆。
徽雕层次鲜明,极尽雕饰,大繁之风,精致无比。沿着匠人的指尖和雕刀,徽州的人文旧事与雅致风韵在魔都金融中心的幽静洋楼中缓缓道来,连接着现代与过去的诗意,徽商「贾而好儒」的文化风骨展露无遗。
如何将徽雕珍品融于现代艺术设计空间中,巧妙并置,颇为考验设计功力。设计师择取御窑金砖、夹丝玻璃、葡萄牙大理石、韩国木纹铝板等现代材质进行诸多探索与尝试,平衡略显深沉的空间基调,营造相得益彰的视觉呈现。
清早期“周茂叔爱莲”瓷板画
二层走廊 清早期“周茂叔爱莲”瓷板画及包房内“长亭送别”砖雕,描绘着文人雅士之间的交流,对徽州民俗艺术产生深远影响。
品粹1788一层设三个包厢,选取端庄素雅的灰色系作为主色调,以保证整体空间低调奢华品质。通过移动轨道的设计,达到分合自如、灵活运用的效果,提高空间的实用价值。折叠后形成一个整体宽敞的宴会厅,满足高端商务宴请等大型活动的需求,闭合则各自独立,转化为私密用餐场所。
马赛克玻璃墙与徽派马头墙建筑特色喷绘相辅相承,传统元素结合现代材料,柔和、舒适的光线以及光影情趣予以人水墨诗意的场景想象。
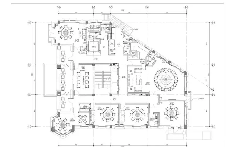
二层充分采用别墅的自然光与灯光的配合,打造更雅致私密的会餐环境。商务会客厅则被设计成半开放式格局,拓宽整体空间感,延展包间视觉宽度。露台成为包厢中容纳洽谈、休闲、娱乐等功能的场所。细节处处体现传统与现代的和谐共生。
硬朗的家具线条与丰富的立体感,克制而又精细地勾勒出当代奢尚优雅,在陈设徽雕主题装饰之余,现代艺术活力亦得以体现——出自设计大师扎哈·哈迪德之手的水晶吊灯、意大利Artemide与梅赛德斯合作限量灯具以及马斯登光立方系列吊灯凸显空间对艺术的探索延伸,令“食”不止步于味蕾。
德国顶级奢华卫浴Kaskade,于细节处勾勒品位,方寸之间的艺术底蕴和美学追求。百年徽雕手艺与现代先锋家居作品的碰撞,逸趣横生。艺术家跨界合作的立体砖——见南花“ARTIST系列”水泥花砖设计,以僧袍的色彩——橘红为主色应用,并凸显了佛像的流云意象。
在品粹1788,目之所及,心之所觉,一场新旧文明的碰撞、一次前卫与古典的交融在此上演,以艺术延展味觉深处的徽州情怀,用手艺守住食材的精粹,共赴一席摩登风尚的人间至味。
深圳市有山设计顾问有限公司,是一家集品牌规划定位、平面视觉表现、室内空间设计、服务于一体的策略化商业空间全案解决设计公司。
涵盖特色酒店、民宿、会所、餐饮及办公等商业空间,提供从平面视觉到空间展示的一体化设计服务。有山设计专注于挖掘每个企业品牌的独特性,溯源品牌文化根基,提炼文化元素注入平面、空间设计之中,打造出差异化的商业空间。有山设计成立至今,服务于全国各类企业及机构,并赢得国内外诸多知名设计奖项。

