印度首家应对疫情的餐厅设计,双层座位区 © Niveditaa Gupta
昨日,国内全员核酸检测的通告再次将疫情提上热搜,国内疫情在北方再次爆发,这不得不再一次警醒我们:疫情常态化,哪怕这一次疫情的彻底结束,人与人之间的信任感却难以重拾,我们必须以新的生活态度去面对。
对于设计师而言,设计意识也必须从“拉近距离”到“适当距离”转变过来。
入口区域© Niveditaa Gupta
在全球新冠疫情下,公共空间并不安全,并且受到疫情打击,尤其是餐饮行业,无论是当初的病毒起源于“野味说”,还是在这样一个聚集性非常强的空间用餐,餐饮行业毫无疑问遭受重创。
即使一度被国人认为“魔幻国度”的邻国——印度,在这样一场浩荡的疫情中,设计师们也做出了积极的回应,第一家应对新冠的餐厅与酒吧向人们展示了最新的建筑理念和不同类型的安全座椅,为我们面对新生活方式提供了启发。
人与人保持安全距离© Niveditaa Gupta
基于社交距离的重要性,各种日常生活空间都将面临不可避免的变化。设计团队考虑到的应对就目前前所未有的全球疫情,在新德里Social酒店为他们国人展现了印度第一家应对新冠的餐厅和酒吧。餐厅在疫情时代所受的重创,为让它们重新变得安全,必须为行业重建信任。
设计团队基于人们同朋友和家人一起进入餐厅和酒吧的习惯,在设计中融合了两种连续的理念,一是设计灵感来源于越南嘈杂的街道和小巷商店的形式,二是新德里本土的最大住宅区网格布局,不同功能分区间隔一定社交距离。
越南风格的迷你商店© Niveditaa Gupta
双层用餐形式、间隔1.8米的桌子和凹槽玻璃等元素共同构成了新德里的这家半越南风格半现代风格的餐饮空间。它回应了当下新常态,重新划定了公共空间的界限。
抬高的座位区 © Niveditaa Gupta
餐厅跟随新常态,设置有特色的座位区,抬高的座位区和令人印象深刻的双层入座体验共同创造出根植于本土的新城市美学,为客人提供安全舒适的就餐环境。
酒吧区 © Niveditaa Gupta
从双层座位区望向酒吧区© Niveditaa Gupta
木饰面钢结构 © Niveditaa Gupt
舞区© Niveditaa Gupta
设计源于当地的Dwarka住宅开发区,在餐厅空间中创造出类似Dwarka网格布局的节点。座位区依次相距约1.8米,为不同人群创造独立的就餐区。
公共座位区© Niveditaa Gupta
家具细部© Niveditaa Gupta
不同区域使用竹网卷帘分隔 © Niveditaa Gupta
布局从作为品牌效应的小型
越南药店、钟表和帽子商店为灵感,有组织地形成了私密而间隔的区域。走进空间,这里不仅符合后疫情时代的新常态,而且具有场景交互的当地与越南风情。
隔断座位区 © Niveditaa Gupta
主餐区采用浮式钢架,表面贴木,形成了不同座位区的网架隔断,充分地体现出社交距离的概念,同时,独特的网架吸引抓住顾客眼球,还保证了安全距离和私密性。
在中间区域,共享桌搭配可折叠屏风使用,使两个区域间相隔。DJ 区域位于上层,可以俯视整个餐厅,人们也可以享受各个区域和楼层。
四周围起卷帘 © Niveditaa Gupta
隔断使用可以滑动折叠的凹槽玻璃,保持了空间的交互性,隔断还使用当地的竹网卷帘,使其从顶部划分不同区域。用天然藤条精心制作的家具和灯具,与空间的其他设计元素相一致,和谐地融于整体。
吸烟室 © Niveditaa Gupta
家具细部© Niveditaa Gupta
餐厅采用多层次的设计手法,利用了不同元素和座位分区。天然材料、软木窗帘、水泥米砖和藤条的使用都体现了餐厅旨在追求真实自然而非现代的那种美感。打造的是本土与异域交融的乡村气息。
Social餐厅在应对新生活上,体现在家具形式、形式与功能、开放与封闭、疫情与新常态的细微差别上,最终形成保持适当社交距离的餐饮空间。
轴测动图 © Renesa Architecture Design Interiors Studio
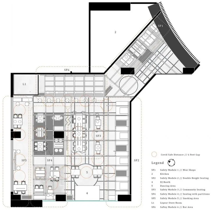
平面图 © Renesa Architecture Design Interiors Studio
放眼全球,除了在餐厅外设置露天就餐区域以外,还需要做更多改变,并设计出一系列使社会能够保持社交距离的方法。
重新开放室内活动的风险显而易见,因此,我们需要去改善室外空间从而使其能够承担更多的活动,例如露天商店、室外演出和各种公共服务。
餐厅概览© Niveditaa Gupta
Design Team: Renesa Architecture Design Interiors , NEW DELHI,INDIA. Vandana Arora – Interior Designer| Decor Head Virender Singh- Studio Technical Head. Contractor: Mr. Jitender Kumar. Lighting: White Lighting Solutions , IndiHaus Lighting. Clients: Mr.Riyaaz Imlani , Impssario Hospitality.

