设计缘起
阳春三月,桃花盛霞,风景如画,又称桃花故里。十年积淀,蓉城假日酒店集团选址龙泉驿,聚力打造更符合市场期待的品牌形象,为奔波劳顿的你,呈上充满惊喜和感动的旅居体验——BERNCY HOTEL(柏雲熙精品酒店)!
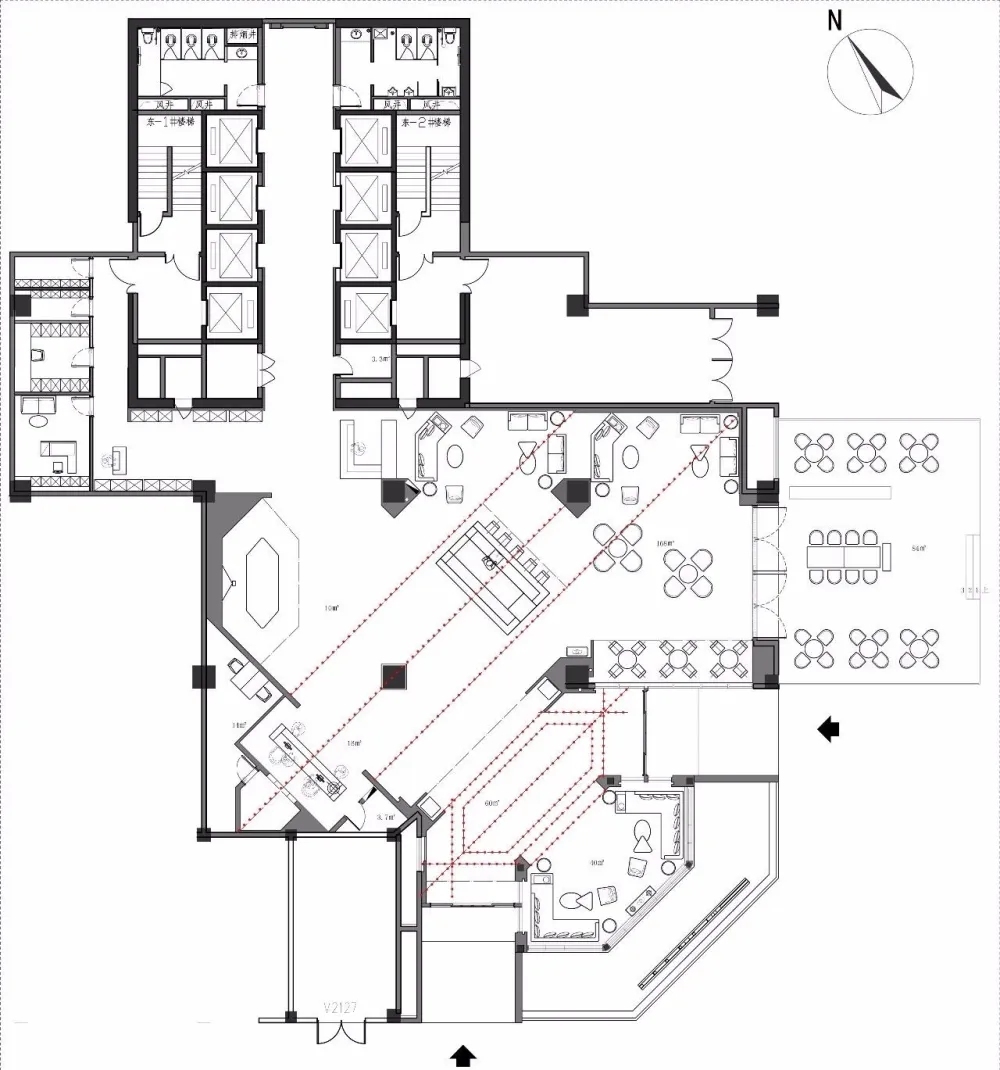
酒店、物业以及写字楼租户三方共用大堂,无独立动线。入口正对大体量结构柱,采光不足,基调冰冷阴沉。
设计紧扣柏云熙品牌核心,试图将刻板的办公空间重塑为轻松且充满诗意的共享社交空间。
扩建的阳光吧是大堂的延展,光照充足,布局宽松灵活,满足宾客社交或独处的多样需求。
综合动线路径决定了空间45度斜向格局,因势利导,将入口处立柱由原本的交通障碍转为客群分流工具,酒店客人和办公人群实现了自然分流。
大堂设计主张“工作中平衡生活,差旅中体验乐趣”的新商务观,以“办公室+花园+咖啡厅”为场景主题,营造复合业态,提升酒店活力和营收力。倡导共享开放的设计理念,无论酒店宾客还是办公人员,都能获得意外的惊喜与感动。
客房通道“散漫”的光环境,将空间变得舒展,“柏光云影”的原创门牌点缀且延续了品牌记忆。
客房设计以龙泉人文要素切入,古称“灵池”的龙泉驿有山、有水、有桃花,汇集了诗意栖居的浪漫要素,分别以“灵池水境”、“桃源秘境”、“柏云雅静”、“东篱小境”为题,展开创作。
大堂吧
设计还原度对比
效果图(上)/实景图(下)
项目名称:雲 起——Berncy Hotel柏雲熙精品酒店
项目业主:丽美云熙酒店管理有限公司
项目地址:成都市龙泉驿成龙大道 东能中心
设计机构:BDD布道设计
服务内容:硬装设计/软装设计/照明设计/机电设计
设计总监:刘万彬
艺术总监:谢晓影(博士)
硬装设计:刘聪/何关平/高敏/蒋吉
软装设计:阿七/卢琴
项目监理:王瑜
品牌设计:方糖设计
家具定制:顶品家私
照明顾问:汤石照明
项目摄影:赵彬(独尊建筑摄影)
施工单位:成都正扬装饰工程有限公司
设计面积:10200 ㎡
设计周期:60天
施工时间:8个月
联系人:刘老师
联系电话:18980960915

