与以往案例不同,本案业主便是打算舒心享受美好生活的退休人士。抛开过往忙碌的工作状态,男女主人选择回归生活本真,而改善居住环境便成了他们的首选。
退休生活的居住环境应该是怎样的?设计师第一时间冒出的关键词是“宜居”,为满足业主大部分时间居家活动的生活轨迹,设计师以“宜居便捷”为圆心,“舒适复古”为半径来“画圆”设计,在此基础上,又延伸了“可活动范围广”“采光足”“互动性强”等充分必要条件。
设计理念:
要满足以上条件,原户型的结构几乎是无法实现,原户型存在厨餐厅狭小,卫生间采光不足,空间布局混乱等现象,在与业主一次次的沟通中,设计师最终进行了空间的全面大改。
重新规划每个独立空间,将原先的厚重部分打通,尽可能的增加可活动区域,空间采光最好的C位(原主卧空间)规划为男女主人最常待的客餐厅,原厨餐厅改成了入户玄关和小储物间,主卧则放置在了原先的次卧位置,原卫生间处调整为女主人一直想要的互动西式岛台结合传统中厨的双文化元素设计。
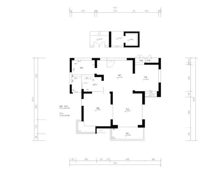
原始平面图
顶视透视 动线分析图
将原厨餐厅重新调整布局后,这里是充满仪式感的入户玄关,两边设有强收纳功能的柜体。
概念模型推敲
SU设计效果图
客餐厅占据着整个空间的C位,室内外自然光紧密连接。区别于传统顶面刷白的做法,顶面和墙面统一奶白色,搭配法式线条。融入复古黄铜元素,这是一个充满质感的温柔空间。
嵌入式踢脚线与隐形门的极简设计,墙,门,踢脚线的建筑元素融为一体,相互兼容,空间规整精致,也有了延伸的感觉。
奶白色的主色调,赋予了空间温暖柔和的气息,蓝绿色的点缀,为空间添光加彩,更显恬静自然。
打破原先狭小的厨卫格局,创造出三分离的卫生间和开放式厨房,墙面地面台面选择的是年轻活力的水磨石。
厨餐厅的设计强调空间的连续性,在满足日常整洁的需求外,加强了互动感。
如果说要用一种颜色来代表时间的沉淀,那么蓝绿色恰到好处。
蓝绿色背景墙是餐厅空间的亮点之一,其所带来的雅致,与复古家居的融入,整个空间是和睦融洽的氛围。
在暖色系基调中融入的现代元素,是业主对人文黄金年代的追忆以及当代社会的认可,告别忙碌的工作场所,在舒适静雅的生活环境下,享受才是眼下最重要的事情。
项目情况|
项目地址丨Address:上海静安
面积丨Area:96㎡
设计单位丨Company:上海示觉室内设计事务所
服务方式丨Service:硬装+软装全案设计服务,主材+软装代购及落地服务
设计总监丨Design Director:尹琳娟
设计团队丨Team:沈佳滢、尹琳娟
你理想中的退休生活是怎样的?周游列国,尝尽天下美食,养花种草,再续闲情逸致?美好的生活,从退休开始。

