有结合的对外方式梳理,且伴有对空间的留白平衡,传达体验值的同时,思考其存在的合理性,再就多维度的分散区位来探讨日常与空间所关联的互动间隙,进而提升私宅对外所阐述的情感共鸣系。
通过空间的多维思考来探索生活的不同层次定义以及私宅更为贴切的功需,也希望透过表面的呈象,我们可以看的更为深入些,不只是来自设计层面的认知,更多的可以体会到生活的真实。
对于私宅所提炼的生活方式传达,更倾向其脱离外饰后的本真面貌呈现,以相对质朴的设计语言来叙述空间所要传达的心绪变化,考量其背后的真实发生。
用重组的方式来衔接彼此相邻的分区,尝试突破框架界限的二次组,结合日常的行为来让空间建立更多元化的关系和释放。
在保证细分功能的前提,优化空间界面,让相邻的区间建立更多的互动关系,来强化日常带给居住者的心绪变化。
以留白的方式来梳理日居常态的空间关系,记录着所发生的帧帧场景及其遗留的面貌和痕迹。
在明确功能区间分布的框架内,于尝试性的去释放分区本身,让相邻空间彼此更能实现其该有的具象分则。
打开是基于界面封闭后的二次推演,也更能考量不同维度的空间思考,让其自述,还原本体所要兼容的有乃性,也在反向的验证空间的可变性,再结合功需的前提,让其连贯的更为彻底。
试图通过贯彻空间的多维面貌来反映和诉说日常,重拾被定义的情感建立和发现。尝试在空间中去融合和记录被生活过的常态轨迹,把更多反馈后的体验值带到日常的累积过程中。
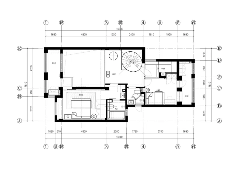
项目地址 | 温州平阳香湖壹号
项目面积 | 220 m²
设计团队 | 境象设计师事务
主创设计 | 姜万静 兰斯
设计参与 | 蔡丽君 潘琪靖
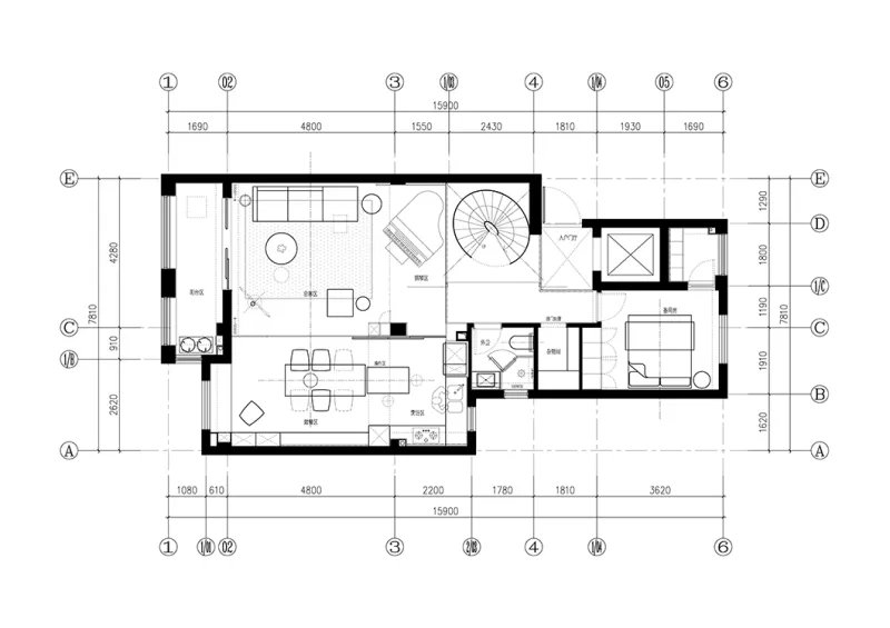
燕侣莺俦的业主,一开始便对这张人生的第一张画纸,充满了动笔的欲望,而原始建筑上的空阔结构,给设计师和年轻的业主都预留了更多的创造空间。
没有过多划分空间的承重柱,使得空间在入户处便四通、灵动。
摒弃了电视机之后,切实的感受真火壁炉的温度,闲看三两书,犹如那雕塑——“我看到了幸福”。
那些对生活充满热情的人,内心便是诗。所以他们总能在小细节中感受到生命的美好。那些对生命的热忱,都换回了无数的岁月静好。
餐桌旁简单的置物区为午后那杯香浓醇厚的咖啡,提供一隅操作的空间。随手随心的享受自由。
热烈的红在小空间内绽放着他的异彩,菱形黑白大理石的拼接奇妙的注入了复古摩登的元素,无章、无法,是属于业主独特的性格。
热情自由的灵魂,在夜晚,也渴望栖息在宁静的港湾。卧室空间更多的在素雅的色彩基调下,去寻找肌理的质感。
简洁干净的主卫由雅士白大理石整体铺设,与卧室相得益彰,美学与经典的融合。
项目名称 | 趣味人生的映射
项目地址 | 浙江.温州
设计团队 | 境象设计师事务所
主创设计 | 姜万静.兰斯
执行设计 | 蔡丽君.潘琪靖
施工单位 | 千盛装饰
成立于2016年的境象设计师事务所,涉足室内建筑及商业空间等领域类型,致力于探索事物于不同角度的发散认知,以相对述平化的方式来阐述其内在诸多的复杂可能性,借此来挖掘更多维度的设计思考和探讨。
内境外象–探索于内外之间,通过建筑的思维去梳理空间与间隔之间的关系,在多空间场景的切换中,不断的探索和实践.强化变量的认知,对外试图呈现我们自己独到的美学视角,赋予空间多重意义上的诉求,在满足物质条件的同时,力求对精神层次的满足,理性伴随感性的继续,打破传统的生活方式和根深蒂固的思维

