“天地有大美而不言,四时有明法而不议,万物有成理而不说”——《庄子·知北游》
自然之美,美在气象万千;东方文化之美,美在洗心养志。
室内陈设之美,美在凝练一方水土,彰显人文气质,对话时代精神。
 
 
01/
跋• 现代东方
德方圆通过对别墅客户的心理洞悉,深度挖掘国际现代风格与东方气质之间的逻辑关系,简取“现代东方”的叙事笔法,抒写不恋浮华、追影自然的生活美居。
 
 
02/
礼• 首层
德方圆将整个别墅软装设计,落笔在人与自然和谐交织的“意”上;在“城市钢铁几何”和“自然肌理”相结合中,刚直大气的线条于菱形中穿梭排布,碰撞出人文与自然交糅的空间。
 
 
客厅的高级灰色调与硬装框架的肌理相映衬,灰蓝跳色让清峻克制的现代风扑面而来。
 
 
 
 
餐厅在明快精致中透着雅趣,点点萤火的光立方吊灯,再次用抽象几何形体展开创想,光影回荡,线条交错,渲染生活的诗意。
 
 
 
 
 
 
老人房借由山水书画中简明清雅的线条,勾勒出儒雅的东方韵,同居住者的气质无间契合。
 
 
床头淡然山水的光与景,像会呼吸一样,飘逸着风雅含蓄的意境。
 
 
 
 
 
 
03/
容融• 二层
二层茶室定位于三代同堂,陪伴成长的空间,除了在风格上凭添一分禅风雅调,又把表达孩子活泼随性的瓦楞纸卷曲单椅和长辈使用的皮质茶椅灵巧混搭,乐活休闲贯穿其中。
 
 
 
 
一方爷孙对弈的围棋,两盏观战父母的飘香清茶,艺术品与日常物件让空间有了日常的妥帖,空间也因此有了更多的故事。
 
 
茶室旁侧休闲厅以生命朝朝向上的哲学,打造成孩子们共享阅读和发挥个人兴趣的房间。在这个活力和艺术的家里面,姐姐喜欢水墨画,弟弟是架子鼓迷,他们几乎每个周末都在小休闲厅一起创作玩耍。
 
 
 
 
休闲厅配饰童趣而又圆融,与同一个开间内的茶室构成功能差异,视觉上又彼此平衡。房间里无处不在的艺术品,把自然的枝蔓、文化的蕴藏、生活的意趣相链接。
 
 
男孩房的设计以“摇滚小鼓手”的性格主线贯穿整体,不仅体现了孩童大胆探索,充满活力的特质,也隐喻了释放童年率真之美的愿望。
 
 
 
 
 
 
 
 
女孩房的粉红色调为整套空间注入了温雅妍丽的气息。
 
 
 
 
一只黑白小喵是女孩的陪伴好友,女孩很多水墨创作也是因对这个小生灵的喜爱而诞生。
 
 
空间是用来生活的,也是用来想象的。女孩房在器物陈设的叙事里描绘着艺术的梦想,形成与小女孩的精神对话,妙趣温馨。
 
 
04/
菁华• 三层
主卧设计经过块面提炼,通过艺术细节和精美的材质,营造出一种低调奢华的感觉。微妙、柔和的曲线贯穿整个房间。
 
 
床头艺术品展现的是入夜仰望夜空,婆娑的树冠追随着蔚蓝且遥远的天空。引发畅想的自然元素贯穿了整个项目的设计美学。
 
 
 
 
半开放式的书房,链接卧室和阳台,也链接起关于生活的片段:睡前的阅读、交谈,一起临窗听雨的静默,一起翻看照片里的旅行故事,回忆陪伴成长的时光。
 
 
 
 
翻起书桌上一帧帧家庭合影,感受时间的律动,人生中有时是惊喜,有时是猝不及防,好像书中的章节,有平仄的韵律,也有静懿的空白。
 
 
 
 
 
 
德方圆把设计化作表达的容器,让空间浸染时光,诠释真诚以待的别墅样板。那些居住者对于理想生活的期盼,在这里有了豁然开朗的答案。
 
 
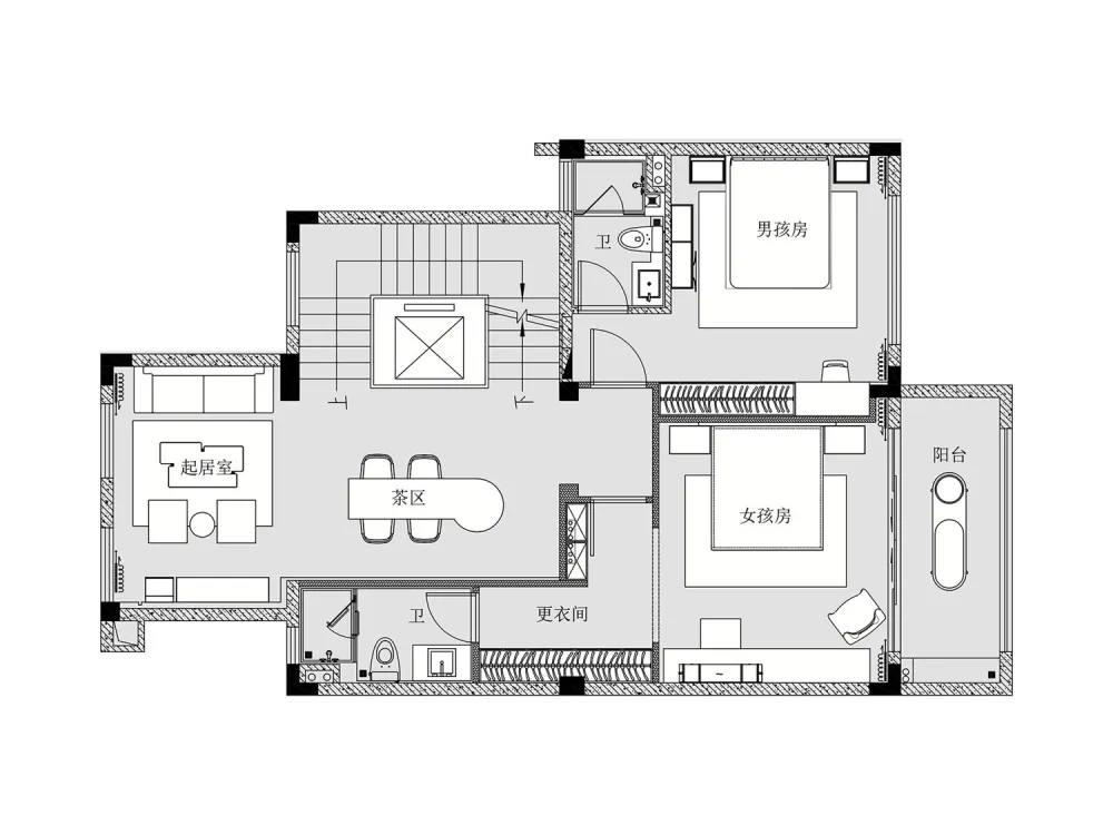
一层平面图
 
 
二层平面图
 
 
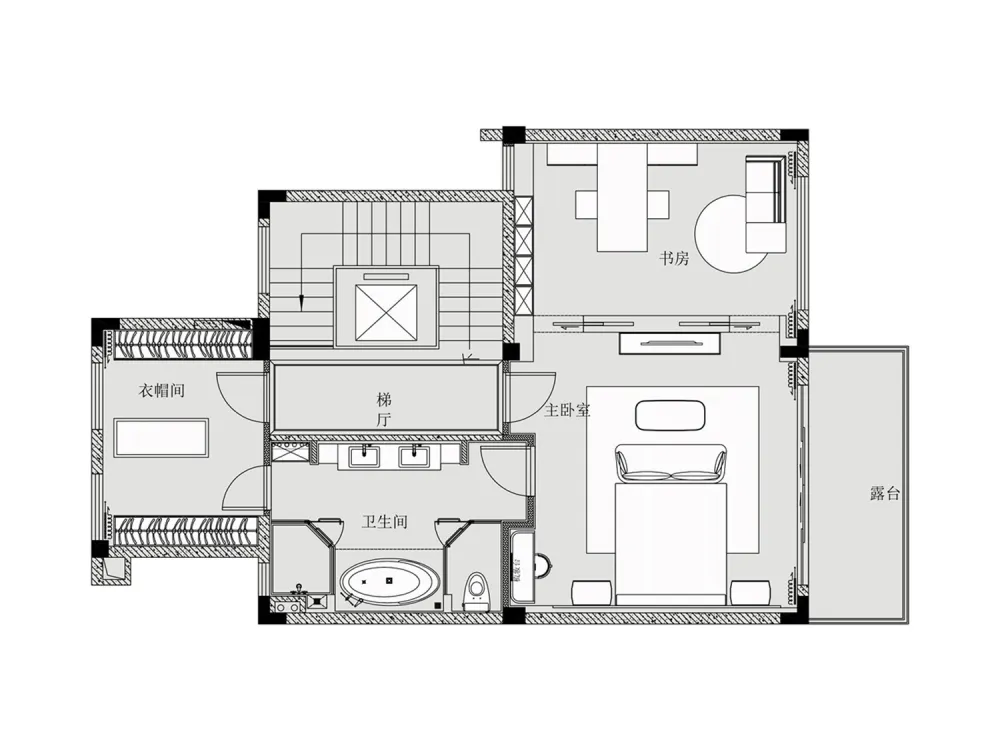
三层平面图
 
 
德方圆文化创意有限公司,是一家专业从事室内设计服务、家居产品、销售和配饰咨询服务为一体的设计公司。公司专注于中高端住宅、楼盘售楼处和样板间、会所、俱乐部等商业/办公空间及酒店的设计、施工、配饰系统服务。致力服务于精英阶层,提供量身定制,专业、时尚、尊享的私属化空间。
自公司成立以来,我们以“定制不同阶层的经典生活”为企业宗旨,用“诚意、感恩”的心服务客户、服务社会,服务员工。经过十余年来的探索和钻研,已成功为众多客户提供满意的室内设计与落地服务,深得客户赞誉。
 
 
 
 
项目名称 | 东华时代广场•御园
项目地址 | 江西 上饶
业主单位 | 东华当代置业
硬装设计 | 大伟室内设计(北京)有限公司
软装设计 | 北京德方圆文化创意有限公司
设计总监 | 崔瑩
设计团队 | 崔瑩 李新 高乾
项目面积 | 300㎡
完工时间 | 2020.11
项目摄影 | 帝成传媒 大白


