编译:专筑网wwj,小R
罗马历史城市中心的改造 / Davide Marchetti Architetto
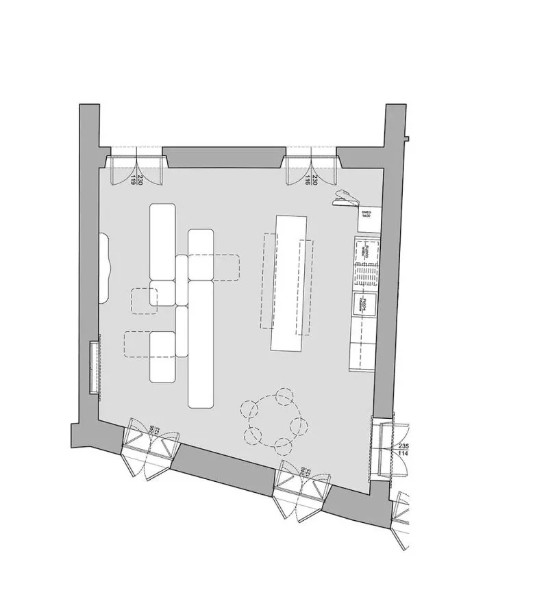
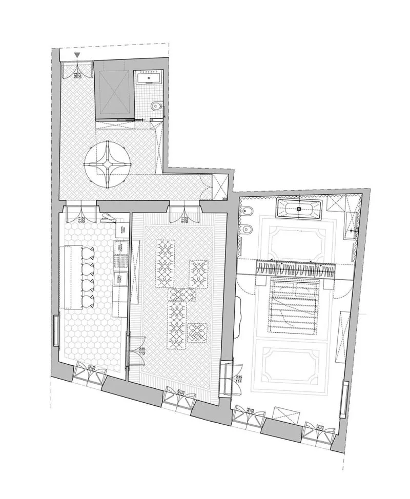
来自建筑事务所的描述。该公寓位于罗马历史中心Rione Regola,距离法尔内塞宫(Palazzo Farnese)和纳沃纳广场(Piazza Navona)只有几步之遥。建筑占地约120平方米,由于近150年来对内墙布局的大量改动,空间不再具有原始的特征。该公寓以前被用作办公室,该项目将重点放在翻新和修复上,现已将其改造为私人住宅。
首先,应客户要求将公寓恢复古老的平面布局,但同时对其进行现代化装饰,因此要重新调整不规则和不平坦的空间,以适应将来的用途。通过研究和观察时代的印迹,如十八到十九世纪的天花板和墙壁装饰,并插入建筑与家具的元素创造与过去全新的对话,从而满足客户的要求。
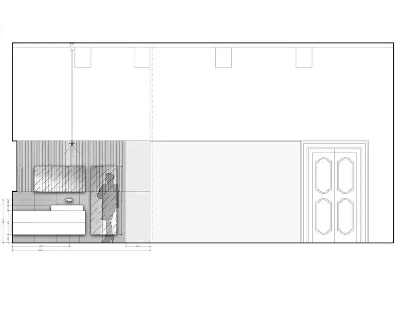
建筑师尝试通过创造一个尽可能开放并朝向大窗户的空间,来接受自然光线。并利用人工照明来展现建筑的历史感,以及主人的私人收藏品。
在材料方面,建筑师决定考虑结合罗马传统,恢复历史文化的空间氛围,然后利用创新和非传统的审美语言,特别对细节的关注,融入了现代元素。
建筑设计:Davide Marchetti Architetto 地点:意大利 罗马 类型:公寓,装修 面积:130 m² 年份:2019年 拍摄:Matteo Rossi 制造商:Viabizzuno, Artigiana Arredamenti, Cooper Colours, ITS STONE, Luca Mezzini pavimenti, OTTONERIA DARTE TOZZI, Robert McNeel – Associates, Zazzeri

