【名称】 Yabu雅布北京梵悦·108顶层会所丨效果图+SU模型+施工图+软装方案丨606M
【格式】 DWG+PDF+JPG格式
【大小】 606M
目录
『Yabu雅布北京梵悦·108顶层会所丨效果图+SU模型+施工图+软装方案丨606M』
– 下面是部分案例截图 –









【01】屋顶吧效果图方案+彩平

【02】顶层吧SU草图模型 2016.02.13

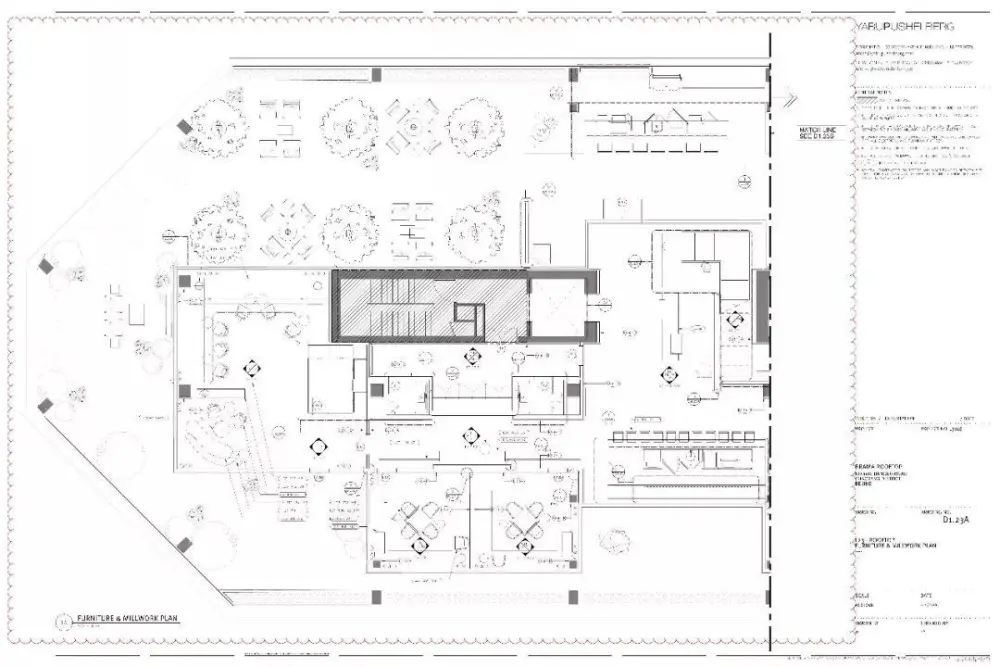
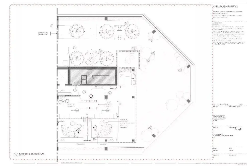
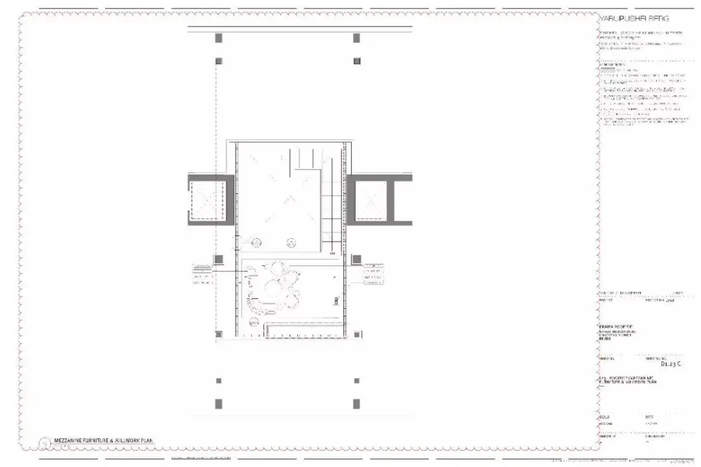
【03】顶层吧CAD施工图 2016.12.21

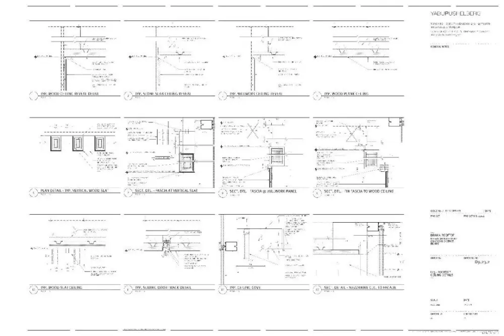
【04】顶层吧PDF施工图+深化图PDF 2017.02.13

【05】顶层吧软装方案图纸 2016.12.21


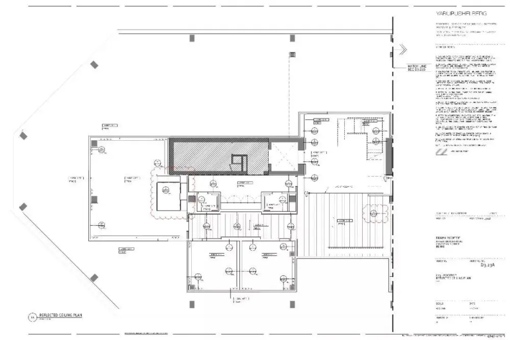
【06】顶层吧灯光图纸 2017.01.31

【07】YABU修改意见 2017.03.30

【08】变更CAD_15018 2017.03.30

【09】YABU最新雪茄吧调整方案 2017.04.19

【10】顶层吧平面及室外吧台调整 2017.05.09

详细图文
『Yabu雅布北京梵悦·108顶层会所丨效果图+SU模型+施工图+软装方案丨606M』
– 下面是部分案例截图 –

























































下载地址:


?