项目类型:硬装设计,软装宅配
项目地点:龙湖春江悦茗
摄影师 :瀚默视觉-小四
业主找我们设计时也正是疫情期间,所以沟通更多的是在线上,视觉化表达与实用性功能的完成度诠释着——距离不是问题的潜台词。
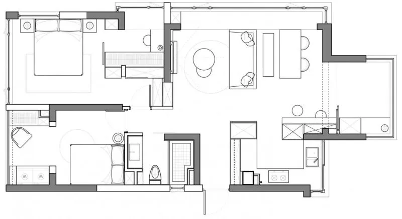
Sitting room/Restaurant/Kitchen
明确的区域,不限定的空间
Master bedroom
领域,是云朵包裹的万花筒
Multifunctional area
项目类型:硬装设计,软装宅配
项目地点:龙湖春江悦茗
摄影师 :瀚默视觉-小四
业主找我们设计时也正是疫情期间,所以沟通更多的是在线上,视觉化表达与实用性功能的完成度诠释着——距离不是问题的潜台词。
Sitting room/Restaurant/Kitchen
明确的区域,不限定的空间
Master bedroom
领域,是云朵包裹的万花筒
Multifunctional area
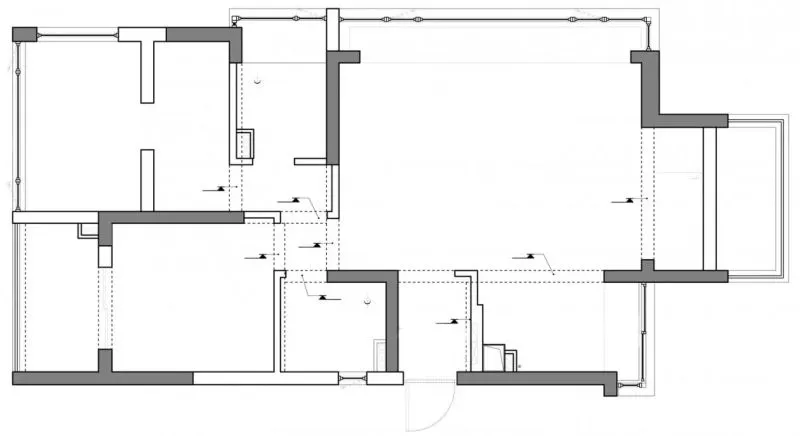
之前
