Kanstantsin Remez 建筑师 I 空间设计师 I 艺术家
对当代艺术有较深研究,不仅能以建筑师的视角对空间进行大胆改造,而且善于从艺术的角度去重新定义空间本身,喜欢通过对材料、颜色、光线等各种元素的综合使用来营造富有诗意的人居空间。
目前Kanstantsin Remez已在中国全面开展设计业务,漫设计工作室在中国将全权代表Kanstantsin Remez先生并提供相应的技术支持,以帮助其在中国顺利开展相关业务,并确保项目以最高的水准完成施工。
II Introvert Residence
Kanstantsin Remez是一名白俄罗斯明斯克的室内设计师,以极简主义风格著称,致力于研究将侘寂美学与东方禅意相结合的空间哲学,坚持以极简的设计手法和原始自然的材料,营造浪漫诗意的当代人居空间。
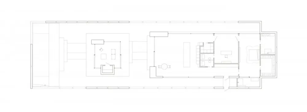
600 Apartment
这间公寓的原有布局的缺点是室内空间太过独立,流线不太通畅。Kanstantsin Remez把空间规划放在第一位。在摆脱了分区之后,在视觉上扩大了厨房和起居室的面积,并为公共区域增加了光线。客厅的配置是用来交流的,电视区有一个“隐藏”的配置,在公寓里有大量的亮点。
客厅,主要的重点是空间感,材料只是强调它,Remez的任务是把客厅布置成可以交流的地方。因此,电视区域是一个隐藏的设计,可以在适当的时候打开,不需要的时候就藏起来。
Turovskogo Apartment
空间不仅仅是空间本身,它是人置身其中的情感容器,是人与人亲密沟通的精神窗口,它承载了人渴望融于自然的美好愿景,更寄托着人内心深处那一丝浪漫的诗意。
Turovskogo公寓是设计师为业主精心营造的一处精神堡垒,在满足业主所有的功能需求之外,运用简洁明快而又极度浪漫的设计语汇,营造了一处温暖舒适并且充满诗意的家居空间。
Introvert Residence
Kanstantsin Remez是一名白俄罗斯明斯克的室内设计师,以极简主义风格著称,致力于研究将侘寂美学与东方禅意相结合的空间哲学,坚持以极简的设计手法和原始自然的材料,营造浪漫诗意的当代人居空间。
Saturn Residence
旧金山极简主义和朴素美
Saturn住宅位于旧金山,Remez的任务是重新设计这栋146平方米的房子,自1950年以来就没有进行过任何更新。该客户是一个年轻且有进取心的商人,在游戏行业工作,要求,Remez为自己和家人创造简洁而简约的空间,这将会是他的个性和对朴素美的追求蜕变。
最初,这栋房子的楼层之间有一个复杂的动线,甚至没有通往花园的安全出口。在此基础上, Remez简化了层与层之间的转换,并通过赋予每层自己的功能使其尽可能符合逻辑。顶层是主卧室和图书馆。上层有厨房和客厅,主层有一间车库和客房,下层是苗圃,最低的是一个供客人放松的阴凉区,从那里可以进入花园。
客户想要从以前的公寓搬走的唯一东西是他的Yamaho钢琴。因此,客厅的中心就是这件乐器,它对客户来说很珍贵,并彰显了他的创造力。
厨房区的概念是基于白色和对比色木材的组合。厨房采用隐藏式配置,可让您将房间变成一个完整的用餐区,在这里您不会被厨房家具所困扰,并可以充分享受与亲人交流的乐趣。

