MANSIONS幔山酒店位于重庆市江北区观音桥片区,这里是重庆本地年轻人最爱出没的地方,当然,这里也同样吸引着来自外地的年轻旅游观光客;但江北区作为重庆的新城区域,并不完全像一个记忆或影像里所熟悉的重庆样子。它更加现代,也更加平坦,高楼林立,虽然仍然烟火,但也呈现出了另一番景象。
MANSIONS Hotel is located in Guanyinqiao , Jiangbei District, Chongqing. It is the most popular place for young people in Chongqing. Of course, it also attracts young tourists from other places. However, as a new urban area of Chongqing, Jiangbei District is not exactly like a familiar Chongqing in memory or image. It’s more modern, flatter, tall buildings, and although it’s still noisy, it’s also showing a different picture.
▼酒店大厅,the lobby of the hotel ©言隅空间摄影 · 纳信
我相信,每个人对于重庆而言,可能都会有着自己的解读。但在我的记忆中,重庆便是一座巨大的工厂,那时随处可见的高大厂房与机械设备填满了我的回忆。这种记忆是美妙的,甚至是奇幻的状态,您甚至可以幻想一下,一座布满工厂的山城,是怎样一处4D魔幻的景象。我甚至可以联想到卓别林的《摩登时代》,从某种深层意义上来讲,卓别林在上世纪三十年代通过电影所要表达的深意不正是我们现在所处的真实状态吗?只是工厂不断被推倒,黑白影像也早已不复存在,随之而来的是高楼林立,与看似丰满的五光十色,这便是当下的摩登,也是如今大多数城市的繁荣表象。因此,摩登工厂的主题孕育而生,我们亦想通过一些表达,与当下的城市,产生些许的对话。
▼酒店客房的起居室,采用粉红色楼梯和穿孔板隔墙,the living room of the guest room with pink stairs and perforated walls ©言隅空间摄影 · 纳信
▼酒店客房的卧室,the bedroom of the guest room ©言隅空间摄影 · 纳信
▼起居室局部,partial view of the living room ©言隅空间摄影 · 纳信
▼酒店走廊,the corridor of the hotel ©言隅空间摄影 · 纳信
▼酒店空间轴测图,axon of the hotel ©简璞设计
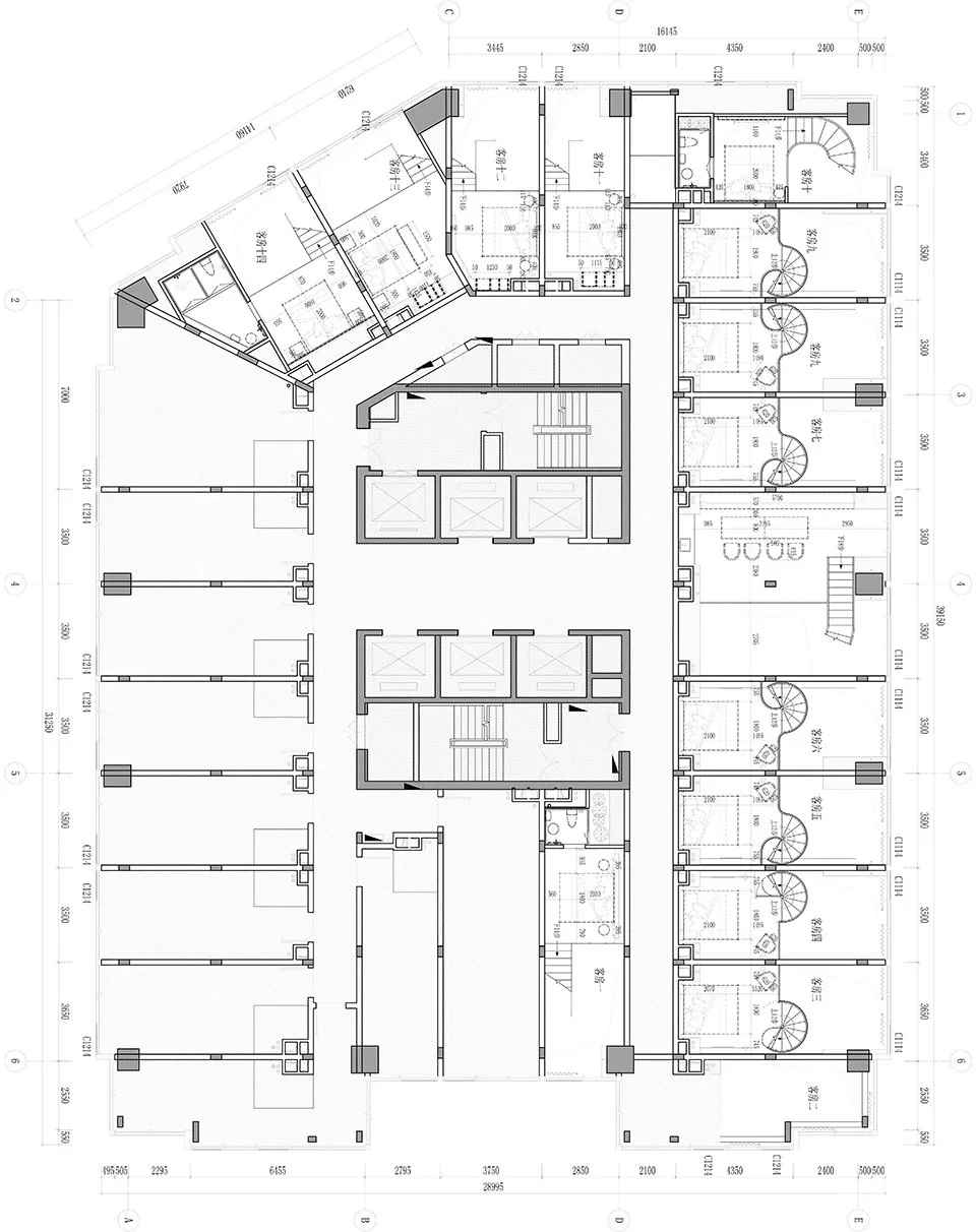
▼酒店下层平面布置图,lower floor plan ©简璞设计
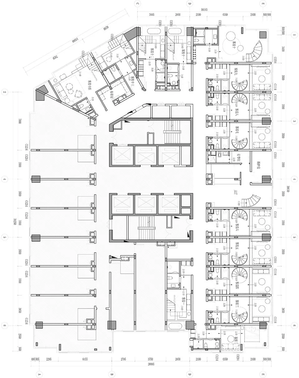
▼酒店上层平面布置图,upper floor plan ©简璞设计
项目名称:重庆幔山酒店
设计方:重庆简璞装饰设计有限公司
项目设计 & 完成年份:2018年11月 – 2019年1月
主创:文超
设计团队:聂鑫、曾薇薇、姚媛莉、殷琦
项目地址:重庆·观音桥
建筑面积:800㎡
摄影版权:言隅空间摄影 · 纳信
主要用材:钢板、灰色石材、实木地板、质感漆

