【名称】 Layan+金螳螂-厦门璞尚酒店丨效果图+施工图+机电+摄影+实景丨2.51G
【格式】 JPG+PDF+CAD施工图
【大小】 2.51G
目录
『Layan+金螳螂-厦门璞尚酒店丨效果图+施工图+机电+摄影+实景丨2.51G』
– 下面是部分案例截图 –








【00】简介及宣传手册 7M

【01】高清效果图 68M

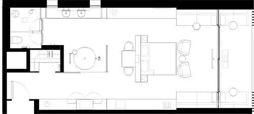
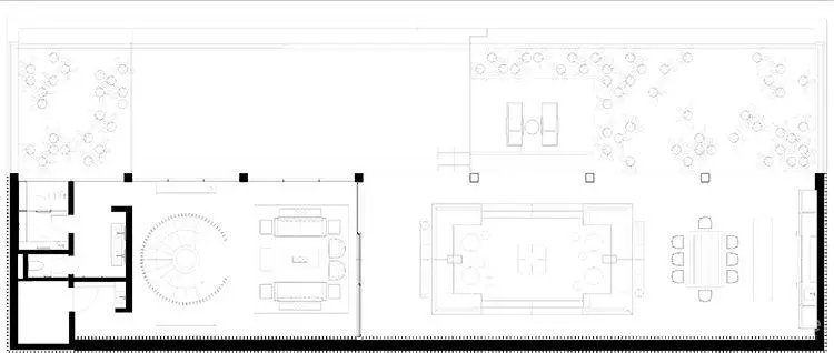
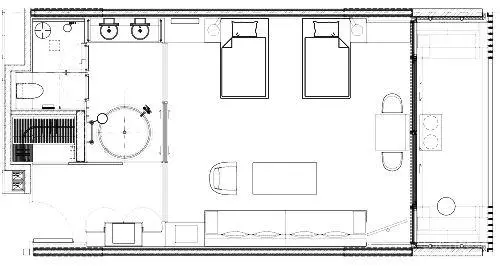
【02】装饰施工图CAD 1.49G

【03】机电图 45M

【04】高清官方摄影 133M



【05】考察实景 796M


详细图文
『Layan+金螳螂-厦门璞尚酒店丨效果图+施工图+机电+摄影+实景丨2.51G』
– 下面是部分案例截图 –






































下载地址:

