本案是澳大利亚建筑设计事务所T W Architects,在去年完成的一个改造项目。业主是一对年轻夫妻有着三个孩子和一条狗的幸福家庭。
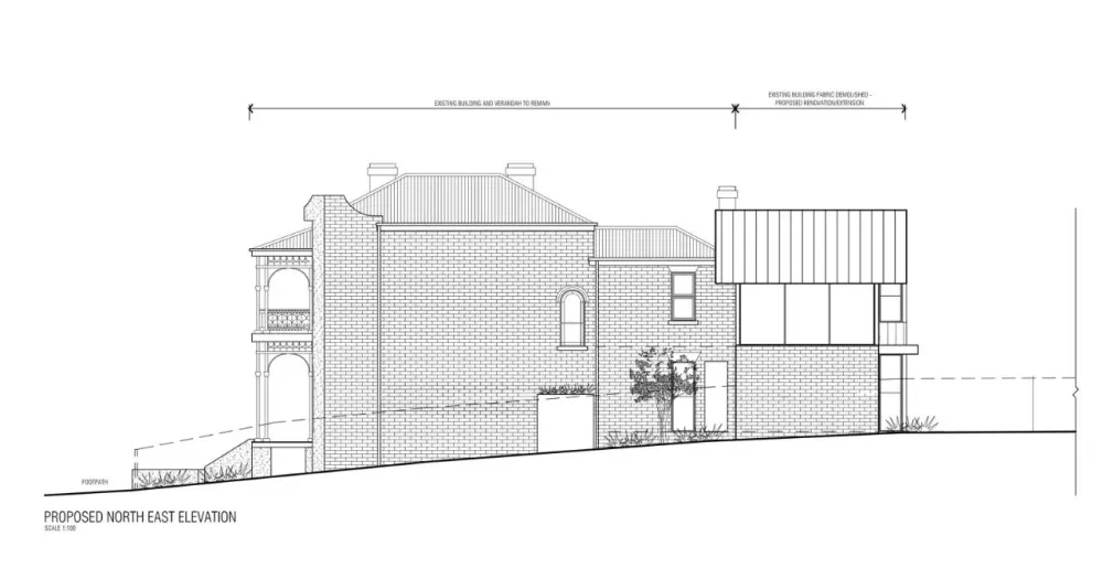
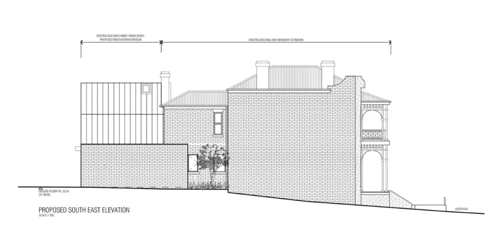
原建筑始建于1846年,坐落澳大利亚墨尔本中心。
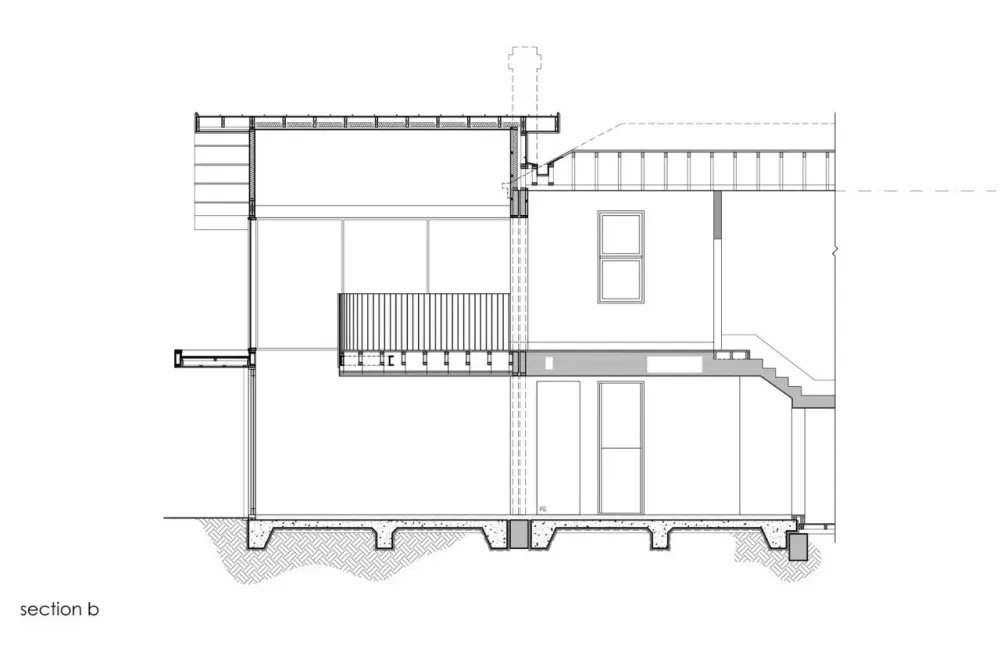
原建筑由于历史悠久的问题,光线与面积的缺乏降低了生活质量,业主渴望房子能把生活起居,烹饪,聚会,洗衣,阅读,与社交活动等功能能在一个通透开放的空间彼此连接相通,扩建后总面积为194平方。
由于房子占地面积并不大,设计师通过扩建前院打造成开放式的生活空间,来来改善因被面积限制的狭窄功能区域,以及光线缺乏的问题。
外墙由轻质木材结构上形成哑光白色包层,以保护内部的橡木、门窗不受天气影响。
这里原始历史遗留的房子非常的多,但它并不像维多利亚时代,阴沉黑暗的街道,相反被改建为明亮朝气富有气息的平静空间。
大面积的木板天花板定义出清晰分明的功能区间,营造一种平静、“不繁琐”的氛围。
主要的起居室、厨房与庭园巧妙地结合在一起,室内的光与影,色与景将随着庭园的昼夜、季节演变而变化,增添一份大自然的艺术气息。
在炎热夏季打开天窗与一楼的百叶窗、风扇,自然风可贯穿整座房子自动降温。
一楼被改建扩展部分建造落地玻璃墙体以引进光线,与室内空间嬉戏交汇,沐浴在令人感到舒适的氛围。当上层的百叶窗关闭时,空间便从炙热的阳光中撤退回归至宜人的清凉。
因为业主的丈夫是日本人,庭园的景观还用鹅卵石打造了一条小径从庭院到房子以及后院和游泳池,别有一番生活诗意。
房子的布局都是经过缜密精心考究的,几乎每个角度都能收览户外的景色。
双层挑高的空间在视觉上自然地连接到东西两边的户外景致,阅读休闲空间成为露台的其中一部分。

