日本小川晋一都市建筑设计事务所
由小川晋一于1986年成立
以极简、明快、干净为特色
致力于传达一种纯粹而直白的生活方式
以及带有日式禅意元素的设计理念
置身其中其中感到平静却又极富张力~
小川晋一 · 六个优秀作品欣赏
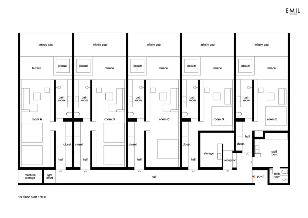
EMIL NAKIJIN
EMIL NAKIJIN是一家拥有5间客房的极简主义豪华酒店,位于海拔160米处的悬崖之上,可俯瞰冲绳的自然风光,东海全景尽收眼底。
整个建筑形态简到无法再减,呈现出一个简洁的长方形体块,白天从正面望去建筑与蓝天白云融为一体,洁白的墙面只留有一个小开口进入内部空间。
到了夜晚,建筑底部的灯带亮起,建筑简洁轻盈的体态被描绘出来,美不胜收。
进入酒店内部空间,设计师把空间色调、质感的统一发挥到淋漓尽致,简约舒适的家居让人倍感放松~
狭长的空间并没有带来压抑感,清晰有力的线条引导视线无限延伸,每个空间的大幅落地窗带来绝佳的山海美景。
无主灯设计凸显空间层次感,营造舒适的空间氛围。
每个房间都设有露台可以更深入地欣赏风景,无边泳池与海洋无缝连接,自由随性的感觉扑面而来~
SEA FRONT VILLA
该项目位于日本神奈川滨海,于2017年完工,周围有很多旧住宅,由于建筑前面是一条道路,设计师将整体抬高了 2.5m,确保了住户的隐私。
泳池横贯户外空间,渲染出极致的空间感。水流通过墙面的凹糟流出,晶莹的弧线打破了直线的规整,更显灵动。
建筑中有着“无”的美妙感,一旦踏入内部,纯净无瑕的白色充满整个空间,一切的多余装饰都是无意义的,面朝大海的一面是一扇超大的玻璃推拉门,可以无时无刻感受蔚蓝的大海。
房间内部有一个超大的白色旋转楼梯,突然跳出的曲线与大量的直线形成鲜明对比,为整个空间增加了一丝艺术的柔美,就连洗浴空间也是简约的超长矩形元素,在视觉上与外界大海相连,白色室内空间与蔚蓝的天空浑然一体,展现出一种清新、灵动的诗意美。
LAKESIDE HOUSE
项目位于日本梨山县,占地约1200m²,简单的方体框架和项目周围的景观构成一幅现代艺术品,简约的玻璃框架,可以从外界引入大量的自然的光源,房间内部家居以黑白色调为主并无过多装饰,以极简演绎真正的宁静、奢华。
在房间内部任意角落都享有绝佳的视野,以及惬意舒适的生活体验,房间内部无需繁琐,简单得只剩下风景,置身其中仿佛超然世外。
FLORIST STUDIO
这个房子位于日本风景秀丽的三重县,建筑面积约173m²,周围树林繁茂,房子被树枝枝蔓遮掩,营造出森林间的神秘感,整个建筑给人一种漂浮的视觉观感。
建筑本身除了住宅的功能还作为画廊使用,三面的玻璃窗把森林景色尽收眼底,简约安静、干练在这里被体现得淋漓尽致。
光洁的墙面,因为自然光的反射,明亮的光线洒入室内,灵动而有生机,营造了独具魅力的极致生活空间。
F RESIDENCE
该项目位于日本岐阜市郊外的一片田野里,主人用来自住和办公,背后是深绿色的山景,房屋前面是一片沼泽,周围的旧宅和这栋简约时尚的住宅,看似对比鲜明却又和谐融洽,充满简单舒适的乡野生活气息。
走过长长的小道就进入房间内部,没有复杂的内部结构,大面积的落地框出了田野最美的风景,不管是办公空间还是卧室空间,都可以欣赏外界的美妙风景。
M RESIDENCE
该项目位于日本福井,周围环境空旷优美,长方形的体块结构,整体呈现出一种纯粹的意境美,房子一面是超大的玻璃推理门,从外部望去,会客、用餐、烹饪、休闲,就像是一幅幅温馨优美的影视画面。

