设计的核心是一种创造行为,设计要求新、求异、求变、求不同,否则设计将不能称之为设计。而私宅项目设计包括了功能、材料、工艺、造价、审美形式、艺术风格、精神意念等各种因素综合的创作,总会有更多的想象留到下一次… …
入口玄关选用大理石材做波浪造型板铺装,迎面给人以细腻、精致的视觉感受。
配合入口玄关,功能上设置了一个鞋衣帽间和盥洗室,强大的收纳功能可以使空间保持整洁如初,功能区块,配合美学设计才能满足精致生活的体验感。所谓的“中看也中用”。
不是非得什么样的建筑外观室内空间就得跟着做什么样的风格的,这是一套绿城的中式别墅,室内所呈现的简洁轻奢与原建筑契合在一起,并没有违和感。更能体现了年轻业主对于多元文化的接受度和不一样的精神空间。
不做任何多余的装饰,各种细节用材恰到好处,干净利落。同时考虑耐用性,长期居住打理方便性也是必须考虑的因素。
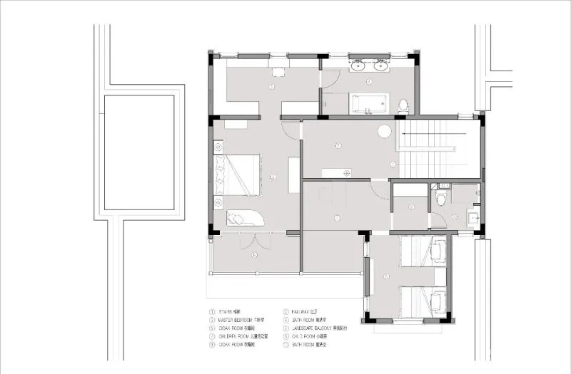
楼梯间挑高用纵向分割线再次拉高空间,过渡到二层卧室区过厅,形成一个缓冲共享区域,减少通道式的拥挤感,也是一个亲子互动空间,再尽可能的引入自然光。
低饱和度的暖灰色系一直延伸到卧室,各种材质的色相统一,低对比度,只用细小的金属线去做对比,勾勒出部分轮廓,使整个空间精神饱满。
地下室的入口玄关为了减少压抑感,做了挑空设计,引导视线往上抬。除了视觉震撼感,同样配套了鞋衣帽间和盥洗室的实用功能,真正好的设计实用和美观必须相互依存。
地下室客厅同样做了挑空设计,一侧采光井贯穿整个地下室,自然光可以非常好的进入。同时做了夹层空间,书房、儿童娱乐区,保姆房都能充分的享受到自然光线,身在其中,感觉不到是在地下室的空间内。
开放式厨房和餐厅,与客厅融合在一起,形成一个自由的空间,朋友、家人聚会于此,交流互动、无比惬意。
对于空间设计有着不断探索,追求一种真实与想象空间结合的成果,使用各种物料、光影、色彩、质感和软装搭配,合理的人性化空间,为每一个独立个性的业主专属打造完善的生活空间,因生活而设计,因设计而美好!
项目名称:剡江越园.私宅
室内设计:MA.空间设计
设计团队:马春锋 王娜佳 裘颖菲
软装设计:壹境全案软装
项目地点:中国 绍兴|嵊州
项目竣工:2021年1月
MA.空间设计:马科锋

