MATRIX DESIGN
建築為生活的物理表達,藝術之花苞開於生活, 飽滿,從容。
《莊子·齊物論》寫道“昔者莊周夢為蝴蝶,栩栩然蝴蝶也,自喻適志與,不知周也。”莊子將東方的詩性哲學依託於夢中蝴蝶,沉浸在自我與他者的參照系中,達至物我合一的純粹境地。
空间設計靈感便由此浮出,設計師談到“希冀在建築的本質屬性之上,將其作為生活的載體,讓藝術從主客體的變換關係中跳脫出來,達成建築—生活—藝術的自由流動。”
項目位於黃帝故裏鄭州,黃河穿行而過,將其與中心鬧區主脈絡割而不離,沿鄭新大道順東三環高架可快速融入會展商業區。鳳湖景畔的縈繞,讓美學館自然銜接起梭羅“瓦爾登湖式”的生活理念。深入地生活,就是要吸入生活的精髓,也要生活得穩穩當當。
天堂應該是圖書館的模樣
我心裏一直都在暗暗設想, 天堂應該是圖書館的模樣, 我昏昏然緩緩將空幽勘察, 憑藉著那遲疑無定的手杖。 ——博爾赫斯《關於天賜的詩》
如何在空間之外添加另一個空間形態,使之適配而不失新意,這正是設計師的天馬行空之舉。“在室內嵌入一個寬敞通透的圖書館,讓知識從書吧流瀉到整個空間,從而區別於其他售樓處。”
書吧在設計上作挑空處理,動線佈局,釋放出人的局促與不安,將圖書館的大氣進行放養。大小相同的木質書櫃置於三面巨牆,敘述出整體性與秩序感。
扇形綠色葉片高懸於天花板之上,似莊周夢中的蝴蝶,極展雙翅竄入書吧,意欲攜知識蜉蝣於天地。又如靜湖中的船帆,置身於其間,無暇渺滄海之一粟,清風與明月亦慕名而來。
視覺的投射是空間體驗的先知,沙發、圓桌、地毯將黑、白、灰三色盡數合攏,視覺感知在顏料衝擊中得以溫存,地毯延伸開的無規則線條與M-CASA螺旋云石燈,傾瀉出中國山水畫作的元素構造,從細節錯落中“回歸東方”。
少不是空白,而是精簡。 精簡到不可精簡的絕對境界,昇華為建築的藝術。
東方美學與西方美學在探尋生命的本原上保持一致,在簡單與繁複中上下求索,但最終都抵達返璞歸真的彼岸。遵循著“少即是多”的美學理念,設計師將其運用到洽談區、水吧區的每一扇空間與裝飾上。
頂部的切割面折射出建築的“立”與“破”,與室內的木飾面連接成水天一色。弧面的擺臺側向地板,連同圓形的臺面、圓柱形的底柱和木椅扶手,蜿蜒出一道淡抹的漣漪,透過米色材質訴說著最溫情的絮語。
VIP洽談區通過半落地窗的設計,提升了地域的可視範圍。圓木天窗的開口設計,收納天圓地方的古代智慧,將空間的私密性與開放性轄於一室。
從圓形漸變為方形的天窗,同時將開口面積收縮,光源上移至天花,從而保持建築的均衡與流動,這是設計師在另一VIP洽談區上的考量。
水吧與洽談區的連通,既以深色凸顯自我呵護的小空間,又享用了大空間的共融性。
個體在自我時間中完成縱向的一體化, 得以在連續性中發現“我是誰”
在建築語義中,一體化與連續性是一對孿生兄弟,彼此依附,以避免陷入衰落與消散的歷史性迴圈中。
知識階梯,從書吧延伸而至。作為承載著知識傳播的功能區,官能性感知上,設置有坐席與拾級書架,吊頂上燈具以蜂巢造型,借勤奮寓意引入室內,又取“鑿壁偷光”之意,豐富其單一功能性內涵。
人們對生活在自由高處的追求,亙古如新,它比現實更藝術,比故事更流動。
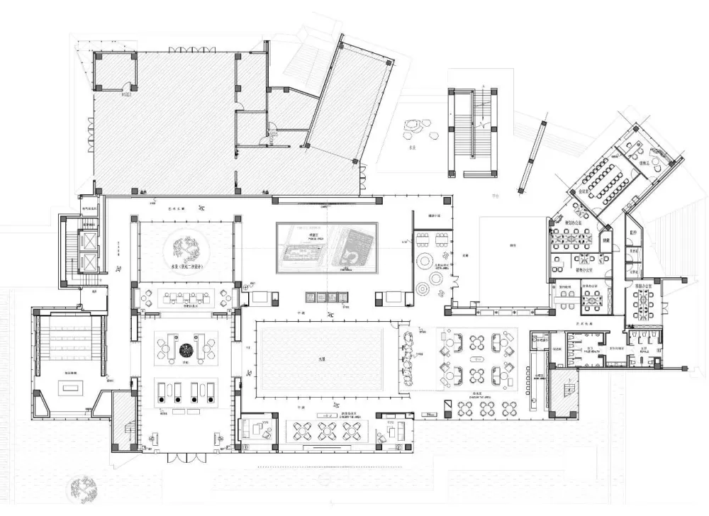
項目名稱| 新鄉藍城鳳起潮鳴藝術生活美學館 硬裝設計| 矩陣縱橫 軟裝設計| 矩陣鳴翠 攝影公司| 釋象萬合 項目類型| 文化展示空間 設計面積| 1500㎡ 硬裝造價| 3000元/㎡ 軟裝造價| 2000元/㎡ 主要材料| 人造石 木飾面 肌理漆 墻布 金屬 設計時間| 2019年12月 完工時間| 2020年6月
独家首发,未经授权,严禁转载,欢迎转发至朋友圈
以矩為方圓 萬物皆成陣
深圳市矩陣室內裝飾設計有限公司
Shenzhen Matrix Interior Design Co,Ltd 地址:深圳 福田保稅區 市花路福年廣場 B3棟411、413、420及421號 No.411,B3,Fortune Plaza,Shihua Road,Futian Free Trade Zone,Futian District,ShenZhen City,Guangdong Province,China 北京 朝陽區 廣渠路競園藝術中心18號 No.18, Jingyuan Art Center, Guangqu Road, Chaoyang District, Beijing 上海 黃浦區 瑞金二路38號2、3層 2nd and 3rd floor, 38 Ruijin 2nd Road, Huangpu District, Shanghai 成都 武侯區 高新萬科大廈6層625室 No.625,Hi-tech Vanke Building,Wuhou District,Chengdu,China 商務Marketing Dept. 電話Tel: 86 755 83222578 郵件Mail: zyd@matrixdesign.cn 人事Personnel Dept. 郵件Mail: hr@matrixdesign.cn 品牌Brand Development Dept. 郵件Mail: zyd@matrixdesign.cn 官網Site: www.matrixdesign.cn 微博Weibo: https://weibo.com/matrixdesign 微信公眾號Wechat: MatrixDesign矩陣縱橫
Creative design | Global opportunities | Award-winning projects

