日本流山市幼儿园 KidsLabo
成年人的世界里没有童话, 但是他们总是乐于为孩子创造童话世界
大多数日本的幼儿园设计整体都偏素雅,相比起我们常见的幼儿园显得有些“冷清”,然而最近在日本千叶县新建的一所幼儿园就让人眼前一亮。
这所幼儿园由著名的艺术团队TeamLab打造,致力于为孩子们提供多样性和空间感知的场所。
△Team Lab作品
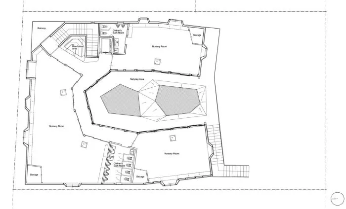
从顶面看,整个建筑呈U字形,由几个独立的多边形空间组成,面积为497m²。
项目设置了两个游乐场地,户外花园连接着室内游乐场,使两个空间边界模糊,仿佛交融在一起,也让内部空间的视野变得开阔。
室内外的落差用木质斜坡来缓解,增加安全性。花园内并不是完全的平地,有凸起的小山坡,有凹陷的小水坑,让孩子们在玩耍时也能感受自然。
房间内部是五彩缤纷的天地,希望能让孩子在这里感受到多样性。图书角的设计也很有趣,用书架围成了一个空间。 每个空间即是独立的,也是相通的。
幼儿园一共有两层,二楼设置了两个天井,天井对应的是一楼的游玩沙坑。 二楼房间全部采用玻璃门,保证了采光,随着时间的变化,孩子们可以在不同的房间看到不同的光景变化,也能全方位的监视孩子们的安全情况。
天井的位置运用了攀爬网,与地板齐平,这是一个需要全身协同运动的三维空间。 无论是沙坑还是攀爬网,都意在给孩子们不一样的活动空间,锻炼了空间意识和辨别能力。
TeamLab团队的建筑师井村英真表示:我希望孩子们能透过幼儿园认识空间,能在日常生活中感受充满创造力的空间。 室内空间被切割成不同的区域,即使孩子们身处在同一个空间中,还是可以各自进行不同的活动而互不打扰。
建筑团队尽可能在每个房间使用不一样的颜色,目的在于帮助孩子们认识、接受不同的个性,因为与别人不一样,是再正常不过的事情。
因为这所幼儿园是新建在居民区里,为了融入周边的建筑群,屋顶采用了坡形屋顶。屋顶呈现为多个小屋顶的集合,借以表达包容多人相互协商、共同思考的意念。
项目名称:日本流山市幼儿园 KidsLabo 建筑事务所: TeamLab Architects 面积: 497 m² 年份: 2021 摄影: Vincent Hecht 客户: KidsLabo Incorporated 国家:日本
这所幼儿园将是日本又一所令孩子们向往的幼儿园,不再是人们眼中“冰冷冷”没有温度的建筑。 无论是哪一个幼儿园的设计,都能看到设计师的用心。目的都是为了给孩子一个自由快乐的成长空间。童年短暂,每个人或将会长成一个无趣的大人,那至少给孩子一个有趣的童年吧。


學習了