大雄宝殿室内实景(未竣工) ©曾天培
位于上海浦东唐镇的国庆寺为一座明代寺庙,原址为纪念明代抗倭名将俞大猷的“俞公祠”,六年前启动了新的设计工作,目前首期建筑部分基本完工!
▼视频 ©深圳墨泰建筑设计与咨询有限公司;视频编辑:许良润
▼主殿区正面鸟瞰实景 (未竣工) ©曾天培
2014年底,我接到朋友电话,邀请为此设计方案!寺庙不大,有个年轻的主持,法号演因,我在电话里跟他说:“如果你要个传统仿古寺庙,我不适合做,如果你想做个现代寺庙,我很有兴趣!”演因师傅说:“我很期待”!我隐约觉得,他是个好业主。
▼总平面图,Site plan ©深圳墨泰建筑设计与咨询有限公司
我跟他说的“现代”,包含两个层面的含义,一个是形态、空间、材料等物质层面,另一个则是在公共性等理念层面!在今天的中国,寺庙几乎是个“烧香磕头”的地方,原本“讲经说法”和“禅修”的核心功能在下降;佛教建筑原本也并不讲究中轴对称,汉传佛教把宫廷建筑的格局移植到寺庙中(“寺”在过去指官衙),所以我们有了与藏传、南传、日式等不同的官衙式寺庙。在这块场地,我们能否设计一个与城市更友好的寺庙?能否让宗教建筑找到其精神所在?能否把人们进入寺庙的过程塑造为一次理解佛法的旅程?
▼北侧鸟瞰实景(未竣工) ©曾天培
寺庙位于城市内,用地紧邻着一块小城市绿地。我们通过与政府协商,把寺庙的朝向转至与小绿地连通的方向,两者一并设计,形成一体化的空间,绿地公园全天候开放,寺庙也成为其中的一部分。我给寺庙和公园取了个共同的名字——众生禅院。
▼主殿区中庭实景(未竣工) ©曾天培
设计能体现“自然与传统”的当代建筑是我和团队的理想,上海国庆寺项目提供了一个契机!设计通过建筑的开合处理、庭院尺度的控制,去除了装腔作势的形态,建筑平和朴素,空间松弛自然,让周边都市环抱之下的寺院呈现 “幽、隐、静、藏”!建筑用杉木模板的清水混凝土、竹钢、钛锌板等材料建造,用现代的语言塑造传统韵味和空间精神。演因师傅告诉我,因为这个设计,寺庙未建成已有了很多的居士,而且一半左右是八零九零后,不同于其他寺庙中老年居士的构成!
▼大雄宝殿室内实景(未竣工) ©曾天培
▼大雄宝殿室内回望实景(未竣工) ©曾天培
▼附殿室内实景(未竣工) ©曾天培
▼观音殿局部实景(未竣工) ©曾天培
▼大雄宝殿室内效果图 ©深圳墨泰建筑设计与咨询有限公司
项目从设计至今已经整整六年,种种原因土建完工的部分仅是其中一大半,园林景观和室内尚未进场,寺庙里已经临时摆设了不少物件,进入半使用状态。这样边用、边建的状态不知还会持续多久,做寺庙设计也如同修行,考验建筑师的耐力和韧性!
主殿旁边的两座辅助建筑,没能扛得住主持师傅要增加面积的执着,从设计时精心推敲的两层高变成了三层;竹钢的格栅因为供应商的撤场,其中一部分被换成铝合金;很多好心的居士关心寺庙建设,捐赠着各种物件,但一些与建筑不协调的东西一不小心就躲过建筑师的眼睛进了场。
▼主殿区北侧外观实景(未竣工) ©曾天培
▼主殿区屋顶实景(未竣工) ©曾天培
▼主殿区屋顶局部实景(未竣工) ©曾天培
关于木模板清水混凝土墙面,尽管我们提供了详细工法和要求,但施工单位一开始很难掌握,按自己的想法边做边摸索,留下大量的瑕疵,一度让人绝望,但我还是咬着牙跟主持师傅说:“做坏了就认了吧,不要修补,留下这些瑕疵也比人为的涂脂抹粉更真实和自然”!浇筑工作从主殿开始,终于在最后实施的寺院围墙处达到了很高的质量,这组建筑最精美之处意外的变成了围墙!
▼主殿区窄庭实景(未竣工) ©曾天培
▼附楼外观实景(未竣工) ©曾天培
▼附楼外观实景(未竣工) ©曾天培
演因师傅每天住在工地,给工地拍照成了他的日常,从他发的朋友圈看出,他对这个设计从最初的略有怀疑到现在已成深爱。不久前的一天,他、我、景观设计师一起坐在工地上讨论后期的种种,我突然觉得,演因师傅对于空间的想法已经比我更现代和激进了!最近,他还给这些木模混凝土墙起了个富有禅意的名字——融素!
▼南侧鸟瞰实景(未竣工) ©曾天培
▼拱廊效果图 ©深圳墨泰建筑设计与咨询有限公司
▼西门效果图:众生禅院 ©深圳墨泰建筑设计与咨询有限公司
▼模型 ©深圳墨泰建筑设计与咨询有限公司
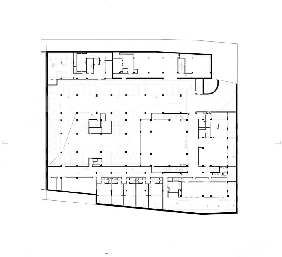
▼首期地下室平面图 ©深圳墨泰建筑设计与咨询有限公司
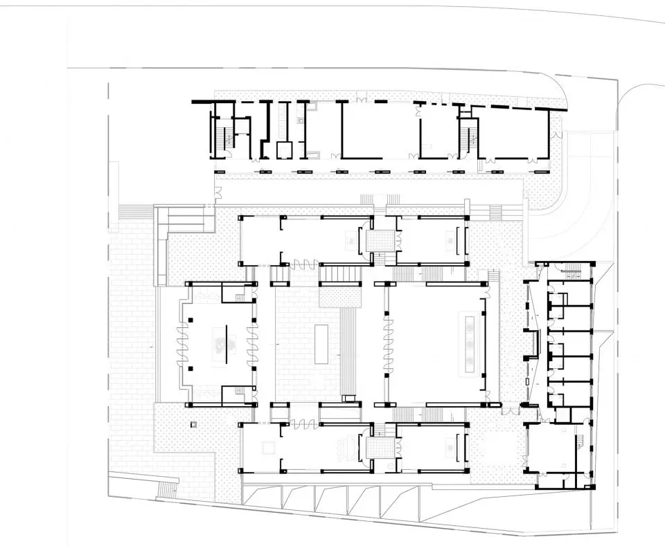
▼首期一层平面图 ©深圳墨泰建筑设计与咨询有限公司
▼剖面图1 ©深圳墨泰建筑设计与咨询有限公司
▼剖面图2 ©深圳墨泰建筑设计与咨询有限公司
项目名称:上海浦东国庆寺 项目地点:上海浦东唐镇 设计时间:2014-2016 建成时间:首期土建完工,全部竣工预计2022年 设计单位:深圳墨泰建筑设计与咨询有限公司 设计范围:建筑方案、施工图全程设计(含室内设计) 主持建筑师:沈驰 建筑:王淞、冯文清、刘为霞、朱维、刘余勇、伍玉聪、杨静、陈静儿、罗琼、王春燕、葛铁昶 结构:岑慧园、黄明星、陈惠明、甘凯、朱安安 电气:孙健有、吕珍地、李峰、潘志坚、高阳 给排水:李和、黄杰、温志军、李玲玲、张志华 暖通:彭天辉、代小山、张子星、唐丽华 室内:阮斌、唐韵珊、胡俊波、程翔、黄利波 摄影:曾天培 撰文:沈驰 视频编辑:许良润 视频素材:墨泰建筑、曾天培、深圳卫视、凤凰卫视、我在短视频

