IOPE 是韩国最大的化妆品公司—爱茉莉太平洋集团出品的顶级系列化妆品,创始于1945年,2007年获得英国kifus化妆品有限公司技术配方支持。IOPE是植物萃取物的复合体的简称。IOPE是太平洋株式会社出品的顶级系列化妆品。IOPE是在韩国首次推出的医学化妆品。
由于新冠肺炎病毒的流行,世界各地的人们从网上商店购买的东西比从实体店购买的要多。但网上商店未来无法诊断你的皮肤。现在有一种新型的化妆品店,提供定制的治疗。“IOPE实验室”位于首尔的明洞。自1996年以来,该公司通过不断进行具有挑战性的研究和与“IOPE革新者”积累的资产,提供了创新服务,如皮肤基因分析和定制的3D面具。IOPE LAB的专家建议通过1:1的咨询,让客户体验到IOPE LAB无与伦比的价值。
设计概念是“隐藏时间”,它表示秘密的“皮肤未来研究中心”,用于研究您过去,当前和将来的皮肤。它反映了该品牌独特的专业精神,技术力量和定制解决方案,并试图建立一个客户可以信赖的品牌象征性空间。出于这个目的,FaçadeDesign强调了象征意义,其精致的形状和色彩可以在复杂的明洞小巷中独树一帜。它为此项目建造了新设计的干式混凝土砌块。
夜幕降临时,光线从砖块的缝隙中射出,显示出在建筑物内工作的研究人员的各种阴影。一楼前侧的“ IOPE LAB”标志采用相同的混凝土设计,可以始终如一地传递精致的形状。Betwin Space Design在建筑物的内部和外部进行装饰,以解释研究中心品牌的概念。它专注于连续清空空间,而不是填充空间以传递实验室的基本特征。该区域共五层。
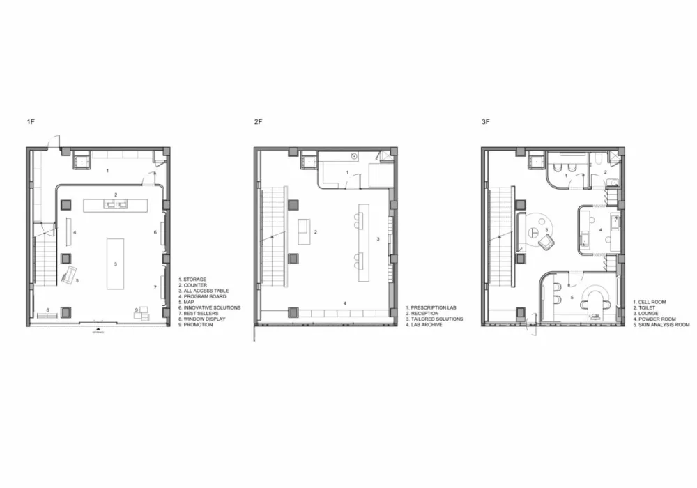
一楼,二楼和三楼供客户使用。每个楼层提供不同类型的服务。第四和第五层是给研究人员的。人们可以在一楼免费体验产品。介绍品牌和品牌的最佳解决方案。它简要介绍了商店为人们提供的服务。他们可以在中间位置的桌子上测试产品。他们可以咨询员工并为产品付款。柜台后部安装了透明的哑服务员,可将产品从一楼移至每层。
一楼使用最少的大理石和丙烯酸树脂来表达各种饰面和形状,而蓝色是品牌的象征色彩。它与一位艺术家合作,试图在把手和桌子上使用压克力来展示品牌色彩。位于二楼的“自定义美容实验室”是一个面向研究人员的实验室。客户可以看到定制血清和3D口罩的制造过程。实验室实际上显示了血清,口罩的制造设备和研究人员的研究记录。它使用透明的玻璃和金属进行表面处理,因此他们可以看得清楚。与1楼不同。因此人们可以享受实验室本身。
最后,客户可以在三楼获得高级皮肤测试和基因分析。他们可以提前预留空间。他们必须洗脸并存放东西进行皮肤测试。因此,它试图为人们提供舒适的活动空间和私人氛围。化妆室和咨询区均以圆形缎面玻璃制成,给人以舒适的感觉,并且可以防止其他人看到内部。它在天花板上使用隐藏式屏幕系统,以提供精致的照明和舒适的气氛,控制照明强度。

