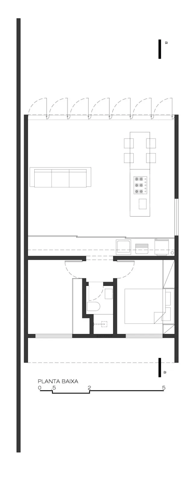
Daher Jardim Arquitetura完成了位于巴西的小住宅设计,将一个24平方米的小结构空间延伸到一个稍微大一些的60平方米的建筑,它位于巴西利亚一片草坪的边缘地区。
原有的建筑只是一个卧室和浴室,所以建筑师增加了厨房和客厅。预算有限,工期紧迫,设计师决定了材料和施工方法,整个工程在不到三个月的时间内完成。
室内和室外的墙壁都是明亮的白色,有助于反射阳光,防止巴西有时令人难以忍受的高温环境。金属框架上的滑动木板将卧室与厨房和餐厅区分隔开来。
热声瓷砖地板是一个经济、实用的选择,与简单的结构对齐。一个模压混凝土长方体兼作厨房岛和餐桌。艺术品和室内植物是色彩图案的唯一来源,创造出整体清新、干净的美感。
波纹铁皮屋顶和碧绿的环境给人一种明亮、开放、通风花园小屋的感觉。主要的生活空间与花园齐平,通风和自然光通过落地玻璃门与内部环境仿佛成为一体。
这个家是一个极简的隐居之所,只有一把皮革阅读椅代替了沙发,其他的娱乐活动可能需要多一点家具。
这座住宅是一个很好的参考案例,它使用了更实惠的材料,创造了一个具有设计价值的空间。
项目位置:巴西利亚,巴西
设计时间:2019年
设计面积:60平方米
设计师:Daher Jardim Arquitetura
摄影师:Haruo Mikami & Larissa Sad

