唐宁书店四海城店从今年7月初开始试营业,期间根据顾客的反馈不断调整与完善,于8月底正式开业。作为社区的公共空间,唐宁书店选择在疫情期间整装开业,为社区居民走出疫情阴影、回归文化生活注入了信心。
该项目是立品设计继唐宁书店旗舰店之后,为唐宁书店设计的第二家店面。从建筑改造到空间体验规划和设计,设计团队试图在书店里创造一种新的时间观——这个两层近千方的复合空间可满足一天中不同时段、不同顾客的需求,提供了使用场景自由切换与平行共生的可能性。
以“四海城的日与夜”为题
品牌标志蓝色是唐宁与读者粉丝间的默契。
从建筑改造入手重塑空间
让每个角落都为品牌讲述故事
新店选址于广州番禺四海城广场的核心位置,前接下沉广场,背靠住宅,闹中取静。在原规划中,横跨四十多米的两层建筑属天台马场的配套设施,故空间非常低矮,结构不规则,难以作为商业空间使用。
原建筑层高矮,梁柱多,空间感受压抑
△原建筑楼梯过于靠近入口
打掉楼板、改动楼梯位置
用开阔空间营造舒适的阅读体验
原建筑梁底最低处只有2
.3米,空间过低产生的压迫感不利于顾客的长时间停留,对于书店来说是个亟需解决的问题。
设计团队选择打开大面积楼板,利用挑高空间设置阶梯小剧场。
所面向的外立面应用玻璃幕墙,让将原本局促的空间变得开阔,成为可供长时间停留区域;同时增加了室内外的互动性,让读者在舒适阅读的同时静观时间流逝带来的光照变化。
△ 大面积的玻璃幕墙引入自然光、打开室内空间;而外立面及空间中的格栅元素,帮助顾客在视觉感受上拉高空间。
白天,充足的光照配合书店选材的质朴质感,给人以明亮、通透、干净的视觉印象。入夜,店内灯光在空间的不同区域自然过渡,并透过玻璃幕墙向外溢散。远远看去,仿佛在城市一隅点亮了一座文化灯塔。
△ 原建筑的水泥裸柱被保留,既不隐藏也不强调,在崭新的空间中继续承重,为书店的质朴、自然质感定下基调。
新建的楼梯被移至小剧场旁,构成平行而互不干扰的两个空间。宽度加大,使上下往来的人们行走处于舒适的尺度中。沉稳的色调结合低调的照明效果,为读者带来沉静平和的感受,并给予转换心态的暗示。
△ 改造后新增的建筑结构
时光长廊连通童书区与成人区
以装置手法打造趣味幻境
改造后,两组阶梯之下形成了狭长的“通道”,两端连接儿童区与生活方式书籍区。一方面,从功能需求考虑,立品团队希望吸引小读者从此处通过,以避免幼童跑动对前方小剧场中活动的开展造成影响。
而另一方面,设计师运用装置手法,巧妙地将“不好用的空间”变为视觉效果突出的“时光隧道”,为儿童及家长构建能够留下触动与回忆的趣味光影幻境。
长廊内,两侧墙面排列的三棱柱构成折面,利用光栅原理,在顾客的行走过程中呈现深色与浅色的渐变效果,呼应入口装置和“日与夜”的设计概念。
而嵌入的插画由光栅板制成,移动方向不同,光栅版所呈现的故事也不同:从儿童区走向成人书籍区,可以看见一个小朋友放飞纸飞机、梦想自己长大成为宇航员的画面;而从另一端出发,故事则是关于时光的回溯,成年人重返童年的绮梦。
也许书籍中本就蕴含着和时光长廊类似的隐喻——孩童从书本里开启探索世界的征程,而成年人在其中回望和思辨,找回初心。唐宁意在陪伴社区成长,而设计师希望为其加入具象化的精神角落,成为空间中的彩蛋,和留给读者的记忆点。
△ 时光长廊另一侧的生活方式书籍区
复合业态提供多种社区生活方式
在社交媒体盛行的当下,书店早已被异化为人们拍照、打卡的背景。诚然,空间是书店传播的支点,但度的掌握决定了书店的身份。在社区书店中,适配不同读者群体与多种阅读场景的空间是其核心部分。
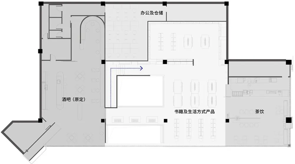
在原构想中,书店二层从侧边入口进入后依次是酒吧、书籍区、茶饮区。社区日夜交替,而读者们可在平行的空间中获得不同维度的文化体验。
△ 原酒吧区域设计效果图
靠近书店入口处的是生活方式书籍区,陈列了杂志、各类畅销书及相关生活方式产品,用最贴近日常生活的内容为刚进店的读者提供选书灵感。
杂志、畅销书与生活方式小产品共同组成生活方式书籍区,位于书店入口,靠近外立面,自然光从格栅中照入。
书店主力区域在自然质朴的基调上,强调书架造型及工艺的品质感,适配成熟优质的生活方式。而在儿童区,可灵活组合的小家具是为小读者们提供了自由发挥的空间;更触手可得的书籍和座椅帮助孩童自发地进入阅读世界。
为书店与读者构建文化交流空间
小剧场承载着书店的社交属性。到了夜晚,这里会承办文化沙龙、脱口秀、电影放映等活动,向社区居民开放丰富多元、高附加值的文化体验。建筑改造后开阔的空间打破了讲者与听众的隔阂,成为近距离遇见知识的场所。
△ 二楼新建天桥,读者可从两侧向下与一楼空间产生互动。
二楼的艺术书籍区则提供了适合长时间静坐阅读、兼具最好视野的区域。图书馆式的多排书架,和窗前的格栅对应,强调理性与秩序感。当阳光穿过格栅落在书架上,交织的线条便赋予空间更多的层次与趣味。
通过书架与展台的穿插设置,读者能够在随意游走中对空间进行探索。既可以隐于高大书架之间,沉浸于一个人的冥想,也可以走入更开放的空间,与新的朋友产生交流和互动。
覆盖更多社区人群及更长时段
书籍区之外,书店还引入了潮玩、茶饮等更多业态,并持续迭代更新,以探索围绕书籍的文化生活的可能性。在满足年轻社区居民需求的同时,也为更多元的消费者提供新的生活方式提案。
△ 定制手工砖强调自然质朴的质感
无论日夜流转,社区书店都是都市文化的灯塔。新与旧的对话,木纹肌理与水泥质感的比照,不同场景下顾客动线的平行与互动,一个承载社区生活的空间由此营造出来。读者们将在此读书饮茶甚至小酌,在快速发展的城市里存放属于自己的生活记忆。
唐宁书店 · 广州四海城店
设计范围 | 建筑改造、空间体验规划、室内设计、装置设计
项目地点 | 广州番禺四海城
设计公司 | Leaping Creative 立品设计
设计总监 | 郑铮 Zen
参与设计 | 吴德华、刘福通、胡锐润、杨鹏辉、黄嘉明
装置设计 | 龚乐诗、黄子昕
立品设计创始人、设计总监
毕业于英国伦敦艺术大学中央圣马丁学院,获产品设计荣誉学士学位。毕业后曾于伦敦从事产品设计、品牌设计、市场推广等不同职能的工作,回国后于2010年创立Leaping Creative立品设计,商业设计作品获多项国内外知名大奖,2017年获评“40under40中国设计杰出青年”。
Leaping Creative 立品设计
是一家品牌体验设计公司,为不同行业的品牌提供形象策略和体验设计服务。
团队由来自商业调研分析、品牌视觉传达、空间体验塑造、互动装置及材料研究等各个领域的优秀设计师构成,擅长运用跨界设计思维与跨领域设计手段,提供高质量的专业设计服务,为品牌构建独特体验。

