【名称】 【最新餐厅】上海中心大厦洋房火锅餐厅丨效果图+CAD施工图丨755M
【格式】 JPG图片,PDF,CAD施工图
【大小】 755M
目录
『【最新餐厅】上海中心大厦洋房火锅餐厅丨效果图+CAD施工图丨755M』
– 下面是部分案例截图 –













01.效果图


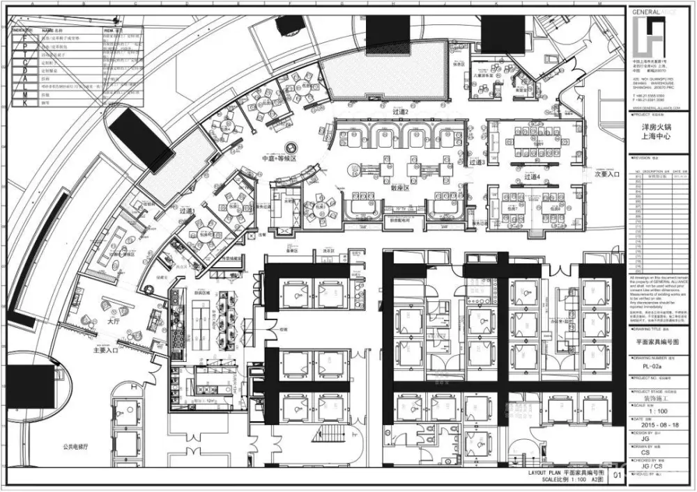
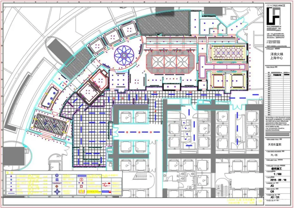
02.CAD施工图


详细图文
『【最新餐厅】上海中心大厦洋房火锅餐厅丨效果图+CAD施工图丨755M』
– 下面是部分案例截图 –











































下载地址:
【名称】 【最新餐厅】上海中心大厦洋房火锅餐厅丨效果图+CAD施工图丨755M
【格式】 JPG图片,PDF,CAD施工图
【大小】 755M
『【最新餐厅】上海中心大厦洋房火锅餐厅丨效果图+CAD施工图丨755M』
– 下面是部分案例截图 –













01.效果图


02.CAD施工图


『【最新餐厅】上海中心大厦洋房火锅餐厅丨效果图+CAD施工图丨755M』
– 下面是部分案例截图 –











































下载地址:
很好