与花园相连的全新生活空间 © Ceavs Chua
这幢别墅位于马来西亚吉隆坡郊区,年轻的房主夫妇希望生活在一个尽可能不被打扰的环境。为了满足客户需求,项目团队打造了一个适合角落住宅的新结构,重新定义了地面层的生活空间。
▼住宅概览 © Ceavs Chua
新的结构简单而大胆,与现有的热带郊区住宅形成鲜明的对比。从平面图上看,生活空间的方向与整个住宅的场地边界平行,从而在新旧结构间产生了一个三角形的“缺口”。它充当着安全通风采光井,为两侧房屋带去清凉的自然风。
▼从底层平面上看,既有房屋与新体量之间形成了三角形“开口” © Fabian Tan Architect
▼室内空间在两扇大门敞开后与花园相连 © Ceavs Chua
▼三角“缺口”在既有住宅和拱形空间之间 © Ceavs Chua
▼拱顶平台细部 © Ceavs Chua
屋顶向外延伸,形成了一个拱形的附属建筑,创造了新的生活区。拱形的延伸使整个空间看起来是连续的,从地板到天花板都保持一致的混凝土材料也进一步增强了这种连续性。扩建区域通过两扇通往花园的大门,得到了进一步完善。从内到外不间断的视觉连续性将室内与自然无缝衔接。
▼远眺拱顶 © Ceavs Chua
▼屋顶向外延伸,形成了一个拱形的附属建筑 © Ceavs Chua
▼与花园相连的全新生活空间 © Ceavs Chua
▼从内到外不间断的视觉连续性将室内与自然无缝衔接 © Ceavs Chua
上层空间通过曲线和水平线的玩味组合,形成了一个具有戏剧性的独特背景墙。整个空间都充满了层次感:书房俯瞰着客厅和旁边一个可供休息的角落平台;书房后面是可以俯瞰整个空间的主卧;主卧室通过一个架桥连接到附属建筑的最外层,最令人惊讶的是,这里还专门打造了一个开放式阳台。
▼整个空间都充满了层次感 © Ceavs Chua
▼大门打开前后的起居空间 © Ceavs Chua
▼与客厅仅一墙之隔的通风走廊 © Ceavs Chua
▼两层起居空间概览 © Ceavs Chua
▼从平台看向书房 © Ceavs Chua
▼可以俯瞰一楼的阁楼书房 © Ceavs Chua
▼从卧室看向书房 © Ceavs Chua
▼卧室 © Ceavs Chua
▼连接新旧结构的二层走廊 © Ceavs Chua
▼楼梯间 © Ceavs Chua
为了平衡混凝土拱顶的沉闷,团队在上层精心打造了一些开口。例如拱顶侧面的窗户与正前方的开口,会被设计成连续的“S”形。当漫步在上层空间时,会感受到这种连续性在整个空间中回荡,形成了一系列的开口和拱门。这种在沉闷结构中有节奏的线条布置,使光线以微妙的方式照进空间。这会让人联想到穿越山洞的冒险,营造一种看到隧道尽头光明的感觉。
▼被设计成连续的“S”形的窗户 © Ceavs Chua
▼带落地窗的拱形平台 © Ceavs Chua
▼从窗外看向室内 © Ceavs Chua
▼拱形窗台细部 © Ceavs Chua
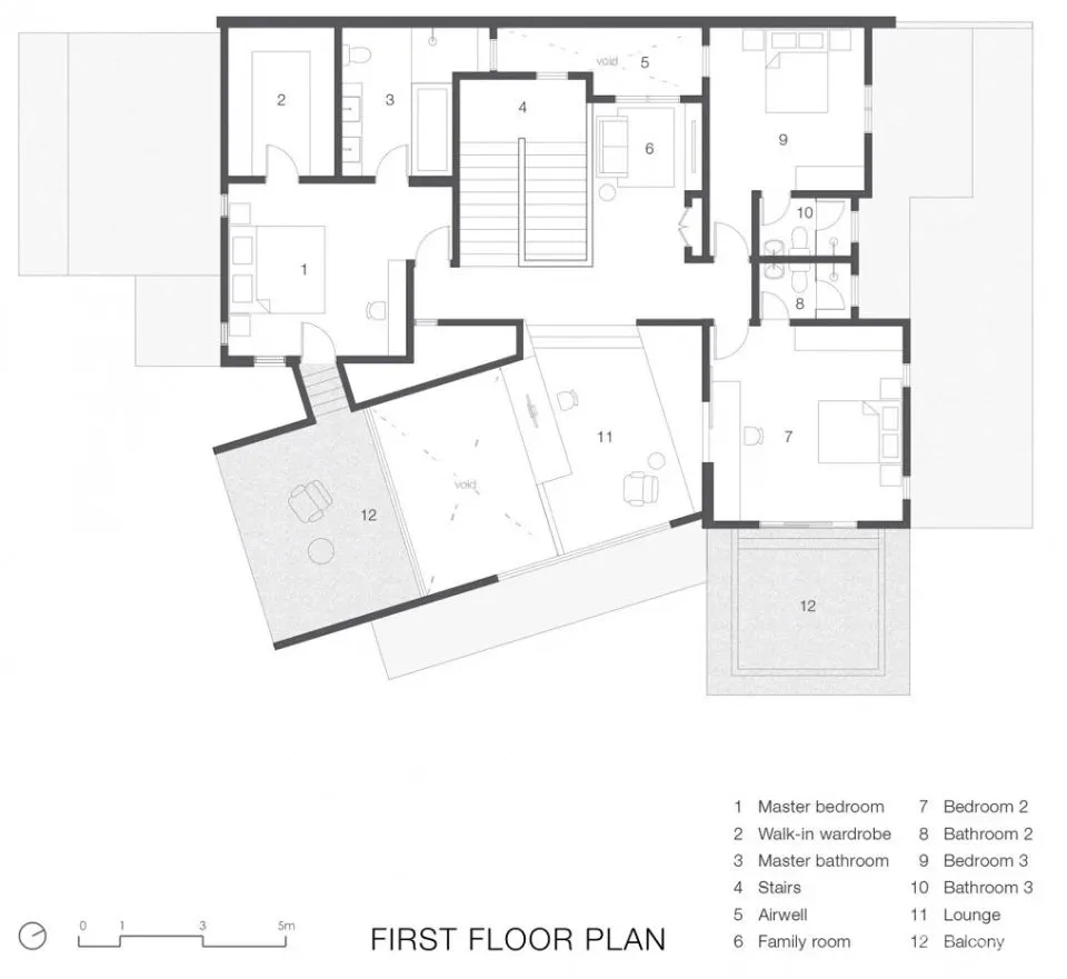
▼一层平面 © Fabian Tan Architect
▼正立面 © Fabian Tan Architect
▼侧立面 © Fabian Tan Architect
▼剖面图 © Fabian Tan Architect
Project title: Bewboc House Architect: Fabian Tan Architect Website: www.fabian-tan.com Built up Area: 3700 sqft Land size: 5800 sqft Location: Kuala Lumpur, Malaysia Photographer: Ceavs Chua


可以的