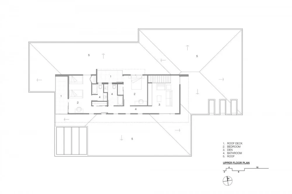
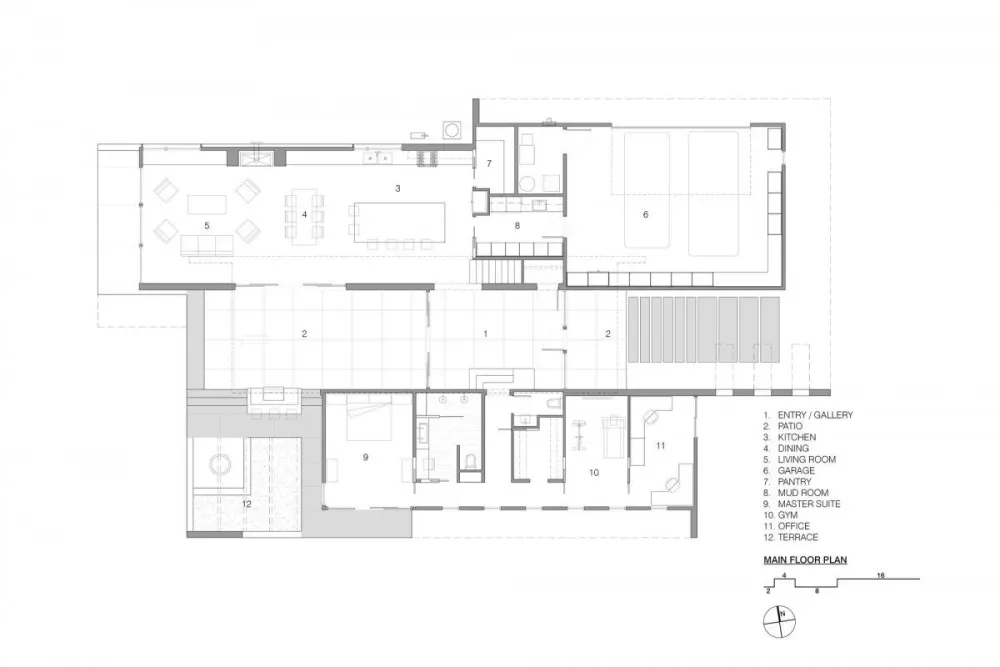
位于美国俄勒冈州中部城市Bend郊外一座独立的现代住宅Valentine House,由当地的建筑及设计公司Eric Meglasson Architect设计。Valentine House是几乎完全由黑色或漂白的雪松板包裹,其材料与它的10英亩的森林基地密切相关,从而可以毫不客气地使用现代正式语汇,而又不会感到自命不凡或外在强加。
位于美国俄勒冈州中部城市Bend郊外一座独立的现代住宅Valentine House,由当地的建筑及设计公司Eric Meglasson Architect设计。Valentine House是几乎完全由黑色或漂白的雪松板包裹,其材料与它的10英亩的森林基地密切相关,从而可以毫不客气地使用现代正式语汇,而又不会感到自命不凡或外在强加。
之前
