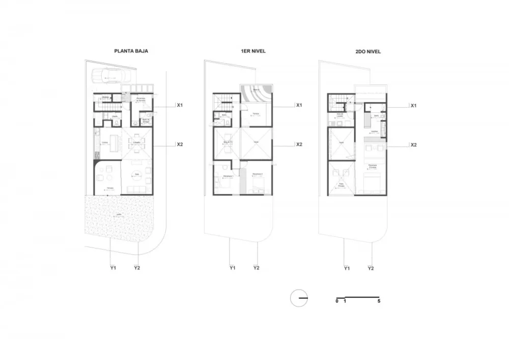
位于墨西哥Puerto Morelos一处私人住宅,由当地的室内设计工作室WEWI Studio设计。该住宅位于街角,占地160m²。利用地块所提供的条件,该住宅将该类型房屋户型前后倒换,将停车位置后,花园置前,与公园相连接,营造出一种延续感。



项目轮廓与地块的朝向相呼应。服务设施、楼梯和泳池位于西面,吸收下午的热量,而卧室和公共区域位于东面,接收海风。体块看起来像一个带有减法的白色大盒子,产生了私人露台和庭院,构成了景观。



住宅外观的简单性与室内形成对比,室内由两个两层高的建筑连接而成,形成三层高的对角线,通过窗户将住宅的空间连接起来,产生一种更大的空间感,并使室内充满活力。



