建筑师Emil Dervish是现代乌克兰建筑的典范,并基于北欧人文美学,将现代极简主义在空间中和谐共生。在他设计的空间中,几乎看不到任何累赘之物,来诠释真正的北欧风。
是位于丹麦哥本哈根,该空间以自然色调和材料为特征,利用内置结构形成隔断和额外的存储空间。人字形地板布置在整个家庭中,同时自然光线散布在整个空间中,为其提供了更加开放和温馨的环境。
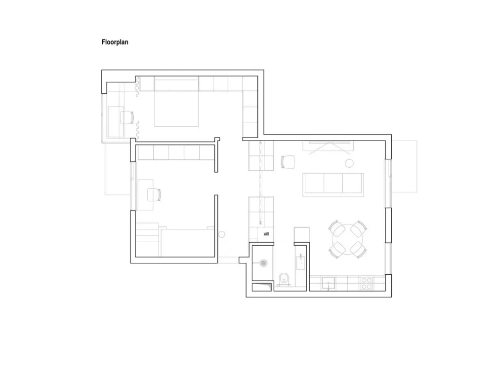
这个项目只有106平方米,建筑设计由Evgeniy Bulatnikov完成,一客一餐一卧一卫的公寓式住宅,完全省略掉繁复的视觉,用米白色调和木质家具的原始感,保留下空间细腻平和的气质。

